|
|
| |
|
|
|
|
Wellbore #00 Wellbore Classification: GW Status: PR - 3/9/2026 Measured TD: 7383 ft. Vertical TD: 0 ft.| Wellbore Data for Original Wellbore | Wellbore Classification: GW PR - 3/9/2026 | | Wellbore Permit | | | Permit #: | 931374 | Expiration Date: | 1/25/1994 | | Proposed Depth/Form: | | | Surface Mineral Owner Same: | Not available | | Mineral Owner: | FEE | Surface Owner: | Not available | | Unit: | | Unit Number: | | | Formation And Spacing: | Code: NB-CD , Formation: NIOBRARA-CODELL , Order: 0 , Unit Acreage: 80, Drill Unit: E2NE |
| | |
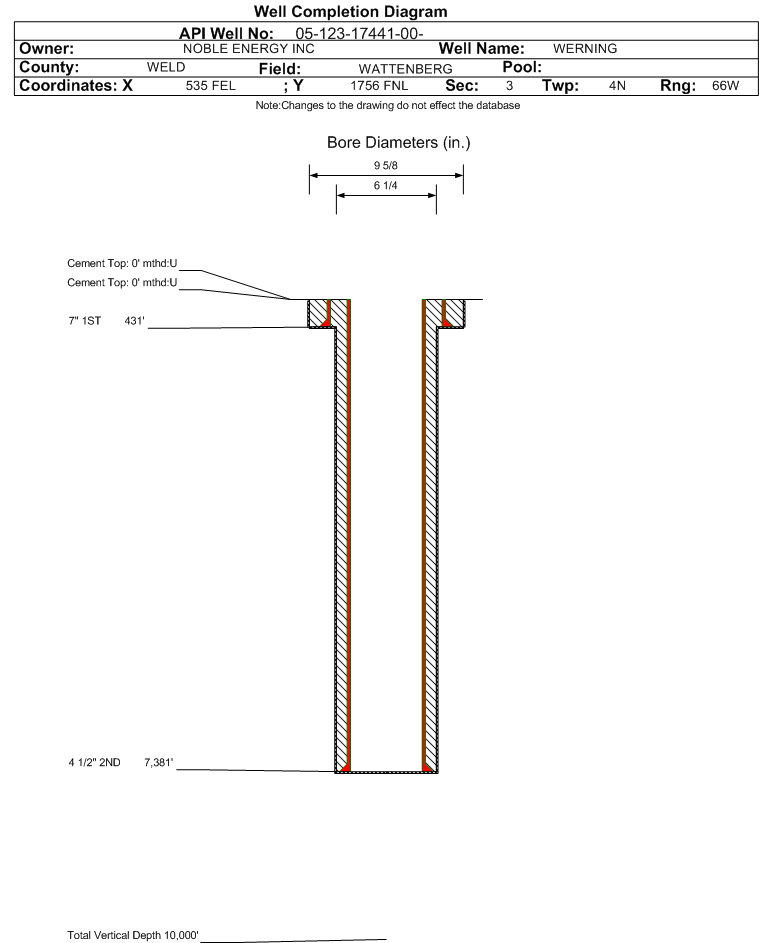
| Wellbore Completed | | Completion Date: | 2/19/1994 | | Measured TD: | 7383 ft. | Measured PB depth: | 0 ft. | | True Vertical TD: | 0 ft. | True Vertical PB depth: | | | Top PZ Location: | Sec: Twp: | Footage: 0 FL 0 FL | | Casing: | String Type: SURF, Hole Size: 9.625 in., Size: , Top: 0 ft., Depth: 431 ft., Weight: 17 , Citings Type: ACTUAL | | Cement: | Sacks: 225, Top: 0 ft., Bottom: 431 ft., Determination Method: VISU | | Casing: | String Type: 1ST, Hole Size: 6.25 in., Size: 4.5 in., Top: 0 ft., Depth: 7381 ft., Weight: 11.6 , Citings Type: ACTUAL | | Cement: | Sacks: 97, Top: 6310 ft., Bottom: 7381 ft., Determination Method: CBL | | Casing: | String Type: 1ST, Hole Size: 9.625 in., Size: 7 in., Top: 0 ft., Depth: 431 ft., Weight: , Citings Type: HISTORICAL | | Cement: | Sacks: 225, Top: 0 ft., Bottom: , Determination Method: | | Casing: | String Type: S.C. 1.1, Hole Size: 6.25 in., Size: 4.5 in., Top: 0 ft., Depth: 7381 ft., Weight: 11.6 , Citings Type: ACTUAL | | Cement: | Sacks: 135, Top: 3665 ft., Bottom: 4890 ft., Determination Method: CBL | | Casing: | String Type: 2ND, Hole Size: 6.25 in., Size: 4.5 in., Top: 0 ft., Depth: 7381 ft., Weight: , Citings Type: HISTORICAL | | Cement: | Sacks: 0, Top: 0 ft., Bottom: , Determination Method: | | Formation | Interval Top | Log Bottom | Cored | DSTs | | PIERRE | 1298 ft. | | | | | PARKMAN | 3629 ft. | | | | | SUSSEX | 4309 ft. | | | | | SHANNON | 4740 ft. | | | | | NIOBRARA | 6838 ft. | | | | | CODELL | 7170 ft. | | | |
Formation CODL Formation Classification: GW Status: CM - 3/11/2026 Interval Top: 7175 ft. Interval Bottom: 7187 ft.| Completed Information for Formation CODELL | | 1st Production Date: | 2/19/1994 | Choke Size: | | | Formation Name: | CODELL | Commingled: | Yes | | Production Method: | | | Open Hole Completion: | No |
| | Tubing Size: | | Tubing Setting Depth: | | | Tubing Packer Depth: | | Tubing Multiple Packer: | | | Open Hole Top: | | Open Hole Bottom: | | | No Initial Test Data was found for formation CODL. |
| | Perforation Data: | | Interval Top: | 7175 ft. | # Of Holes: | 48 | | Interval Bottom: | 7187 ft. | Hole Size: | 0.38 in. |
|
Formation NB-CD Formation Classification: GW Status: PR - 3/9/2026 Interval Top: 6855 ft. Interval Bottom: 7187 ft.| Completed Information for Formation NIOBRARA-CODELL | | 1st Production Date: | 2/19/1994 | Choke Size: | | | Formation Name: | NIOBRARA-CODELL | Commingled: | No | | Production Method: | | | Open Hole Completion: | No |
| | Tubing Size: | | Tubing Setting Depth: | | | Tubing Packer Depth: | | Tubing Multiple Packer: | | | Open Hole Top: | | Open Hole Bottom: | | | No Initial Test Data was found for formation NB-CD. |
| | Perforation Data: | | Interval Top: | 6855 ft. | # Of Holes: | 55 | | Interval Bottom: | 7187 ft. | Hole Size: | 0.38 in. |
|
Formation NBRR Formation Classification: GW Status: CM - 3/11/2026 Interval Top: 6855 ft. Interval Bottom: 6989 ft.| Completed Information for Formation NIOBRARA | | 1st Production Date: | 2/19/1994 | Choke Size: | | | Formation Name: | NIOBRARA | Commingled: | Yes | | Production Method: | | | Open Hole Completion: | No |
| | Tubing Size: | | Tubing Setting Depth: | | | Tubing Packer Depth: | | Tubing Multiple Packer: | | | Open Hole Top: | | Open Hole Bottom: | | | No Initial Test Data was found for formation NBRR. |
| | Perforation Data: | | Interval Top: | 6855 ft. | # Of Holes: | 7 | | Interval Bottom: | 6989 ft. | Hole Size: | 0.38 in. |
|
|
|
|
|
|
|
| Reported Plugged | N | |
| Out Of Service Repurposed | N | |
| Out Of Service | N | |
| Inactive Exception | N | |
| Noticed Inactive | N | |
| Defined Inactive | N | |
| Low Producing | N | |
| Total Oil Produced (Barrels) | 502 |
| Total Gas Produced (MCF) | 14774 |
| GOR | 29430 |
| GOR Determination | MCFE |
| Average BOE per Day | 8.362 |
| Average MCFE per Day | 48.491 |
| Federal Financial Assurance | i | |
|
|