Skip to Main Content

COGIS

Facility Detail

COGIS - WELL SCOUT CARD

Click image to view related facilities. Related  Click image to view inspection information. InspClick image to view MIT information. MITClick image to access interactive map at well/facility location. GISClick image to view imaged documents for this well/facility. DocClick image to view imaged documents for this well/facility. COAClick image to view wellbore completion diagram. WellboreClick image to search for orders within this facility's section. OrdersClick image to view bradenhead scoutcard data. Bradenhead
 Surface Location
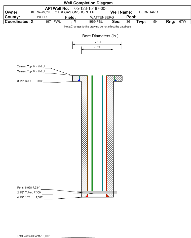
 API# 05-123-15487
Well Classification: GW Status: PA - 5/23/2025
Well Name/No:BERNHARDT #3-36
(Click Well Name for Production Data)
Click Here for Transporter Gatherer Info
Operator:PDC ENERGY INC - 69175
(Click Operator Name for Company Detail Report)
Federal Or State Lease #:63377
Facility Status:PAStatus Date5/23/2025
FacilityID:247690LocationID:336601
County:WELD #123Location:NESW 36 5N67W 6
Field:WATTENBERG - #90750Elevation:4828 ft.
Basin:DENVER (DJ) BASIN  
Planned Location:1969FSL  1971 FWLLat/Long: 40.354264 / -104.843814Lat/Long Source: Calculated From Footages
As Drilled Location:Footages Not AvailableLat/Long: 40.354330 / -104.843730Lat/Long Source: Field Measured
 Wellbore And Formation Details -- select either a wellbore Or formation to expand.
 

Wellbore #00             Wellbore Classification: GW             Status: AB - 5/23/2025             Measured TD: 7510 ft.    Vertical TD: 0 ft.

 Wellbore Data for Original WellboreWellbore Classification: GW        AB - 5/23/2025
Wellbore PermitDRIFTED
Permit #:911293 Expiration Date:4/21/1992
Proposed Depth/Form:
Surface Mineral Owner Same:Not available
Mineral Owner:STATESurface Owner:Not available
Unit: Unit Number: 
Formation And Spacing:Code: NB-CD , Formation: NIOBRARA-CODELL , Order: 0 , Unit Acreage: 80, Drill Unit: N2SW

Wellbore Completed
Completion Date:1/13/1992
Measured TD:7510 ft.Measured PB depth:7444 ft.
True Vertical TD:0 ft.True Vertical PB depth:
Casing:String Type: SURF, Hole Size: 12.25 in., Size: 8.625 in., Top: 0 ft., Depth: 340 ft., Weight: 24 , Citings Type: ACTUAL
Cement:Sacks: 240, Top: 0 ft., Bottom: 340 ft., Determination Method: VISU
Casing:String Type: 1ST, Hole Size: 7.875 in., Size: 4.5 in., Top: 0 ft., Depth: 7512 ft., Weight: 11.6 , Citings Type: ACTUAL
Cement:Sacks: 180, Top: 6410 ft., Bottom: 7512 ft., Determination Method: CBL
FormationInterval TopLog BottomCoredDSTs
NIOBRARA6994 ft.
CODELL7314 ft.

Formation NB-CD                   Formation Classification:  GW                   Status:  AB - 5/23/2025                 Interval Top: 6998 ft.    Interval Bottom: 7334 ft.

 Completed Information for Formation NIOBRARA-CODELL
1st Production Date:3/12/1992Choke Size:24.000 in.
Formation Name:NIOBRARA-CODELLCommingled:No
Production Method:PLUNGER
Open Hole Completion:No
Formation Treatment
Treatment Date:1/13/1992
Treatment Summary:FRACED W/120,117 GALLONS GELLED FLUID, , 2610880 LBS 20/40 WEDRON - WALKER, 0 LBS 0 LBS
Tubing Size:2.375 in.Tubing Setting Depth:7309 ft.
Tubing Packer Depth:Tubing Multiple Packer:
Open Hole Top:Open Hole Bottom:
Initial Test Data:
Test Date:2/27/2002Test Method:PLUNGER
Hours Tested:24Gas Type:SHALE
Gas Disposal:
Test TypeMeasure
BBLS_OIL 11
CALC_BBLS_OIL 11
CALC_GOR 11182
CALC_MCF_GAS 123
CASING_PRESS 712
MCF_GAS 123
TUBING_PRESS 710
Perforation Data:
Interval Top:6998 ft.# Of Holes:77
Interval Bottom:7334 ft.Hole Size:0.3 in.
Primary Well Designation:
None      i
            All DesignationsDate
Reported PluggedY05/23/2025
Out Of Service RepurposedN 
Out Of ServiceN 
Inactive ExceptionN 
Noticed InactiveN 
Defined InactiveN 
Low ProducingN 

BOE/MCFE/GOR Calculations
Production for Previous 12 Months
October 2024 - September 2025i
Total Oil Produced (Barrels)16
Total Gas Produced (MCF)229
GOR14312
GOR DeterminationBOE
Average BOE per Day0.149
Average MCFE per Day0.872

 Federal Financial Assurance  i 

 Tribal Well  i No