Skip to Main Content

COGIS

Facility Detail

COGIS - WELL SCOUT CARD

Click image to view related facilities. Related  Click image to view inspection information. InspClick image to view MIT information. MITGIS Map GISOld GIS Map Old GISClick image to view imaged documents for this well/facility. DocClick image to view imaged documents for this well/facility. COAClick image to view wellbore completion diagram. WellboreClick image to search for orders within this facility's section. OrdersClick image to view bradenhead scoutcard data. Bradenhead
 Surface Location
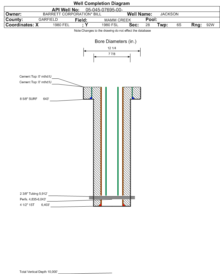
 API# 05-045-07695
Well Classification: GW Status: PR - 9/1/2004
Well Name/No:JACKSON #10-28
(Click Well Name for Production Data)
Click Here for Transporter Gatherer Info
Operator:TEP ROCKY MOUNTAIN LLC - 96850
(Click Operator Name for Company Detail Report)
Federal Or State Lease #:
Facility Status:PRStatus Date9/1/2004
FacilityID:259147LocationID:335347
County:GARFIELD #045Location:NWSE 28 6S92W 6
Field:MAMM CREEK - #52500Elevation:5792 ft.
Basin:PICEANCE BASIN  
Planned Location:1980FSL  1980 FELLat/Long: 39.496111 / -107.669273Lat/Long Source: Calculated From Footages
As Drilled Location:Footages Not AvailableLat/Long: 39.496143 / -107.669040Lat/Long Source: Field Measured
 Wellbore And Formation Details -- select either a wellbore Or formation to expand.
 

Wellbore #00             Wellbore Classification: GW             Status: PR - 9/1/2004             Measured TD: 6405 ft.

 Wellbore Data for Original WellboreWellbore Classification: GW        PR - 9/1/2004
Wellbore Permit
Permit #:010186 Expiration Date:1/29/2002
Proposed Depth/Form:6300 ft.
Surface Mineral Owner Same:Yes
Mineral Owner:FEESurface Owner:FEE
Unit: Unit Number: 
Formation And Spacing:Code: WMFK , Formation: WILLIAMS FORK , Order: , Unit Acreage: , Drill Unit:

Wellbore Completed
Completion Date:5/27/2001
Spud Date:5/14/2001Spud Date Is:ACTUAL
Measured TD:6405 ft.Measured PB depth:6369 ft.
True Vertical TD:True Vertical PB depth:
Log Types:DIL/SDL/DSN
Casing:String Type: SURF, Hole Size: 12.25 in., Size: 8.625 in., Top: 0 ft., Depth: 643 ft., Weight: 24 , Citings Type: ACTUAL
Cement:Sacks: 320, Top: 0 ft., Bottom: 643 ft., Determination Method: CALC
Casing:String Type: 1ST, Hole Size: 7.875 in., Size: 4.5 in., Top: 0 ft., Depth: 6403 ft., Weight: 11.6 , Citings Type: ACTUAL
Cement:Sacks: 1120, Top: 0 ft., Bottom: 6403 ft., Determination Method: CBL
FormationInterval TopLog BottomCoredDSTs
WASATCH0 ft.3026 ft.NN
OHIO CREEK3026 ft.3643 ft.NN
WILLIAMS FORK3643 ft.5460 ft.NN

Formation WMFK                     Formation Classification:  GW                     Status:  PR - 9/1/2004                  Interval Top: 4835 ft.    Interval Bottom: 6043 ft.

 Completed Information for Formation WILLIAMS FORK
1st Production Date:N/AChoke Size:0.313 in.
Formation Name:WILLIAMS FORKCommingled:No
Production Method:THROUGH TUBING
Open Hole Completion:No
Formation Treatment
Treatment Date:5/27/2001
Treatment Summary:4835-5170 FFRAC W/390,000# 20/40 SAND PLUS 3262 BBLS 2% KCL WATER.5315-5574 FRAC W/ 294,000# 20/40 SAND PLUS 2564 BBLS 2% KCL WATER.5796-6043 FRAC W/ 170,000# 20/40/ SAND PLUS 1631 BBLS 2% KCL WATER.
Tubing Size:2.375 in.Tubing Setting Depth:5912 ft.
Tubing Packer Depth:Tubing Multiple Packer:
Open Hole Top:Open Hole Bottom:
Initial Test Data:
Test Date:8/16/2001Test Method:
Hours Tested:24Gas Type:DRY
Gas Disposal:SOLD
Test TypeMeasure
BBLS_H2O 21
BBLS_OIL 15
BTU_GAS 1182
CALC_BBLS_H2O 21
CALC_BBLS_OIL 15
CALC_GOR 47267
CALC_MCF_GAS 709
CASING_PRESS 1100
GRAVITY_OIL 42
MCF_GAS 709
TUBING_PRESS 900
Perforation Data:
Interval Top:4835 ft.# Of Holes:54
Interval Bottom:6043 ft.Hole Size:
Primary Well Designation:
Low Producing      i
            All DesignationsDate
Reported PluggedN 
Out Of Service RepurposedN 
Out Of ServiceN 
Inactive ExceptionN 
Noticed InactiveN 
Defined InactiveN 
Low ProducingYProduction Period
02/2025 - 01/2026

BOE/MCFE/GOR Calculations
Production for Previous 12 Months
February 2025 - January 2026i
Total Oil Produced (Barrels)0
Total Gas Produced (MCF)753
GOR
GOR DeterminationMCFE
Average BOE per Day0.353
Average MCFE per Day2.060

 Federal Financial Assurance  i 

 Tribal Well  i No