Skip to Main Content

COGIS

Facility Detail

COGIS - WELL SCOUT CARD

Click image to view related facilities. Related  Click image to view inspection information. InspClick image to view MIT information. MITClick image to access interactive map at well/facility location. GISClick image to view imaged documents for this well/facility. DocClick image to view imaged documents for this well/facility. COAClick image to view wellbore completion diagram. WellboreClick image to search for orders within this facility's section. OrdersClick image to view bradenhead scoutcard data. Bradenhead
 Surface Location
 API# 05-045-07096
Well Classification: GW Status: PR - 3/12/2005
Well Name/No:MAHAFFEY #PA 24-32
(Click Well Name for Production Data)
Click Here for Transporter Gatherer Info
Operator:TEP ROCKY MOUNTAIN LLC - 96850
(Click Operator Name for Company Detail Report)
Federal Or State Lease #:13258
Facility Status:PRStatus Date3/12/2005
FacilityID:211336LocationID:323949
County:GARFIELD #045Location:SESW 32 6S95W 6
Field:PARACHUTE - #67350Elevation:5137 ft.
Basin:PICEANCE BASIN  
Planned Location:400FSL  2200 FWLLat/Long: 39.474949 / -108.023334Lat/Long Source: Calculated From Footages
As Drilled Location:Footages Not AvailableLat/Long: 39.474977 / -108.023327Lat/Long Source: Field Measured
 Wellbore And Formation Details -- select either a wellbore Or formation to expand.
 

Wellbore #00             Wellbore Classification: GW             Status: PR - 3/12/2005             Measured TD: 6520 ft.    Vertical TD: 0 ft.

 Wellbore Data for Original WellboreWellbore Classification: GW        PR - 3/12/2005
Wellbore Permit
Permit #:960588 Expiration Date:8/27/1997
Proposed Depth/Form:
Surface Mineral Owner Same:Not available
Mineral Owner:FEESurface Owner:Not available
Unit: Unit Number: 
Formation And Spacing:Code: WMFK , Formation: WILLIAMS FORK , Order: 440-16 , Unit Acreage: 320, Drill Unit: W2

Wellbore Completed
Completion Date:1/27/1997
Measured TD:6520 ft.Measured PB depth:0 ft.
True Vertical TD:0 ft.True Vertical PB depth:
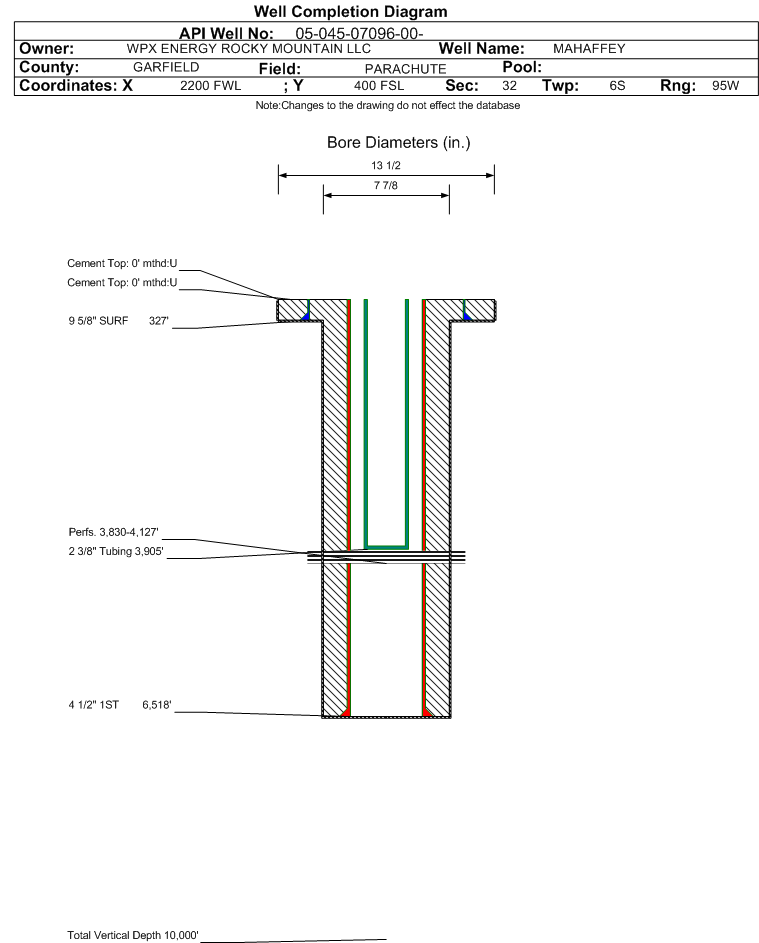
Casing:String Type: SURF, Hole Size: 13.5 in., Size: 9.625 in., Top: 0 ft., Depth: 327 ft., Weight: 36 , Citings Type: ACTUAL
Cement:Sacks: 150, Top: 0 ft., Bottom: 327 ft., Determination Method: VISU
Casing:String Type: 1ST, Hole Size: 7.875 in., Size: 4.5 in., Top: 0 ft., Depth: 6518 ft., Weight: 11.6 , Citings Type: ACTUAL
Cement:Sacks: 1000, Top: 3618 ft., Bottom: 6518 ft., Determination Method: CBL
FormationInterval TopLog BottomCoredDSTs
MESAVERDE3294 ft.
CAMEO COAL5992 ft.
ROLLINS6436 ft.

Formation WFCM                     Formation Classification:  GW                     Status:  PR - 3/12/2005                 Interval Top: 3830 ft.    Interval Bottom: 4127 ft.

 Completed Information for Formation WILLIAMS FORK - CAMEO
1st Production Date:N/AChoke Size:0.750 in.
Formation Name:WILLIAMS FORK - CAMEOCommingled:No
Production Method:FLOWING
Open Hole Completion:No
Formation Treatment
Treatment Date:1/27/1997
Treatment Summary:1000 GAL 7 1/2% HCL; 206500# 20/40 SAND; 3712 BBL SLICKWATER, 130 TONS CO2 PERFS 4374 - 6266' ARE BELOW PLUG AT 4200'
Tubing Size:2.375 in.Tubing Setting Depth:3905 ft.
Tubing Packer Depth:Tubing Multiple Packer:
Open Hole Top:Open Hole Bottom:
Initial Test Data:
Test Date:3/12/2005Test Method:FLOWING
Hours Tested:24Gas Type:
Gas Disposal:SOLD
Test TypeMeasure
BBLS_H2O 0
BBLS_OIL 0
CALC_BBLS_H2O 0
CALC_BBLS_OIL 0
CALC_MCF_GAS 294
CASING_PRESS 473
MCF_GAS 294
TUBING_PRESS 442
Perforation Data:
Interval Top:3830 ft.# Of Holes:32
Interval Bottom:4127 ft.Hole Size:0.45 in.

Formation WMFK                     Formation Classification:  GW                     Status:  CM - 1/28/1987

 Completed Information for Formation WILLIAMS FORK
1st Production Date:1/27/1997Choke Size:0.000 in.
Formation Name:WILLIAMS FORKCommingled:
Production Method:
Open Hole Completion:
Tubing Size:Tubing Setting Depth:
Tubing Packer Depth:Tubing Multiple Packer:
Open Hole Top:Open Hole Bottom:
No Initial Test Data was found for formation WMFK.
No Perforation Data was found for formation WMFK.
Primary Well Designation:
None      i
            All DesignationsDate
Reported PluggedN 
Out Of Service RepurposedN 
Out Of ServiceN 
Inactive ExceptionN 
Noticed InactiveN 
Defined InactiveN 
Low ProducingN 

BOE/MCFE/GOR Calculations
Production for Previous 12 Months
November 2024 - October 2025i
Total Oil Produced (Barrels)16
Total Gas Produced (MCF)13573
GOR848312
GOR DeterminationMCFE
Average BOE per Day6.452
Average MCFE per Day37.434

 Federal Financial Assurance  i 

 Tribal Well  i No