Skip to Main Content

COGIS

Facility Detail

COGIS - WELL SCOUT CARD

Click image to view related facilities. Related  Click image to view inspection information. InspClick image to view MIT information. MITClick image to access interactive map at well/facility location. GISClick image to view imaged documents for this well/facility. DocClick image to view imaged documents for this well/facility. COAClick image to view wellbore completion diagram. WellboreClick image to search for orders within this facility's section. OrdersClick image to view bradenhead scoutcard data. Bradenhead
 Surface Location
 API# 05-123-34649
Well Classification: OW Status: PR - 10/1/2019
Well Name/No:Bestway #12-2
(Click Well Name for Production Data)
Click Here for Transporter Gatherer Info
Operator:PDC ENERGY INC - 69175
(Click Operator Name for Company Detail Report)
Federal Or State Lease #:
Facility Status:PRStatus Date10/1/2019
FacilityID:426319LocationID:423325
Municipality/County:GREELEY / WELD #123Location:SENE 2 5N66W 6
Field:WATTENBERG - #90750Elevation:4699 ft.
Basin:DENVER (DJ) BASIN  
Planned Location:2223FNL  1180 FELLat/Long: 40.430800 / -104.739270Lat/Long Source: Field Measured
As Drilled Location:Footages Not AvailableLat/Long: 40.431290 / -104.739270Lat/Long Source: Field Measured
 
FracFocus
Disclosure: Sidetrack #00
Start Date: 2/11/2013
End Date: 2/11/2013
Reported: 6/26/2013
Days to report: 135
 Wellbore And Formation Details -- select either a wellbore Or formation to expand.
 

Wellbore #00             Wellbore Classification: OW             Status: PR - 10/1/2019             Measured TD: 12154 ft.    Vertical TD: 7032 ft.

 Wellbore Data for Original WellboreWellbore Classification: OW        PR - 10/1/2019
Wellbore PermitHORIZONTAL
Permit #: Expiration Date:5/1/2014
Proposed Top PZ Location:Sec:2 Twp: 5N 66W Footage: 1340 FNL  460 FEL
Bottom Hole Location:Sec:2 Twp: 5N 66W Footage: 1341 FNL  460 FWL
Proposed Depth/Form:11990 ft.
Surface Mineral Owner Same:No
Mineral Owner:FEESurface Owner:FEE
Unit: Unit Number:
Formation And Spacing:Code: JSND , Formation: J SAND , Order: Unspaced , Unit Acreage: 40, Drill Unit: SE/4
Formation And Spacing:Code: NB-CD , Formation: NIOBRARA-CODELL , Order: 407-87 , Unit Acreage: 160, Drill Unit: SE/4
Formation And Spacing:Code: NBRR , Formation: NIOBRARA , Order: , Unit Acreage: 320, Drill Unit: GWA
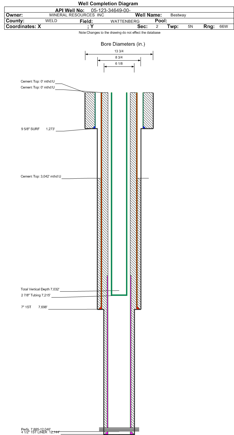
Casing:String Type: SURF, Hole Size: 12.25 in., Size: 9.625 in., Top: 0 ft., Depth: 1227 ft., Weight: 36 , Citings Type: PLANNED
Cement:Sacks: 675, Top: 0 ft., Bottom: 1227 ft.
Casing:String Type: 1ST, Hole Size: 8.75 in., Size: 7 in., Top: 0 ft., Depth: 7414 ft., Weight: 26 , Citings Type: PLANNED
Cement:Sacks: 180, Top: 6217 ft., Bottom: 7414 ft.
Casing:String Type: 1ST LINER, Hole Size: 6.125 in., Size: 4.5 in., Top: 7364 ft., Depth: 11990 ft., Weight: 11.6 , Citings Type: PLANNED
Cement:Sacks: , Top: , Bottom:

Wellbore Completed
Completion Date:6/29/2012
Spud Date:6/12/2012Spud Date Is:ACTUAL
Measured TD:12154 ft.Measured PB depth:12154 ft.
True Vertical TD:7032 ft.True Vertical PB depth:7031 ft.
Top PZ Location:Sec:2 Twp: 5N 66WFootage: 1311 FNL  601 FEL
Bottom Hole Location:Sec:2 Twp: 5N 66WFootage: 1352 FNL  470 FWL
Log Types:Mud Log, CBL, Gamma Ray
Casing:String Type: SURF, Hole Size: 13.75 in., Size: 9.625 in., Top: 0 ft., Depth: 1273 ft., Weight: 36 , Citings Type: ACTUAL
Cement:Sacks: 380, Top: 0 ft., Bottom: 1273 ft., Determination Method: VISU
Casing:String Type: 1ST, Hole Size: 8.75 in., Size: 7 in., Top: 0 ft., Depth: 7698 ft., Weight: 26 , Citings Type: ACTUAL
Cement:Sacks: 440, Top: 3042 ft., Bottom: 7698 ft., Determination Method: CBL
Casing:String Type: 1ST LINER, Hole Size: 6.125 in., Size: 4.5 in., Top: 6497 ft., Depth: 12144 ft., Weight: 11.6 , Citings Type: ACTUAL
Cement:Sacks: , Top: , Bottom: , Determination Method:
FormationInterval TopLog BottomCoredDSTs
NIOBRARA7210 ft.NN

Formation NBRR                     Formation Classification:  OW                     Status:  AB - 11/14/2023                Interval Top: 7885 ft.    Interval Bottom: 12046 ft.

 Completed Information for Formation NIOBRARA
1st Production Date:2/23/2013Choke Size: 
Formation Name:NIOBRARACommingled:No
Production Method:
Open Hole Completion:No
Formation Treatment
Treatment Type:FRACTURE STIMULATION
Treatment Date:2/5/2013Treatment End Date:2/13/2013
Treatment Summary:20 stage fracture treatment. 53,814 bbls total fluid. 3,153,398# of 40/70 & 20/40 Sand.
Total fluid used in treatment (bbls):53814Max pressure during treatment (psi):7894
Total gas used in treatment (mcf):0Fluid density (lbs/gal):0.25
Type Of gas:Number Of staged intervals:20
Total acid used in treatment (bbls):0Min frac gradient (psi/ft):0.78
Recycled water used in treatment (bbls):0Total flowback volume recovered (bbls):43051
Fresh water used in treatment (bbls):48738Disposition method For flowback:DISPOSAL
Total proppant used (lbs):3153398Green completions techniques utilized:No
Reason green techniques Not utilized: PIPELINE
Tubing Size:Tubing Setting Depth:
Tubing Packer Depth:Tubing Multiple Packer:
Open Hole Top:Open Hole Bottom:
Initial Test Data:
Test Date:N/ATest Method:
Hours Tested:Gas Type:
Gas Disposal:
Test TypeMeasure
BBLS_OIL 116
BTU_GAS 1301
CALC_BBLS_OIL 116
CALC_GOR 11905
CALC_MCF_GAS 1287
GRAVITY_OIL 54
MCF_GAS 1287
Perforation Data:
Interval Top:7885 ft.# Of Holes:20
Interval Bottom:12046 ft.Hole Size:
Primary Well Designation:
Low Producing      i
            All DesignationsDate
Reported PluggedN 
Out Of Service RepurposedN 
Out Of ServiceN 
Inactive ExceptionN 
Noticed InactiveN 
Defined InactiveN 
Low ProducingYProduction Period
11/2024 - 10/2025

BOE/MCFE/GOR Calculations
Production for Previous 12 Months
November 2024 - October 2025i
Total Oil Produced (Barrels)0
Total Gas Produced (MCF)0
GOR
GOR Determination 
Average BOE per Day0.000
Average MCFE per Day0.000

 Federal Financial Assurance  i 

 Tribal Well  i No