Skip to Main Content

COGIS

Facility Detail

COGIS - WELL SCOUT CARD

Click image to view related facilities. Related  Click image to view inspection information. InspClick image to view MIT information. MITClick image to access interactive map at well/facility location. GISClick image to view imaged documents for this well/facility. DocClick image to view imaged documents for this well/facility. COAClick image to view wellbore completion diagram. WellboreClick image to search for orders within this facility's section. OrdersClick image to view bradenhead scoutcard data. Bradenhead
 Surface Location
 API# 05-123-25407
Well Classification: GW Status: PA - 1/6/2025
Well Name/No:BEIN #6-18
(Click Well Name for Production Data)
Click Here for Transporter Gatherer Info
Operator:KERR MCGEE OIL & GAS ONSHORE LP - 47120
(Click Operator Name for Company Detail Report)
Federal Or State Lease #:
Facility Status:PAStatus Date1/6/2025
FacilityID:77LocationID:332702
County:WELD #123Location:SENW 18 4N67W 6
Field:WATTENBERG - #90750Elevation:4815 ft.
Basin:DENVER (DJ) BASIN  
Planned Location:1978FNL  1978 FWLLat/Long: 40.315400 / -104.934650Lat/Long Source: Field Measured
As Drilled Location:Footages Not AvailableLat/Long: 40.315401 / -104.934652Lat/Long Source: Field Measured
 Wellbore And Formation Details -- select either a wellbore Or formation to expand.
 

Wellbore #00             Wellbore Classification: GW             Status: AB - 1/6/2025             Measured TD: 7768 ft.

 Wellbore Data for Original WellboreWellbore Classification: GW        AB - 1/6/2025
Wellbore Permit
Permit #: Expiration Date:12/10/2010
Proposed Depth/Form:7768 ft.
Surface Mineral Owner Same:Yes
Mineral Owner:FEESurface Owner:FEE
Unit: Unit Number:
Formation And Spacing:Code: JSND , Formation: J SAND , Order: 232 , Unit Acreage: 320, Drill Unit: W/2
Formation And Spacing:Code: NB-CD , Formation: NIOBRARA-CODELL , Order: 407 , Unit Acreage: 160, Drill Unit: NW/4
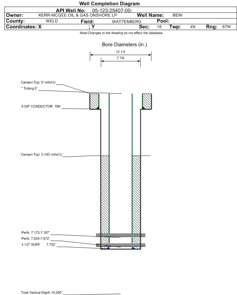
Casing:String Type: SURF, Hole Size: 12.25 in., Size: 8.625 in., Top: , Depth: 768 ft., Weight: 24 , Citings Type: PLANNED
Cement:Sacks: 352, Top: 0 ft., Bottom: 768 ft.
Casing:String Type: 1ST, Hole Size: 7.875 in., Size: 4.5 in., Top: , Depth: 7754 ft., Weight: 11.6 , Citings Type: PLANNED
Cement:Sacks: 630, Top: 3070 ft., Bottom: 7754 ft.

Wellbore Completed
Completion Date:3/4/2008
Spud Date:2/28/2008Spud Date Is:ACTUAL
Measured TD:7768 ft.Measured PB depth:7722 ft.
True Vertical TD:True Vertical PB depth:
Log Types:CBL, P/E AILC-CNLD-ML
Casing:String Type: CONDUCTOR, Hole Size: 12.25 in., Size: 8.625 in., Top: 0 ft., Depth: 768 ft., Weight: , Citings Type: ACTUAL
Cement:Sacks: 352, Top: 0 ft., Bottom: 768 ft., Determination Method: CALC
Casing:String Type: SURF, Hole Size: 12.25 in., Size: 8.625 in., Top: 0 ft., Depth: 767 ft., Weight: 24 , Citings Type: ACTUAL
Cement:Sacks: 352, Top: 0 ft., Bottom: 767 ft., Determination Method: VISU
Casing:String Type: 1ST, Hole Size: 7.875 in., Size: 4.5 in., Top: 0 ft., Depth: 7752 ft., Weight: 11.6 , Citings Type: ACTUAL
Cement:Sacks: 630, Top: 3070 ft., Bottom: 7752 ft., Determination Method: CBL
FormationInterval TopLog BottomCoredDSTs
PARKMAN3470 ft.NN
SUSSEX4050 ft.NN
SHANNON4532 ft.NN
NIOBRARA6848 ft.NN
FORT HAYS7150 ft.NN
CODELL7172 ft.NN
J SAND7630 ft.NN

Formation JSND                     Formation Classification:  GW                     Status:  AB - 1/6/2025                  Interval Top: 7634 ft.    Interval Bottom: 7672 ft.

 Completed Information for Formation J SAND
1st Production Date:1/27/2010Choke Size:0.250 in.
Formation Name:J SANDCommingled:No
Production Method:
Open Hole Completion:No
Formation Treatment
Treatment Date:1/22/2010
Treatment Summary:163624 GAL SW WITH 115040# 30/50 & 4000# 20/40 SUPERLC.
Tubing Size:Tubing Setting Depth:
Tubing Packer Depth:Tubing Multiple Packer:
Open Hole Top:Open Hole Bottom:
Initial Test Data:
Test Date:2/4/2010Test Method:FLOWING
Hours Tested:Gas Type:WET
Gas Disposal:SOLD
Test TypeMeasure
BTU_GAS 1320
GRAVITY_OIL 50
Perforation Data:
Interval Top:7634 ft.# Of Holes:56
Interval Bottom:7672 ft.Hole Size:0.38 in.

Formation CODL                     Formation Classification:  GW                     Status:  AB - 1/6/2025                  Interval Top: 7172 ft.    Interval Bottom: 7187 ft.

 Completed Information for Formation CODELL
1st Production Date:1/27/2010Choke Size:0.250 in.
Formation Name:CODELLCommingled:No
Production Method:
Open Hole Completion:No
Formation Treatment
Treatment Date:4/2/2008
Treatment Summary:NO ADDITIONAL TREATMENT.
Tubing Size:Tubing Setting Depth:
Tubing Packer Depth:Tubing Multiple Packer:
Open Hole Top:Open Hole Bottom:
Initial Test Data:
Test Date:2/4/2010Test Method:FLOWING
Hours Tested:Gas Type:WET
Gas Disposal:SOLD
Test TypeMeasure
BTU_GAS 1320
CALC_BBLS_H2O 0
CALC_BBLS_OIL 42
CALC_GOR 9143
CALC_MCF_GAS 384
CASING_PRESS 619
GRAVITY_OIL 50
Perforation Data:
Interval Top:7172 ft.# Of Holes:60
Interval Bottom:7187 ft.Hole Size:0.42 in.
Primary Well Designation:
None      i
            All DesignationsDate
Reported PluggedY01/06/2025
Out Of Service RepurposedN 
Out Of ServiceYPlugging Due Date
12/31/2030
Inactive ExceptionN 
Noticed InactiveN 
Defined InactiveN 
Low ProducingN 

BOE/MCFE/GOR Calculations
Production for Previous 12 Months
October 2024 - September 2025i
Total Oil Produced (Barrels)0
Total Gas Produced (MCF)0
GOR
GOR DeterminationMCFE
Average BOE per Day0.000
Average MCFE per Day0.000

 Federal Financial Assurance  i 

 Tribal Well  i No