Skip to Main Content

COGIS

Facility Detail

COGIS - WELL SCOUT CARD

Click image to view related facilities. Related  Click image to view inspection information. InspClick image to view MIT information. MITClick image to access interactive map at well/facility location. GISClick image to view imaged documents for this well/facility. DocClick image to view imaged documents for this well/facility. COAClick image to view wellbore completion diagram. WellboreClick image to search for orders within this facility's section. OrdersClick image to view bradenhead scoutcard data. Bradenhead
 Surface Location
 API# 05-123-19878
Well Classification: GW Status: PA - 6/24/2025
Well Name/No:D.L. PHILLIPS #24-32
(Click Well Name for Production Data)
Click Here for Transporter Gatherer Info
Operator:PDC ENERGY INC - 69175
(Click Operator Name for Company Detail Report)
Federal Or State Lease #:004-00013
Facility Status:PAStatus Date6/24/2025
FacilityID:256484LocationID:330922
Municipality/County:GREELEY / WELD #123Location:NWSW 24 5N67W 6
Field:WATTENBERG - #90750Elevation:5025 ft.
Basin:DENVER (DJ) BASIN  
Planned Location:1988FSL  657 FWLLat/Long: 40.383224 / -104.848704Lat/Long Source: Calculated From Footages
As Drilled Location:Footages Not AvailableLat/Long: 40.383250 / -104.848610Lat/Long Source: Field Measured
 Wellbore And Formation Details -- select either a wellbore Or formation to expand.
 

Wellbore #00             Wellbore Classification: GW             Status: AB - 6/24/2025             Measured TD: 7700 ft.

 Wellbore Data for Original WellboreWellbore Classification: GW        AB - 6/24/2025
Wellbore Permit
Permit #:990984 Expiration Date:12/19/2000
Proposed Depth/Form:7531 ft.
Surface Mineral Owner Same:Yes
Mineral Owner:FEESurface Owner:FEE
Unit: Unit Number: 
Formation And Spacing:Code: CODL , Formation: CODELL , Order: 407-1 , Unit Acreage: 80, Drill Unit: W2SW

Wellbore Completed
Completion Date:1/20/2000
Spud Date:1/8/2000Spud Date Is:ACTUAL
Measured TD:7700 ft.Measured PB depth:7659 ft.
True Vertical TD:True Vertical PB depth:
Log Types:DIL-CDL-GR-CAL,CBL.
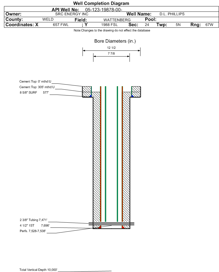
Casing:String Type: SURF, Hole Size: 12.25 in., Size: 8.625 in., Top: 0 ft., Depth: 577 ft., Weight: 24 , Citings Type: ACTUAL
Cement:Sacks: 405, Top: 0 ft., Bottom: 577 ft., Determination Method: VISU
Casing:String Type: 1ST, Hole Size: 7.875 in., Size: 4.5 in., Top: 0 ft., Depth: 7696 ft., Weight: 11.6 , Citings Type: ACTUAL
Cement:Sacks: 650, Top: 1110 ft., Bottom: 7696 ft., Determination Method: CBL
FormationInterval TopLog BottomCoredDSTs
SUSSEX4586 ft.4648 ft.NN
SHANNON4969 ft.5030 ft.NN
NIOBRARA7200 ft.7468 ft.NN
CODELL7525 ft.7546 ft.NN

Formation CODL                     Formation Classification:  GW                     Status:  AB - 6/24/2025                 Interval Top: 7526 ft.    Interval Bottom: 7546 ft.

 Completed Information for Formation CODELL
1st Production Date:1/24/2000Choke Size: 
Formation Name:CODELLCommingled:No
Production Method:
Open Hole Completion:No
Formation Treatment
Treatment Date:1/20/2000
Treatment Summary:FRACED WELL W/260,220# 20/40 SD USING 125,002 GAL 26# & 24# VISTAR GEL
Tubing Size:Tubing Setting Depth:
Tubing Packer Depth:Tubing Multiple Packer:
Open Hole Top:Open Hole Bottom:
Initial Test Data:
Test Date:N/ATest Method:
Hours Tested:Gas Type:
Gas Disposal:
Test TypeMeasure
BBLS_H2O 10
BBLS_OIL 17
CALC_BBLS_H2O 20
CALC_BBLS_OIL 35
CALC_GOR 13059
CALC_MCF_GAS 206
CASING_PRESS 600
MCF_GAS 222
TUBING_PRESS 400
Perforation Data:
Interval Top:7526 ft.# Of Holes:120
Interval Bottom:7546 ft.Hole Size:3 in.
Primary Well Designation:
None      i
            All DesignationsDate
Reported PluggedY06/24/2025
Out Of Service RepurposedN 
Out Of ServiceN 
Inactive ExceptionN 
Noticed InactiveN 
Defined InactiveN 
Low ProducingN 

BOE/MCFE/GOR Calculations
Production for Previous 12 Months
October 2024 - September 2025i
Total Oil Produced (Barrels)0
Total Gas Produced (MCF)0
GOR
GOR DeterminationMCFE
Average BOE per Day0.000
Average MCFE per Day0.000

 Federal Financial Assurance  i 

 Tribal Well  i No