Skip to Main Content

COGIS

Facility Detail

COGIS - WELL SCOUT CARD

Click image to view related facilities. Related  Click image to view inspection information. InspClick image to view MIT information. MITClick image to access interactive map at well/facility location. GISClick image to view imaged documents for this well/facility. DocClick image to view imaged documents for this well/facility. COAClick image to view wellbore completion diagram. WellboreClick image to search for orders within this facility's section. OrdersClick image to view bradenhead scoutcard data. Bradenhead
 Surface Location
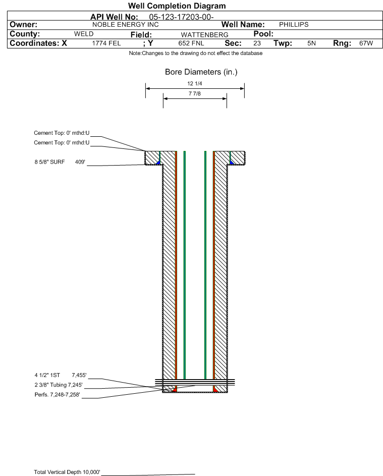
 API# 05-123-17203
Well Classification: GW Status: PA - 7/15/2021
Well Name/No:PHILLIPS #23-12
(Click Well Name for Production Data)
Click Here for Transporter Gatherer Info
Operator:PDC ENERGY INC - 69175
(Click Operator Name for Company Detail Report)
Federal Or State Lease #:59367
Facility Status:PAStatus Date7/15/2021
FacilityID:249400LocationID:332558
Municipality/County:GREELEY / WELD #123Location:NWNE 23 5N67W 6
Field:WATTENBERG - #90750Elevation:4950 ft.
Basin:DENVER (DJ) BASIN  
Planned Location:652FNL  1774 FELLat/Long: 40.390374 / -104.857374Lat/Long Source: Calculated From Footages
As Drilled Location:653 FNL  1574 FELLat/Long: 40.390470 / -104.856580Lat/Long Source: Field Measured
 Wellbore And Formation Details -- select either a wellbore Or formation to expand.
 

Wellbore #00             Wellbore Classification: GW             Status: PA - 7/15/2021             Measured TD: 7515 ft.    Vertical TD: 0 ft.

 Wellbore Data for Original WellboreWellbore Classification: GW        PA - 7/15/2021
Wellbore Permit
Permit #:930975 Expiration Date:11/20/1993
Proposed Depth/Form:
Surface Mineral Owner Same:Not available
Mineral Owner:FEESurface Owner:Not available
Unit: Unit Number: 
Formation And Spacing:Code: CODL , Formation: CODELL , Order: 0 , Unit Acreage: 80, Drill Unit: W2NE

Wellbore Completed
Completion Date:8/25/1993
Measured TD:7515 ft.Measured PB depth:7427 ft.
True Vertical TD:0 ft.True Vertical PB depth:
Casing:String Type: SURF, Hole Size: 12.25 in., Size: 8.625 in., Top: 0 ft., Depth: 409 ft., Weight: 24 , Citings Type: ACTUAL
Cement:Sacks: 285, Top: 0 ft., Bottom: 409 ft., Determination Method: VISU
Casing:String Type: 1ST, Hole Size: 7.875 in., Size: 4.5 in., Top: 0 ft., Depth: 7455 ft., Weight: 11.6 , Citings Type: ACTUAL
Cement:Sacks: 70, Top: 6454 ft., Bottom: 7455 ft., Determination Method: CBL
FormationInterval TopLog BottomCoredDSTs
NIOBRARA6936 ft.
CODELL7252 ft.

Formation CODL                     Formation Classification:  GW                     Status:  AB - 7/29/2021                 Interval Top: 7248 ft.    Interval Bottom: 7262 ft.

 Completed Information for Formation CODELL
1st Production Date:8/25/1993Choke Size: 
Formation Name:CODELLCommingled:No
Production Method:
Open Hole Completion:No
Formation Treatment
Treatment Date:8/25/1993
Treatment Summary:REFRAC'D CODELL W/260,020# 20/40 SAND AND 119,406 GALS OF 22,20 &18# VISTAR GEL
Tubing Size:Tubing Setting Depth:
Tubing Packer Depth:Tubing Multiple Packer:
Open Hole Top:Open Hole Bottom:
Initial Test Data:
Test Date:N/ATest Method:
Hours Tested:Gas Type:
Gas Disposal:
Test TypeMeasure
BBLS_H2O 2
BBLS_OIL 3
CALC_BBLS_H2O 48
CALC_BBLS_OIL 72
CALC_GOR 7000
CALC_MCF_GAS 504
CASING_PRESS 750
MCF_GAS 21
TUBING_PRESS 700
Perforation Data:
Interval Top:7248 ft.# Of Holes:80
Interval Bottom:7262 ft.Hole Size:0.32 in.
Primary Well Designation:
None      i
            All DesignationsDate
Reported PluggedY07/15/2021
Out Of Service RepurposedN 
Out Of ServiceN 
Inactive ExceptionN 
Noticed InactiveN 
Defined InactiveN 
Low ProducingN 

BOE/MCFE/GOR Calculations
Production for Previous 12 Months
October 2024 - September 2025i
Total Oil Produced (Barrels)0
Total Gas Produced (MCF)0
GOR
GOR Determination 
Average BOE per Day0.000
Average MCFE per Day0.000

 Federal Financial Assurance  i 

 Tribal Well  i No