Skip to Main Content

COGIS

Facility Detail

COGIS - WELL SCOUT CARD

Click image to view related facilities. Related  Click image to view inspection information. InspClick image to view MIT information. MITClick image to access interactive map at well/facility location. GISClick image to view imaged documents for this well/facility. DocClick image to view imaged documents for this well/facility. COAClick image to view wellbore completion diagram. WellboreClick image to search for orders within this facility's section. OrdersClick image to view bradenhead scoutcard data. Bradenhead
 Surface Location
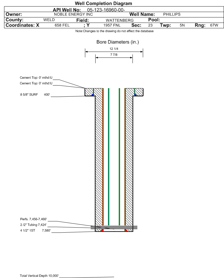
 API# 05-123-16960
Well Classification: GW Status: PA - 7/31/2025
Well Name/No:PHILLIPS #23-14
(Click Well Name for Production Data)
Click Here for Transporter Gatherer Info
Operator:PDC ENERGY INC - 69175
(Click Operator Name for Company Detail Report)
Federal Or State Lease #:59732
Facility Status:PAStatus Date7/31/2025
FacilityID:249158LocationID:329167
Municipality/County:GREELEY / WELD #123Location:SENE 23 5N67W 6
Field:WATTENBERG - #90750Elevation:4976 ft.
Basin:DENVER (DJ) BASIN  
Planned Location:1957FNL  658 FELLat/Long: 40.386744 / -104.853394Lat/Long Source: Calculated From Footages
As Drilled Location:Footages Not AvailableLat/Long: 40.386817 / -104.853313Lat/Long Source: Field Measured
 Wellbore And Formation Details -- select either a wellbore Or formation to expand.
 

Wellbore #00             Wellbore Classification: GW             Status: AB - 7/31/2025             Measured TD: 7580 ft.    Vertical TD: 0 ft.

 Wellbore Data for Original WellboreWellbore Classification: GW        AB - 7/31/2025
Wellbore Permit
Permit #:930441 Expiration Date:7/21/1993
Proposed Depth/Form:
Surface Mineral Owner Same:Not available
Mineral Owner:FEESurface Owner:Not available
Unit: Unit Number: 
Formation And Spacing:Code: CODL , Formation: CODELL , Order: 0 , Unit Acreage: 80, Drill Unit: E2NE

Wellbore Completed
Completion Date:5/27/1993
Measured TD:7580 ft.Measured PB depth:0 ft.
True Vertical TD:0 ft.True Vertical PB depth:
Casing:String Type: SURF, Hole Size: 12.25 in., Size: 8.625 in., Top: 0 ft., Depth: 400 ft., Weight: 24 , Citings Type: ACTUAL
Cement:Sacks: 300, Top: 0 ft., Bottom: 400 ft., Determination Method: VISU
Casing:String Type: 1ST, Hole Size: 7.875 in., Size: 4.5 in., Top: 0 ft., Depth: 7633 ft., Weight: 11.6 , Citings Type: ACTUAL
Cement:Sacks: 200, Top: 6711 ft., Bottom: 7633 ft., Determination Method: CBL
FormationInterval TopLog BottomCoredDSTs
NIOBRARA7103 ft.
CODELL7455 ft.

Formation CARL                     Formation Classification:  GW                     Status:  CM - 3/24/2025                 Interval Top: 7600 ft.    Interval Bottom: 7601 ft.

 Completed Information for Formation CARLILE
1st Production Date:5/27/1993Choke Size: 
Formation Name:CARLILECommingled:Yes
Production Method:
Open Hole Completion:No
Tubing Size:Tubing Setting Depth:
Tubing Packer Depth:Tubing Multiple Packer:
Open Hole Top:Open Hole Bottom:
No Initial Test Data was found for formation CARL.
Perforation Data:
Interval Top:7600 ft.# Of Holes:4
Interval Bottom:7601 ft.Hole Size:0.32 in.

Formation CODL                     Formation Classification:  GW                     Status:  CM - 3/19/2025                 Interval Top: 7456 ft.    Interval Bottom: 7468 ft.

 Completed Information for Formation CODELL
1st Production Date:5/27/1993Choke Size: 
Formation Name:CODELLCommingled:Yes
Production Method:
Open Hole Completion:No
Formation Treatment
Treatment Date:5/27/1993
Treatment Summary:REFRACED CODELL W/260,760# 20-40 SD, USING 122,598 GAL 26# AND 24# VISTAR GEL
Tubing Size:Tubing Setting Depth:
Tubing Packer Depth:Tubing Multiple Packer:
Open Hole Top:Open Hole Bottom:
Initial Test Data:
Test Date:N/ATest Method:
Hours Tested:Gas Type:
Gas Disposal:
Test TypeMeasure
BBLS_H2O 1
BBLS_OIL 1
CALC_BBLS_H2O 48
CALC_BBLS_OIL 48
CALC_GOR 21667
CALC_MCF_GAS 1040
CASING_PRESS 680
MCF_GAS 22
TUBING_PRESS 620
Perforation Data:
Interval Top:7456 ft.# Of Holes:80
Interval Bottom:7468 ft.Hole Size:2 in.

Formation CLCDFH                 Formation Classification:  GW                 Status:  AB - 7/31/2025                 Interval Top: 7430 ft.    Interval Bottom: 7601 ft.

 Completed Information for Formation CARLILE-CODELL-FORT HAYS
1st Production Date:5/27/1993Choke Size: 
Formation Name:CARLILE-CODELL-FORT HAYSCommingled:No
Production Method:
Open Hole Completion:No
Tubing Size:Tubing Setting Depth:
Tubing Packer Depth:Tubing Multiple Packer:
Open Hole Top:Open Hole Bottom:
No Initial Test Data was found for formation CLCDFH.
Perforation Data:
Interval Top:7430 ft.# Of Holes:88
Interval Bottom:7601 ft.Hole Size:

Formation FTHYS                   Formation Classification:  GW                   Status:  CM - 3/24/2025                 Interval Top: 7430 ft.    Interval Bottom: 7431 ft.

 Completed Information for Formation FORT HAYS
1st Production Date:5/27/1993Choke Size: 
Formation Name:FORT HAYSCommingled:Yes
Production Method:
Open Hole Completion:No
Tubing Size:Tubing Setting Depth:
Tubing Packer Depth:Tubing Multiple Packer:
Open Hole Top:Open Hole Bottom:
No Initial Test Data was found for formation FTHYS.
Perforation Data:
Interval Top:7430 ft.# Of Holes:4
Interval Bottom:7431 ft.Hole Size:0.32 in.
Primary Well Designation:
None      i
            All DesignationsDate
Reported PluggedY07/31/2025
Out Of Service RepurposedN 
Out Of ServiceN 
Inactive ExceptionN 
Noticed InactiveN 
Defined InactiveN 
Low ProducingN 

BOE/MCFE/GOR Calculations
Production for Previous 12 Months
October 2024 - September 2025i
Total Oil Produced (Barrels)33
Total Gas Produced (MCF)776
GOR23515
GOR DeterminationMCFE
Average BOE per Day0.458
Average MCFE per Day2.671

 Federal Financial Assurance  i 

 Tribal Well  i No