Skip to Main Content

COGIS

Facility Detail

COGIS - WELL SCOUT CARD

Click image to view related facilities. Related  Click image to view inspection information. InspClick image to view MIT information. MITClick image to access interactive map at well/facility location. GISClick image to view imaged documents for this well/facility. DocClick image to view imaged documents for this well/facility. COAClick image to view wellbore completion diagram. WellboreClick image to search for orders within this facility's section. OrdersClick image to view bradenhead scoutcard data. Bradenhead
 Surface Location
 API# 05-123-16544
Well Classification: GW Status: PA - 3/24/2022
Well Name/No:KINSMAN #33-18
(Click Well Name for Production Data)
Click Here for Transporter Gatherer Info
Operator:PDC ENERGY INC - 69175
(Click Operator Name for Company Detail Report)
Federal Or State Lease #:60806
Facility Status:PAStatus Date3/24/2022
FacilityID:248742LocationID:332523
County:WELD #123Location:NWSE 18 4N65W 6
Field:WATTENBERG - #90750Elevation:4714 ft.
Basin:DENVER (DJ) BASIN  
Planned Location:1840FSL  1865 FELLat/Long: 40.310076 / -104.702969Lat/Long Source: Calculated From Footages
As Drilled Location:1834 FSL  1864 FELLat/Long: 40.310230 / -104.703030Lat/Long Source: Field Measured
 Wellbore And Formation Details -- select either a wellbore Or formation to expand.
 

Wellbore #00             Wellbore Classification: GW             Status: PA - 3/24/2022             Measured TD: 7278 ft.    Vertical TD: 0 ft.

 Wellbore Data for Original WellboreWellbore Classification: GW        PA - 3/24/2022
Wellbore Permit
Permit #:921770 Expiration Date:3/25/1993
Bottom Hole Location:Sec:18 Twp: 4N 65W Footage: 1834 FSL  1864 FEL
Proposed Depth/Form:
Surface Mineral Owner Same:Not available
Mineral Owner:FEESurface Owner:Not available
Unit: Unit Number: 
Formation And Spacing:Code: NB-CD , Formation: NIOBRARA-CODELL , Order: 0 , Unit Acreage: 80, Drill Unit: W2SE

Wellbore Completed
Completion Date:1/14/1993
Measured TD:7278 ft.Measured PB depth:7238 ft.
True Vertical TD:0 ft.True Vertical PB depth:
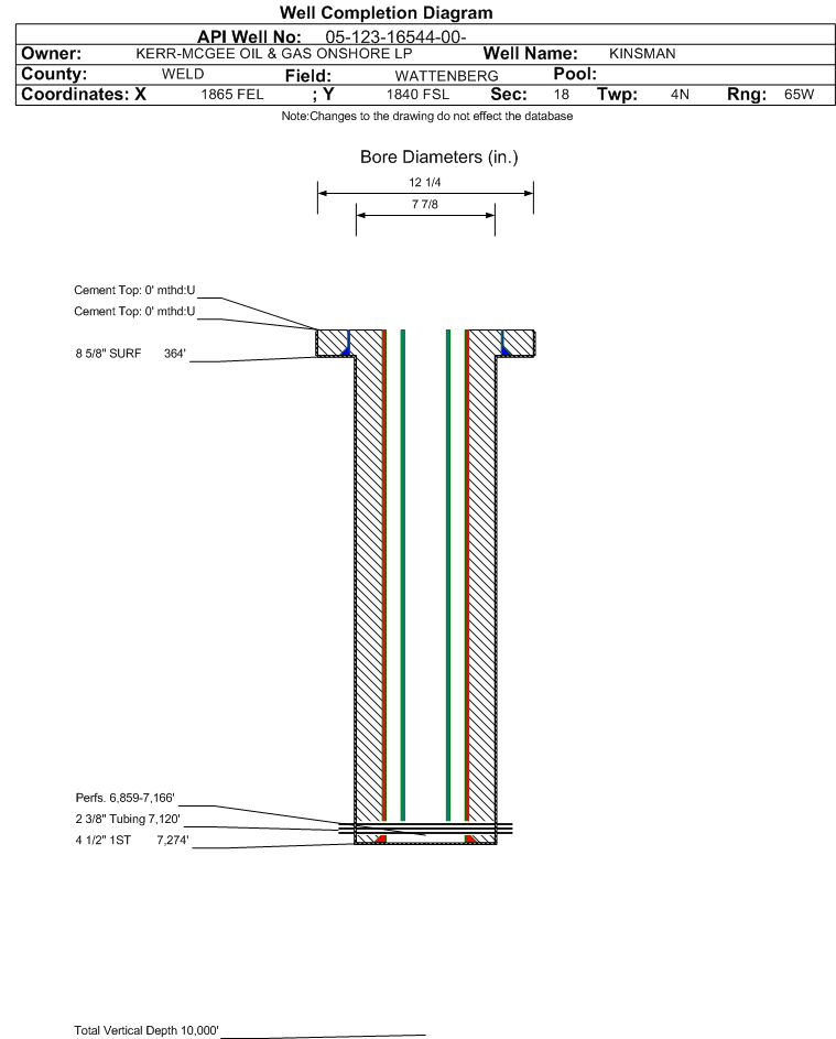
Casing:String Type: SURF, Hole Size: 12.25 in., Size: 8.625 in., Top: 0 ft., Depth: 364 ft., Weight: 24 , Citings Type: ACTUAL
Cement:Sacks: 100, Top: 0 ft., Bottom: 364 ft., Determination Method: VISU
Casing:String Type: 1ST, Hole Size: 7.875 in., Size: 4.5 in., Top: 0 ft., Depth: 7274 ft., Weight: 11.6 , Citings Type: ACTUAL
Cement:Sacks: 200, Top: 6310 ft., Bottom: 7274 ft., Determination Method: CBL
Casing:String Type: S.C. 1.1, Hole Size: , Size: , Top: , Depth: 4764 ft., Weight: , Citings Type: ACTUAL
Cement:Sacks: 300, Top: 4080 ft., Bottom: 4764 ft., Determination Method: CBL
FormationInterval TopLog BottomCoredDSTs
SUSSEX4424 ft.
NIOBRARA6842 ft.
CODELL7155 ft.

Formation NB-CD                   Formation Classification:  GW                   Status:  AB - 3/24/2022                 Interval Top: 6859 ft.    Interval Bottom: 7166 ft.

 Completed Information for Formation NIOBRARA-CODELL
1st Production Date:2/22/1993Choke Size:0.281 in.
Formation Name:NIOBRARA-CODELLCommingled:Yes
Production Method:FLOWING
Open Hole Completion:No
Formation Treatment
Treatment Date:1/14/1993
Treatment Summary:CODELL-NIOBRARA 118400 GAL FLUID 261340 LBS 20/40 SAND
Tubing Size:2.375 in.Tubing Setting Depth:7120 ft.
Tubing Packer Depth:Tubing Multiple Packer:
Open Hole Top:Open Hole Bottom:
Initial Test Data:
Test Date:12/20/2005Test Method:FLOWING
Hours Tested:24Gas Type:SHALE
Gas Disposal:SOLD
Test TypeMeasure
BBLS_H2O 0
BBLS_OIL 3
CALC_BBLS_H2O 0
CALC_BBLS_OIL 3
CALC_GOR 40000
CALC_MCF_GAS 120
CASING_PRESS 500
GRAVITY_OIL 60
MCF_GAS 120
TUBING_PRESS 300
Perforation Data:
Interval Top:6859 ft.# Of Holes:
Interval Bottom:7166 ft.Hole Size:
Primary Well Designation:
None      i
            All DesignationsDate
Reported PluggedY03/24/2022
Out Of Service RepurposedN 
Out Of ServiceN 
Inactive ExceptionN 
Noticed InactiveN 
Defined InactiveN 
Low ProducingN 

BOE/MCFE/GOR Calculations
Production for Previous 12 Months
October 2024 - September 2025i
Total Oil Produced (Barrels)0
Total Gas Produced (MCF)0
GOR
GOR DeterminationMCFE
Average BOE per Day0.000
Average MCFE per Day0.000

 Federal Financial Assurance  i 

 Tribal Well  i No