Skip to Main Content

COGIS

Facility Detail

COGIS - WELL SCOUT CARD

Click image to view related facilities. Related  Click image to view inspection information. InspClick image to view MIT information. MITClick image to access interactive map at well/facility location. GISClick image to view imaged documents for this well/facility. DocClick image to view imaged documents for this well/facility. COAClick image to view wellbore completion diagram. WellboreClick image to search for orders within this facility's section. OrdersClick image to view bradenhead scoutcard data. Bradenhead
 Surface Location
 API# 05-123-15664
Well Classification: GW Status: PR - 10/1/2025
Well Name/No:OPEL #4
(Click Well Name for Production Data)
Click Here for Transporter Gatherer Info
Operator:PDC ENERGY INC - 69175
(Click Operator Name for Company Detail Report)
Federal Or State Lease #:68361
Facility Status:PRStatus Date10/1/2025
FacilityID:247866LocationID:328189
County:WELD #123Location:SWNE 17 4N65W 6
Field:WATTENBERG - #90750Elevation:4745 ft.
Basin:DENVER (DJ) BASIN  
Planned Location:2120FNL  2050 FELLat/Long: 40.313756 / -104.684868Lat/Long Source: Calculated From Footages
As Drilled Location:Footages Not AvailableLat/Long: 40.313611 / -104.684722Lat/Long Source: Field Measured
 Wellbore And Formation Details -- select either a wellbore Or formation to expand.
 

Wellbore #00             Wellbore Classification: GW             Status: PR - 10/1/2025             Measured TD: 7307 ft.    Vertical TD: 0 ft.

 Wellbore Data for Original WellboreWellbore Classification: GW        PR - 10/1/2025
Wellbore Permit
Permit #:920296 Expiration Date:7/23/1992
Proposed Depth/Form:
Surface Mineral Owner Same:Not available
Mineral Owner:FEESurface Owner:Not available
Unit: Unit Number: 
Formation And Spacing:Code: CODL , Formation: CODELL , Order: 0 , Unit Acreage: 80, Drill Unit: S2NE

Wellbore Completed
Completion Date:4/23/1992
Measured TD:7307 ft.Measured PB depth:7261 ft.
True Vertical TD:0 ft.True Vertical PB depth:
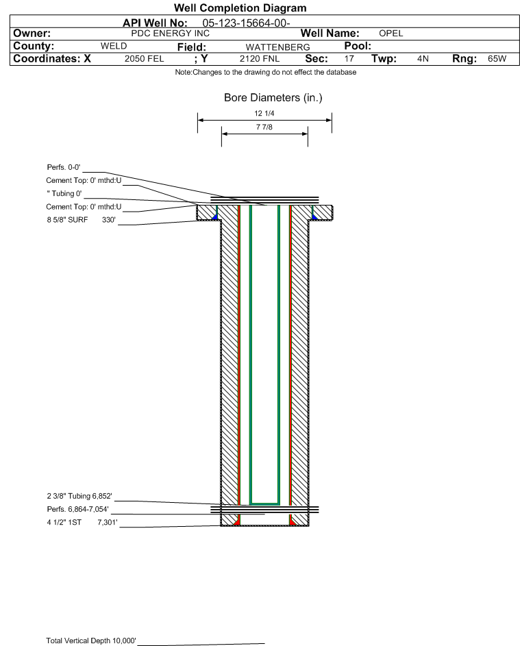
Casing:String Type: SURF, Hole Size: 12.25 in., Size: 8.625 in., Top: 0 ft., Depth: 330 ft., Weight: , Citings Type: HISTORICAL
Cement:Sacks: 260, Top: 0 ft., Bottom: , Determination Method:
Casing:String Type: 1ST, Hole Size: 7.875 in., Size: 4.5 in., Top: 0 ft., Depth: 7301 ft., Weight: , Citings Type: HISTORICAL
Cement:Sacks: 0, Top: 0 ft., Bottom: , Determination Method:
FormationInterval TopLog BottomCoredDSTs
CODELL7158 ft.

Formation CODL                     Formation Classification:  GW                     Status:  TA - 2/1/2011                  Interval Top: 7158 ft.

 Completed Information for Formation CODELL
1st Production Date:12/8/2008Choke Size: 
Formation Name:CODELLCommingled:No
Production Method:
Open Hole Completion:No
Formation Treatment
Treatment Date:4/23/1992
Treatment Summary:
Tubing Size:Tubing Setting Depth:
Tubing Packer Depth:Tubing Multiple Packer:
Open Hole Top:Open Hole Bottom:
No Initial Test Data was found for formation CODL.
Perforation Data:
Interval Top:# Of Holes:
Interval Bottom:Hole Size:

Formation NBRR                     Formation Classification:  GW                     Status:  PR - 10/1/2025                 Interval Top: 6864 ft.    Interval Bottom: 7054 ft.

 Completed Information for Formation NIOBRARA
1st Production Date:12/17/2008Choke Size:0.000 in.
Formation Name:NIOBRARACommingled:No
Production Method:
Open Hole Completion:No
Formation Treatment
Treatment Date:12/16/2008
Treatment Summary:FRAC'D W/ 4,024 BBLS FRAC FLUID & 236,780# OTTAWA 30/50 SAND & 12,960# SB EXCEL 12/20 SAND.
Tubing Size:2.375 in.Tubing Setting Depth:6852 ft.
Tubing Packer Depth:Tubing Multiple Packer:
Open Hole Top:Open Hole Bottom:
Initial Test Data:
Test Date:12/25/2008Test Method:FLOWING
Hours Tested:24Gas Type:SHALE
Gas Disposal:SOLD
Test TypeMeasure
BBLS_H2O 10
BBLS_OIL 15
BTU_GAS 1202
CALC_GOR 26000
CASING_PRESS 400
GRAVITY_OIL 66
MCF_GAS 390
TUBING_PRESS 400
Perforation Data:
Interval Top:6864 ft.# Of Holes:348
Interval Bottom:7054 ft.Hole Size:0.42 in.
Primary Well Designation:
None      i
            All DesignationsDate
Reported PluggedN 
Out Of Service RepurposedN 
Out Of ServiceN 
Inactive ExceptionN 
Noticed InactiveN 
Defined InactiveN 
Low ProducingN 

BOE/MCFE/GOR Calculations
Production for Previous 12 Months
October 2024 - September 2025i
Total Oil Produced (Barrels)174
Total Gas Produced (MCF)11219
GOR64477
GOR DeterminationMCFE
Average BOE per Day5.731
Average MCFE per Day33.244

 Federal Financial Assurance  i 

 Tribal Well  i No