Skip to Main Content

COGIS

Facility Detail

COGIS - WELL SCOUT CARD

Click image to view related facilities. Related  Click image to view inspection information. InspClick image to view MIT information. MITClick image to access interactive map at well/facility location. GISClick image to view imaged documents for this well/facility. DocClick image to view imaged documents for this well/facility. COAClick image to view wellbore completion diagram. WellboreClick image to search for orders within this facility's section. OrdersClick image to view bradenhead scoutcard data. Bradenhead
 Surface Location
 API# 05-123-15663
Well Classification: GW Status: PA - 11/14/2022
Well Name/No:OPEL #3
(Click Well Name for Production Data)
Click Here for Transporter Gatherer Info
Operator:PDC ENERGY INC - 69175
(Click Operator Name for Company Detail Report)
Federal Or State Lease #:68361
Facility Status:PAStatus Date11/14/2022
FacilityID:247865LocationID:328188
County:WELD #123Location:NENE 17 4N65W 6
Field:WATTENBERG - #90750Elevation:4721 ft.
Basin:DENVER (DJ) BASIN  
Planned Location:580FNL  470 FELLat/Long: 40.318016 / -104.679228Lat/Long Source: Calculated From Footages
As Drilled Location:Footages Not AvailableLat/Long: 40.317778 / -104.679167Lat/Long Source: Field Measured
 Wellbore And Formation Details -- select either a wellbore Or formation to expand.
 

Wellbore #00             Wellbore Classification: GW             Status: PA - 11/14/2022             Measured TD: 7280 ft.    Vertical TD: 0 ft.

 Wellbore Data for Original WellboreWellbore Classification: GW        PA - 11/14/2022
Wellbore Permit
Permit #:920295 Expiration Date:7/23/1992
Proposed Depth/Form:
Surface Mineral Owner Same:Not available
Mineral Owner:FEESurface Owner:Not available
Unit: Unit Number: 
Formation And Spacing:Code: CODL , Formation: CODELL , Order: 0 , Unit Acreage: 80, Drill Unit: E2NE

Wellbore Completed
Completion Date:5/6/1992
Measured TD:7280 ft.Measured PB depth:7065 ft.
True Vertical TD:0 ft.True Vertical PB depth:
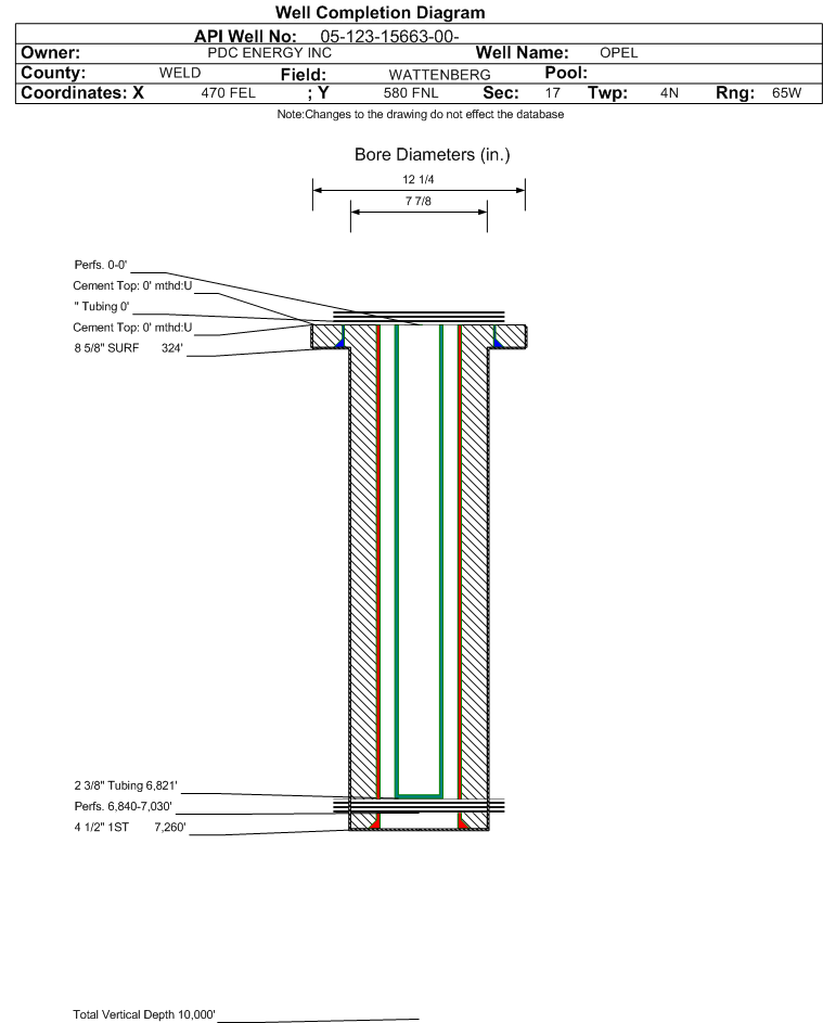
Casing:String Type: SURF, Hole Size: 12.25 in., Size: 8.625 in., Top: 0 ft., Depth: 324 ft., Weight: 24 , Citings Type: ACTUAL
Cement:Sacks: 270, Top: 0 ft., Bottom: 324 ft., Determination Method: VISU
Casing:String Type: SURF, Hole Size: 12.25 in., Size: 8.625 in., Top: 0 ft., Depth: 324 ft., Weight: , Citings Type: HISTORICAL
Cement:Sacks: 270, Top: 0 ft., Bottom: , Determination Method:
Casing:String Type: 1ST, Hole Size: 7.875 in., Size: 4.5 in., Top: 0 ft., Depth: 7260 ft., Weight: 11.6 , Citings Type: ACTUAL
Cement:Sacks: 280, Top: 5988 ft., Bottom: 7260 ft., Determination Method: CBL
Casing:String Type: 1ST, Hole Size: 7.875 in., Size: 4.5 in., Top: 0 ft., Depth: 7260 ft., Weight: , Citings Type: HISTORICAL
Cement:Sacks: 0, Top: 0 ft., Bottom: , Determination Method:
FormationInterval TopLog BottomCoredDSTs
CODELL7134 ft.

Formation CODL                     Formation Classification:  GW                     Status:  AB - 11/14/2022                Interval Top: 7134 ft.

 Completed Information for Formation CODELL
1st Production Date:N/AChoke Size: 
Formation Name:CODELLCommingled:No
Production Method:
Open Hole Completion:No
Formation Treatment
Treatment Date:5/6/1992
Treatment Summary:
Tubing Size:Tubing Setting Depth:
Tubing Packer Depth:Tubing Multiple Packer:
Open Hole Top:Open Hole Bottom:
No Initial Test Data was found for formation CODL.
Perforation Data:
Interval Top:# Of Holes:
Interval Bottom:Hole Size:

Formation NBRR                     Formation Classification:  GW                     Status:  AB - 11/14/2022                Interval Top: 6840 ft.    Interval Bottom: 7030 ft.

 Completed Information for Formation NIOBRARA
1st Production Date:12/9/2008Choke Size:0.000 in.
Formation Name:NIOBRARACommingled:No
Production Method:
Open Hole Completion:No
Formation Treatment
Treatment Date:12/8/2008
Treatment Summary:FRAC'D W/ 4,040 BBLS FRAC FLUID & 238,130# OTTAWA 30/50 SAND & 12,408# SB EXCEL 12/20 SAND.
Tubing Size:2.375 in.Tubing Setting Depth:6821 ft.
Tubing Packer Depth:Tubing Multiple Packer:
Open Hole Top:Open Hole Bottom:
Initial Test Data:
Test Date:12/18/2008Test Method:FLOWING
Hours Tested:24Gas Type:SHALE
Gas Disposal:SOLD
Test TypeMeasure
BBLS_H2O 14
BBLS_OIL 31
BTU_GAS 1202
CALC_GOR 16581
CASING_PRESS 300
GRAVITY_OIL 64
MCF_GAS 514
TUBING_PRESS 300
Perforation Data:
Interval Top:6840 ft.# Of Holes:348
Interval Bottom:7030 ft.Hole Size:0.42 in.
Primary Well Designation:
None      i
            All DesignationsDate
Reported PluggedY11/14/2022
Out Of Service RepurposedN 
Out Of ServiceN 
Inactive ExceptionN 
Noticed InactiveYNoticed Date
12/13/2022
Defined InactiveN 
Low ProducingN 

BOE/MCFE/GOR Calculations
Production for Previous 12 Months
October 2024 - September 2025i
Total Oil Produced (Barrels)0
Total Gas Produced (MCF)0
GOR
GOR DeterminationMCFE
Average BOE per Day0.000
Average MCFE per Day0.000

 Federal Financial Assurance  i 

 Tribal Well  i No