Skip to Main Content

COGIS

Facility Detail

COGIS - WELL SCOUT CARD

Click image to view related facilities. Related  Click image to view inspection information. InspClick image to view MIT information. MITGIS Map GISOld GIS Map Old GISClick image to view imaged documents for this well/facility. DocClick image to view imaged documents for this well/facility. COAClick image to view wellbore completion diagram. WellboreClick image to search for orders within this facility's section. OrdersClick image to view bradenhead scoutcard data. Bradenhead
 Surface Location
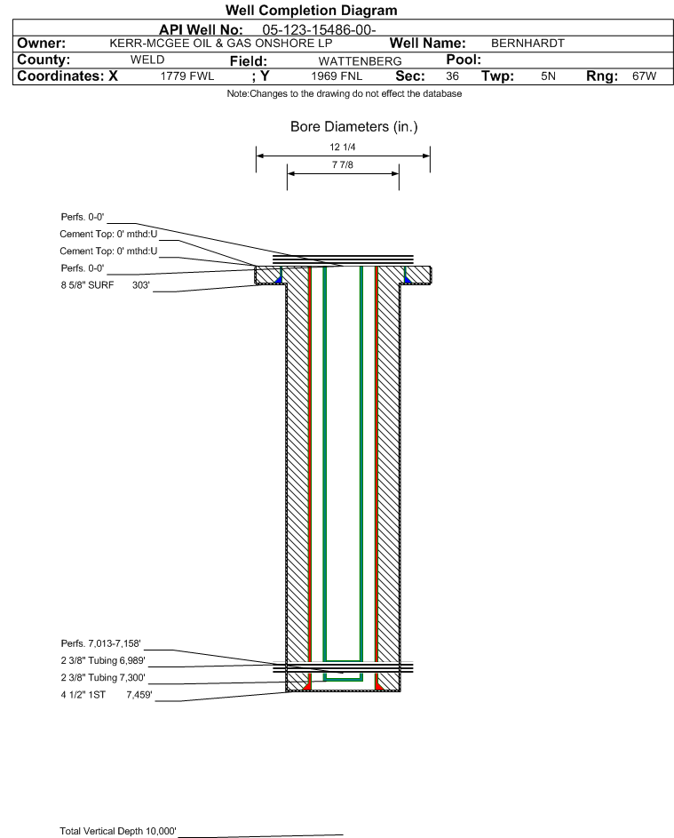
 API# 05-123-15486
Well Classification: GW Status: PA - 6/17/2025
Well Name/No:BERNHARDT #2-36
(Click Well Name for Production Data)
Click Here for Transporter Gatherer Info
Operator:PDC ENERGY INC - 69175
(Click Operator Name for Company Detail Report)
Federal Or State Lease #:65442
Facility Status:PAStatus Date6/17/2025
FacilityID:247689LocationID:328057
County:WELD #123Location:SENW 36 5N67W 6
Field:WATTENBERG - #90750Elevation:4833 ft.
Basin:DENVER (DJ) BASIN  
Planned Location:1969FNL  1779 FWLLat/Long: 40.357854 / -104.844544Lat/Long Source: Calculated From Footages
As Drilled Location:Footages Not AvailableLat/Long: 40.358450 / -104.843720Lat/Long Source: Field Measured
 Wellbore And Formation Details -- select either a wellbore Or formation to expand.
 

Wellbore #00             Wellbore Classification: GW             Status: AB - 6/17/2025             Measured TD: 7459 ft.    Vertical TD: 0 ft.

 Wellbore Data for Original WellboreWellbore Classification: GW        AB - 6/17/2025
Wellbore Permit
Permit #:911292 Expiration Date:4/21/1992
Proposed Depth/Form:
Surface Mineral Owner Same:Not available
Mineral Owner:STATESurface Owner:Not available
Unit: Unit Number: 
Formation And Spacing:Code: CODL , Formation: CODELL , Order: 0 , Unit Acreage: 80, Drill Unit: S2NW

Wellbore Completed
Completion Date:1/6/1992
Measured TD:7459 ft.Measured PB depth:7413 ft.
True Vertical TD:0 ft.True Vertical PB depth:
Casing:String Type: SURF, Hole Size: 12.25 in., Size: 8.625 in., Top: 0 ft., Depth: 303 ft., Weight: 24 , Citings Type: ACTUAL
Cement:Sacks: 210, Top: 0 ft., Bottom: 303 ft., Determination Method: VISU
Casing:String Type: 1ST, Hole Size: 7.875 in., Size: 4.5 in., Top: 0 ft., Depth: 7459 ft., Weight: 11.6 , Citings Type: ACTUAL
Cement:Sacks: 175, Top: 6474 ft., Bottom: 7459 ft., Determination Method: CBL
FormationInterval TopLog BottomCoredDSTs
NIOBRARA7013 ft.
CODELL7313 ft.

Formation CODL                     Formation Classification:  GW                     Status:  CM - 12/14/1999                Interval Top: 7313 ft.

 Completed Information for Formation CODELL
1st Production Date:2/28/1992Choke Size: 
Formation Name:CODELLCommingled:No
Production Method:
Open Hole Completion:No
Formation Treatment
Treatment Date:1/6/1992
Treatment Summary:FRAC INFO REPRESENTS;
Tubing Size:2.375 in.Tubing Setting Depth:6989 ft.
Tubing Packer Depth:Tubing Multiple Packer:
Open Hole Top:Open Hole Bottom:
Initial Test Data:
Test Date:N/ATest Method:
Hours Tested:Gas Type:
Gas Disposal:
Test TypeMeasure
BBLS_OIL 8
CALC_BBLS_OIL 8
CALC_GOR 11750
CALC_MCF_GAS 94
CASING_PRESS 776
MCF_GAS 94
TUBING_PRESS 730
Perforation Data:
Interval Top:# Of Holes:
Interval Bottom:Hole Size:

Formation NBRR                     Formation Classification:  GW                     Status:  CM - 1/28/2005                 Interval Top: 7013 ft.    Interval Bottom: 7158 ft.

 Completed Information for Formation NIOBRARA
1st Production Date:N/AChoke Size:0.375 in.
Formation Name:NIOBRARACommingled:No
Production Method:FLOWING
Open Hole Completion:No
Formation Treatment
Treatment Date:1/6/1992
Treatment Summary:CODELL-NIOBRARA 1000 GAL FLUID FRAC INFO REPRESENTS: NB-CD 147533 GAL FLUID 171180 LBS 20/40 SAND
Tubing Size:2.375 in.Tubing Setting Depth:6989 ft.
Tubing Packer Depth:Tubing Multiple Packer:
Open Hole Top:Open Hole Bottom:
Initial Test Data:
Test Date:1/28/2005Test Method:FLOWING
Hours Tested:24Gas Type:SHALE
Gas Disposal:SOLD
Test TypeMeasure
BBLS_OIL 5
CALC_BBLS_OIL 5
CALC_GOR 14400
CALC_MCF_GAS 72
CASING_PRESS 493
GRAVITY_OIL 57
MCF_GAS 72
TUBING_PRESS 473
Perforation Data:
Interval Top:7013 ft.# Of Holes:70
Interval Bottom:7158 ft.Hole Size:0.38 in.

Formation NB-CD                   Formation Classification:  GW                   Status:  AB - 6/17/2025

 Completed Information for Formation NIOBRARA-CODELL
1st Production Date:2/3/2006Choke Size:1.000 in.
Formation Name:NIOBRARA-CODELLCommingled:Yes
Production Method:
Open Hole Completion:No
Formation Treatment
Treatment Date:1/6/1992
Treatment Summary:NOTE: CLEANED OUT SAND PLUG ACROSS CODELL ON 1/30/06
Tubing Size:2.375 in.Tubing Setting Depth:7300 ft.
Tubing Packer Depth:Tubing Multiple Packer:
Open Hole Top:Open Hole Bottom:
Initial Test Data:
Test Date:4/1/2006Test Method:FLOWING
Hours Tested:24Gas Type:SHALE
Gas Disposal:SOLD
Test TypeMeasure
BBLS_H2O 0
BBLS_OIL 2
CALC_BBLS_H2O 0
CALC_BBLS_OIL 2
CALC_GOR 18500
CALC_MCF_GAS 37
CASING_PRESS 389
GRAVITY_OIL 50
MCF_GAS 37
TUBING_PRESS 314
Perforation Data:
Interval Top:# Of Holes:
Interval Bottom:Hole Size:
Primary Well Designation:
None      i
            All DesignationsDate
Reported PluggedY06/17/2025
Out Of Service RepurposedN 
Out Of ServiceN 
Inactive ExceptionN 
Noticed InactiveN 
Defined InactiveN 
Low ProducingN 

BOE/MCFE/GOR Calculations
Production for Previous 12 Months
January 2025 - December 2025i
Total Oil Produced (Barrels)34
Total Gas Produced (MCF)1303
GOR38323
GOR DeterminationMCFE
Average BOE per Day0.728
Average MCFE per Day4.233

 Federal Financial Assurance  i 

 Tribal Well  i No