Skip to Main Content

COGIS

Facility Detail

COGIS - WELL SCOUT CARD

Click image to view related facilities. Related  Click image to view inspection information. InspClick image to view MIT information. MITClick image to access interactive map at well/facility location. GISClick image to view imaged documents for this well/facility. DocClick image to view imaged documents for this well/facility. COAClick image to view wellbore completion diagram. WellboreClick image to search for orders within this facility's section. OrdersClick image to view bradenhead scoutcard data. Bradenhead
 Surface Location
 API# 05-123-09767
Well Classification: OW Status: SI - 9/1/2025
Well Name/No:MUSICK-MCCLINTOCK #4
(Click Well Name for Production Data)
Click Here for Transporter Gatherer Info
Operator:KP KAUFFMAN COMPANY INC - 46290
(Click Operator Name for Company Detail Report)
Federal Or State Lease #:69075
Facility Status:SIStatus Date9/1/2025
FacilityID:241976LocationID:311328
County:WELD #123Location:SENE 32 4N65W 6
Field:HAMBERT - #33530Elevation:4862 ft.
Basin:DENVER (DJ) BASIN  
Planned Location:1990FNL  740 FELLat/Long: 40.270546 / -104.680188Lat/Long Source: Calculated From Footages
As Drilled Location:Footages Not AvailableLat/Long: 40.270446 / -104.680291Lat/Long Source: Field Measured
 Wellbore And Formation Details -- select either a wellbore Or formation to expand.
 

Wellbore #00             Wellbore Classification: OW             Status: SI - 9/1/2025             Measured TD: 4750 ft.    Vertical TD: 0 ft.

 Wellbore Data for Original WellboreWellbore Classification: OW        SI - 9/1/2025
Wellbore Permit
Permit #:790895 Expiration Date:12/30/1979
Proposed Depth/Form:
Surface Mineral Owner Same:Not available
Mineral Owner:FEESurface Owner:Not available
Unit: Unit Number: 
Formation And Spacing:Code: SUSX , Formation: SUSSEX , Order: 0 , Unit Acreage: 40, Drill Unit: SENE

Wellbore Completed
Completion Date:9/22/1979
Measured TD:4750 ft.Measured PB depth:4704 ft.
True Vertical TD:0 ft.True Vertical PB depth:
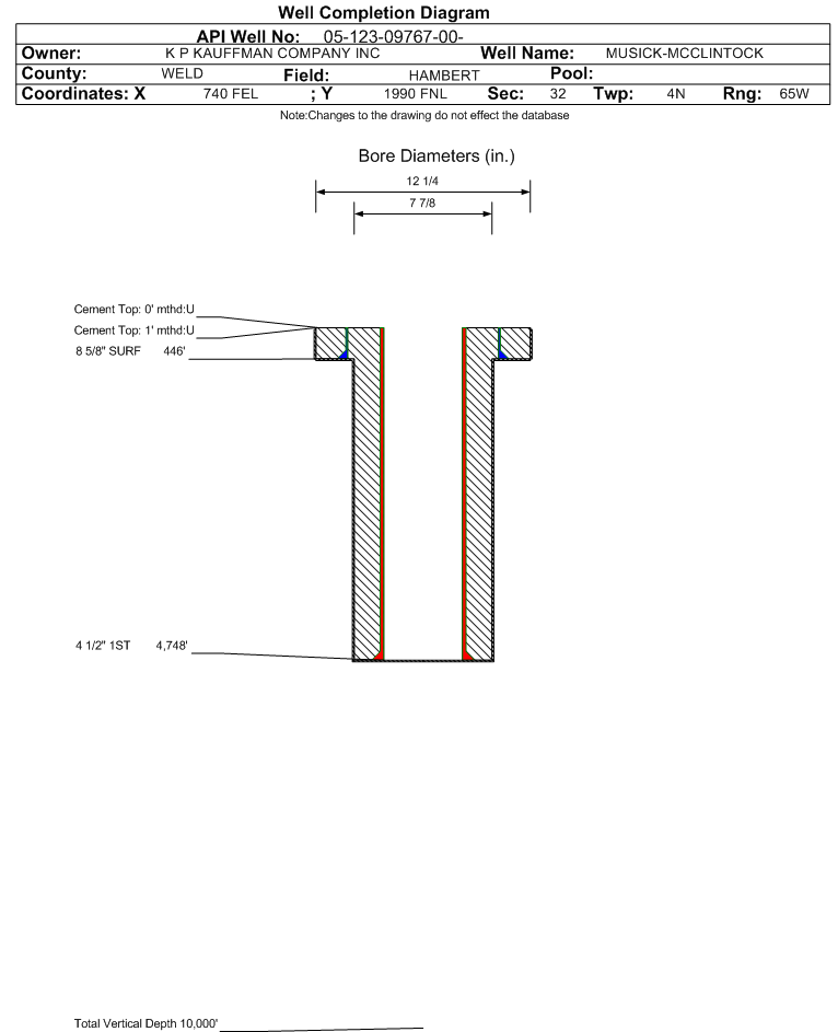
Casing:String Type: SURF, Hole Size: 12.25 in., Size: 8.625 in., Top: 0 ft., Depth: 446 ft., Weight: , Citings Type: HISTORICAL
Cement:Sacks: 300, Top: 1 ft., Bottom: , Determination Method:
Casing:String Type: 1ST, Hole Size: 7.875 in., Size: 4.5 in., Top: 0 ft., Depth: 4748 ft., Weight: , Citings Type: HISTORICAL
Cement:Sacks: 0, Top: 0 ft., Bottom: , Determination Method:
FormationInterval TopLog BottomCoredDSTs
FOX HILLS BASE390 ft.
SUSSEX4454 ft.

Formation SUSX                     Formation Classification:  OW                     Status:  SI - 9/1/2025                  Interval Top: 4533 ft.    Interval Bottom: 4563 ft.

 Completed Information for Formation SUSSEX
1st Production Date:9/22/1979Choke Size:2,464.000 in.
Formation Name:SUSSEXCommingled:
Production Method:
Open Hole Completion:
Tubing Size:Tubing Setting Depth:
Tubing Packer Depth:Tubing Multiple Packer:
Open Hole Top:Open Hole Bottom:
No Initial Test Data was found for formation SUSX.
Perforation Data:
Interval Top:4533 ft.# Of Holes:14
Interval Bottom:4563 ft.Hole Size:0.4 in.
Primary Well Designation:
Defined Inactive      i
            All DesignationsDate
Reported PluggedN 
Out Of Service RepurposedN 
Out Of ServiceN 
Inactive ExceptionN 
Noticed InactiveN 
Defined Inactive (SI )YDefined Inactive
10/20/2024
Low ProducingYProduction Period
10/2024 - 09/2025

BOE/MCFE/GOR Calculations
Production for Previous 12 Months
October 2024 - September 2025i
Total Oil Produced (Barrels)0
Total Gas Produced (MCF)0
GOR
GOR Determination 
Average BOE per Day0.000
Average MCFE per Day0.000

 Federal Financial Assurance  i 

 Tribal Well  i No