|
|
| |
|
|
|
|
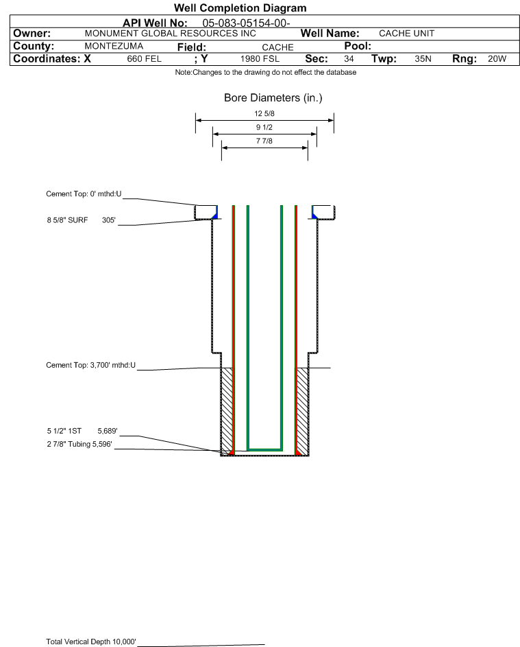
Wellbore #00 Wellbore Classification: ERIW Status: SI - 7/25/2011 Measured TD: 5710 ft.| Wellbore Data for Original Wellbore | Wellbore Classification: ERIW SI - 7/25/2011 | | Wellbore Permit | | | Permit #: | 19650203 | Expiration Date: | 10/1/1965 | | Proposed Depth/Form: | 5725 ft. | | Surface Mineral Owner Same: | No | | Mineral Owner: | FEDERAL | Surface Owner: | FEDERAL | | Unit: | | Unit Number: | | | Formation And Spacing: | Code: DSCR , Formation: DESERT CREEK , Order: , Unit Acreage: , Drill Unit: | | Formation And Spacing: | Code: ISMY , Formation: ISMAY , Order: , Unit Acreage: , Drill Unit: |
| | |
| Wellbore Completed | | Completion Date: | 1/25/1984 | | Spud Date: | 6/2/1965 | Spud Date Is: | ACTUAL | | Measured TD: | 5710 ft. | Measured PB depth: | 5664 ft. | | True Vertical TD: | | True Vertical PB depth: | | | Log Types: | INDUCTION ELECTRIC & SONIC GAMMA RAY WITH CALIPER | | Casing: | String Type: SURF, Hole Size: 11 in., Size: 8.625 in., Top: , Depth: 305 ft., Weight: 24 , Citings Type: ACTUAL | | Cement: | Sacks: 265, Top: 0 ft., Bottom: 305 ft., Determination Method: CALC | | Casing: | String Type: 1ST, Hole Size: 7.875 in., Size: 5.5 in., Top: , Depth: 5689 ft., Weight: 14 , Citings Type: ACTUAL | | Cement: | Sacks: 300, Top: 3700 ft., Bottom: 5689 ft., Determination Method: CALC | | Casing: | String Type: STAGE TOOL, Hole Size: 7.875 in., Size: 5.5 in., Top: , Depth: 3349 ft., Weight: 14 , Citings Type: ACTUAL | | Cement: | Sacks: 650, Top: 0 ft., Bottom: 3349 ft., Determination Method: CALC | | Formation | Interval Top | Log Bottom | Cored | DSTs | | CUTLER | 2692 ft. | | N | N | | HERMOSA | 4520 ft. | | N | N | | ISMAY | 5430 ft. | | N | N | | LOWER ISMAY | 5585 ft. | | N | N |
Formation ISMY Formation Classification: GW Status: SI - 7/25/2011 Interval Top: 5504 ft. Interval Bottom: 5633 ft.| Completed Information for Formation ISMAY | | 1st Production Date: | 6/27/1965 | Choke Size: | 0.312 in. | | Formation Name: | ISMAY | Commingled: | | | Production Method: | INJECTION | | Open Hole Completion: | |
| | Formation Treatment | | Treatment Date: | 1/25/1984 | | Treatment Summary: | 4/68 CONVERSION TO INJECTION: 500 GALS 28% HCL 5624'-5646'; ORIGINAL COMPLETION: 500 GALS REG. (SQUEEZED OFF) FROM 5626'-5633' AND 5593'-5598' AND 1500 GALS REG. 15% ACID FROM 5576'-5583' AND 5565'-5571' |
| | Tubing Size: | 2.875 in. | Tubing Setting Depth: | 5596 ft. | | Tubing Packer Depth: | | Tubing Multiple Packer: | | | Open Hole Top: | | Open Hole Bottom: | | | Initial Test Data: | | Test Date: | 7/4/1965 | Test Method: | FLOWING | | Hours Tested: | 17.5 | Gas Type: | | | Gas Disposal: | | |
| Test Type | Measure |
|---|
| BBLS_OIL | 143 | | CALC_BBLS_OIL | 196 | | CALC_GOR | 1770 | | CALC_MCF_GAS | 346 | | CASING_PRESS | 550 | | GRAVITY_OIL | 45 | | TUBING_PRESS | 125 |
| | Perforation Data: | | Interval Top: | 5504 ft. | # Of Holes: | | | Interval Bottom: | 5633 ft. | Hole Size: | |
|
Sidetrack #01 Wellbore Classification: Status: PR - 5/1/2012 Measured TD: | Wellbore Data for Sidetrack #01 | Wellbore Classification: PR - 5/1/2012 | | Wellbore Permit | | | Permit #: | | Expiration Date: | N/A | | Proposed Depth/Form: | | | Surface Mineral Owner Same: | | | Mineral Owner: | | Surface Owner: | | | Unit: | | Unit Number: | |
| | |
| Wellbore Completed | | Completion Date: | N/A | | Measured TD: | | Measured PB depth: | | | True Vertical TD: | | True Vertical PB depth: | |
Formation ISMY Formation Classification: Status: PR - 5/15/2012| Completed Information for Formation ISMAY | | 1st Production Date: | N/A | Choke Size: | | | Formation Name: | ISMAY | Commingled: | | | Production Method: | | | Open Hole Completion: | |
| | Tubing Size: | | Tubing Setting Depth: | | | Tubing Packer Depth: | | Tubing Multiple Packer: | | | Open Hole Top: | | Open Hole Bottom: | | | No Initial Test Data was found for formation ISMY. |
| | No Perforation Data was found for formation ISMY. |
|
|
|
|
|
|
|
| Reported Plugged | N | |
| Out Of Service Repurposed | N | |
| Out Of Service | N | |
| Inactive Exception | N | |
| Noticed Inactive | N | |
| Defined Inactive (SI ) | Y | Defined Inactive 09/30/2008 |
| Low Producing | N | |
| Total Oil Produced (Barrels) | 0 |
| Total Gas Produced (MCF) | 0 |
| GOR | |
| GOR Determination | |
| Average BOE per Day | 0.000 |
| Average MCFE per Day | 0.000 |
| Federal Financial Assurance | i | |
|
|