Skip to Main Content

COGIS

Facility Detail

COGIS - WELL SCOUT CARD

Click image to view related facilities. Related  Click image to view inspection information. InspClick image to view MIT information. MITClick image to access interactive map at well/facility location. GISClick image to view imaged documents for this well/facility. DocClick image to view imaged documents for this well/facility. COAClick image to view wellbore completion diagram. WellboreClick image to search for orders within this facility's section. OrdersClick image to view bradenhead scoutcard data. Bradenhead
 This operator is no longer active in the State of Colorado.
 Surface Location
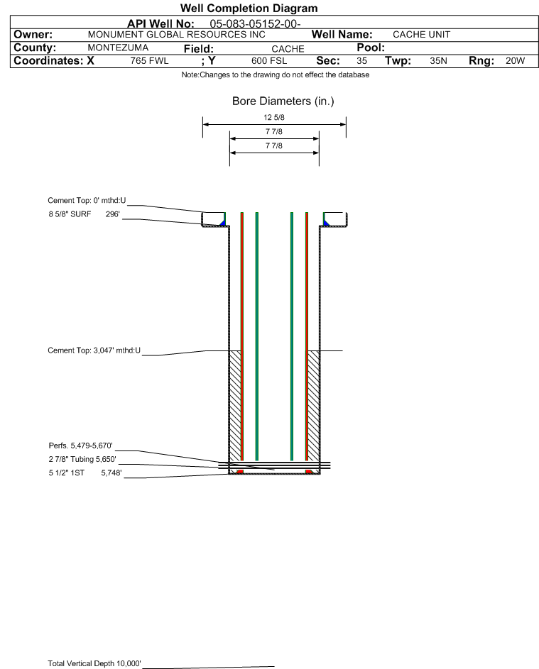
 API# 05-083-05152
Well Classification: GW Status: SI - 5/1/2014
Well Name/No:CACHE UNIT #6 (OWP)
(Click Well Name for Production Data)
Click Here for Transporter Gatherer Info
Operator:MONUMENT GLOBAL RESOURCES INC - 10430
(Click Operator Name for Company Detail Report)
Federal Or State Lease #:C-02763
Facility Status:SIStatus Date5/1/2014
FacilityID:223752LocationID:313428
County:MONTEZUMA #083Location:SWSW 35 35N20W N
Field:CACHE - #9610Elevation:5007 ft.
Basin:PARADOX BASIN  
Planned Location:600FSL  765 FWLLat/Long: 37.241979 / -109.024553Lat/Long Source: Calculated From Footages
As Drilled Location:Footages Not AvailableLat/Long: 37.241979 / -109.024553Lat/Long Source: Field Measured
 Wellbore And Formation Details -- select either a wellbore Or formation to expand.
 

Wellbore #00             Wellbore Classification: OW             Status: SI - 5/1/2014             Measured TD: 5750 ft.

 Wellbore Data for Original WellboreWellbore Classification: OW        SI - 5/1/2014
Wellbore Permit
Permit #:19650103 Expiration Date:7/25/1965
Proposed Depth/Form:5800 ft.
Surface Mineral Owner Same:Not available
Mineral Owner:FEDERALSurface Owner:FEE
Unit: Unit Number: 
Formation And Spacing:Code: DSCR , Formation: DESERT CREEK , Order: , Unit Acreage: , Drill Unit:
Formation And Spacing:Code: ISMY , Formation: ISMAY , Order: , Unit Acreage: , Drill Unit:

Wellbore Completed
Completion Date:2/4/1985
Spud Date:3/30/1965Spud Date Is:ACTUAL
Measured TD:5750 ft.Measured PB depth:5706 ft.
True Vertical TD:True Vertical PB depth:
Log Types:NONE
Log Types:INDUCTION ELECTRIC & SONIC GAMMA RAY WITH CALIPER
Casing:String Type: SURF, Hole Size: 11 in., Size: 8.625 in., Top: , Depth: 296 ft., Weight: 24 , Citings Type: ACTUAL
Cement:Sacks: 225, Top: 0 ft., Bottom: 296 ft., Determination Method: CALC
Casing:String Type: 1ST, Hole Size: 7.875 in., Size: 5.5 in., Top: , Depth: 5748 ft., Weight: 14 , Citings Type: ACTUAL
Cement:Sacks: 400, Top: 0 ft., Bottom: 5748 ft., Determination Method: CALC
Casing:String Type: STAGE TOOL, Hole Size: 7.875 in., Size: 5.5 in., Top: , Depth: 3306 ft., Weight: 14 , Citings Type: ACTUAL
Cement:Sacks: 500, Top: 0 ft., Bottom: 3306 ft., Determination Method: CALC
FormationInterval TopLog BottomCoredDSTs
HERMOSA4610 ft.NN
ISMAY5606 ft.NN
PARADOX5680 ft.NN
DESERT CREEK5730 ft.NN

Formation ISMY                     Formation Classification:  GW                     Status:  SI - 5/1/2014                  Interval Top: 5479 ft.    Interval Bottom: 5670 ft.

 Completed Information for Formation ISMAY
1st Production Date:4/24/1965Choke Size: 
Formation Name:ISMAYCommingled:
Production Method:PUMPING
Open Hole Completion:
Formation Treatment
Treatment Date:2/4/1985
Treatment Summary:2/85 COMPLETION: 6500 GALS 18% HCL FROM 5479'-5670'; 4/65 COMPLETION: 1000 GALS REG ACID, THEN 3000 GALS REG AND 5000 GAL RETARDED ACID FROM 5552'-5670'
Tubing Size:2.875 in.Tubing Setting Depth:5650 ft.
Tubing Packer Depth:Tubing Multiple Packer:
Open Hole Top:Open Hole Bottom:
Initial Test Data:
Test Date:4/25/1965Test Method:PUMPING
Hours Tested:24Gas Type:
Gas Disposal:
Test TypeMeasure
BBLS_H2O 68
BBLS_OIL 460
CALC_BBLS_H2O 68
CALC_BBLS_OIL 460
CALC_GOR 1500
GRAVITY_OIL 45
TUBING_PRESS 250
Perforation Data:
Interval Top:5479 ft.# Of Holes:258
Interval Bottom:5670 ft.Hole Size:
Primary Well Designation:
Defined Inactive      i
            All DesignationsDate
Reported PluggedN 
Out Of Service RepurposedN 
Out Of ServiceN 
Inactive ExceptionN 
Noticed InactiveN 
Defined Inactive (SI )YDefined Inactive
04/30/2014
Low ProducingN 

BOE/MCFE/GOR Calculations
Production for Previous 12 Months
October 2024 - September 2025i
Total Oil Produced (Barrels)0
Total Gas Produced (MCF)0
GOR
GOR Determination 
Average BOE per Day0.000
Average MCFE per Day0.000

 Federal Financial Assurance  i 

 Tribal Well  i No