Skip to Main Content

COGIS

Facility Detail

COGIS - WELL SCOUT CARD

Click image to view related facilities. Related  Click image to view inspection information. InspClick image to view MIT information. MITClick image to access interactive map at well/facility location. GISClick image to view imaged documents for this well/facility. DocClick image to view imaged documents for this well/facility. COAClick image to view wellbore completion diagram. WellboreClick image to search for orders within this facility's section. OrdersClick image to view bradenhead scoutcard data. Bradenhead
 Surface Location
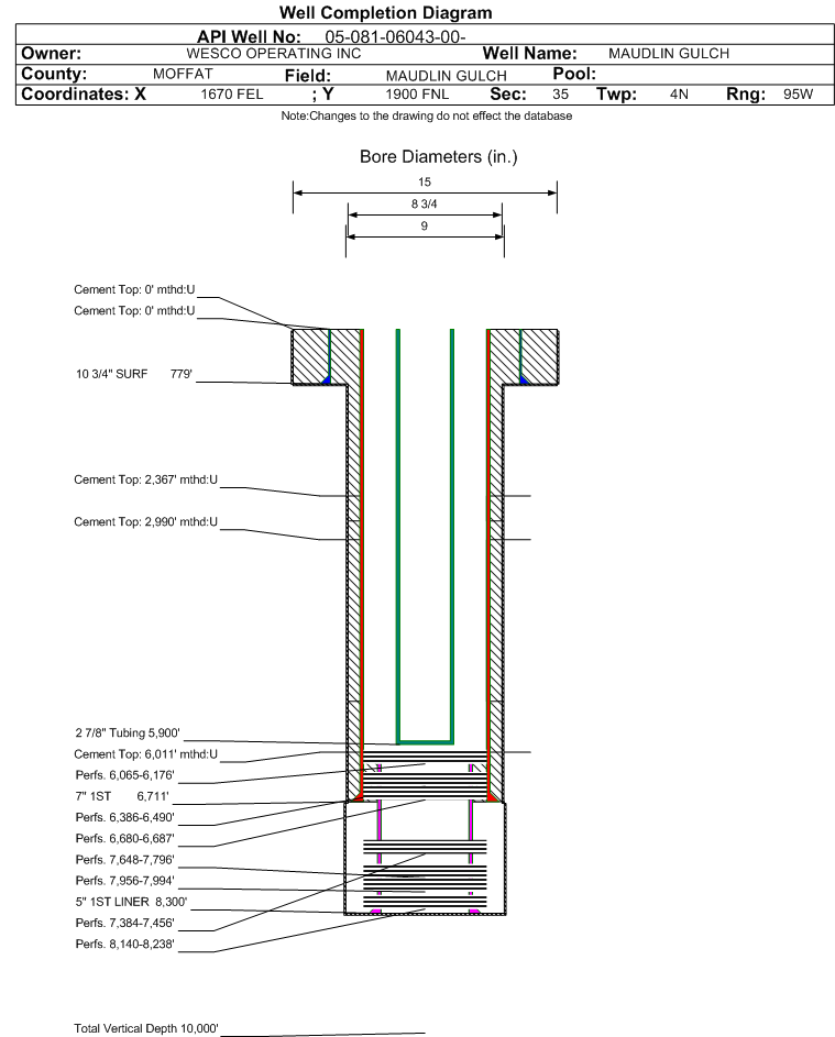
 API# 05-081-06043
Well Classification: OW Status: PA - 8/5/2021
Well Name/No:MAUDLIN GULCH #17
(Click Well Name for Production Data)
Click Here for Transporter Gatherer Info
Operator:WESCO OPERATING INC - 95520
(Click Operator Name for Company Detail Report)
Federal Or State Lease #:37854
Facility Status:PAStatus Date8/5/2021
FacilityID:222683LocationID:312871
County:MOFFAT #081Location:SWNE 35 4N95W 6
Field:MAUDLIN GULCH - #52950Elevation:7792 ft.
Basin:PICEANCE BASIN  
Planned Location:1900FNL  1670 FELLat/Long: 40.274748 / -108.015271Lat/Long Source: Calculated From Footages
As Drilled Location:Footages Not AvailableLat/Long: 40.274790 / -108.015350Lat/Long Source: Field Measured
 
FracFocus
Disclosure: Sidetrack #00
Start Date: 6/9/2015
End Date: 6/9/2015
Reported: 10/2/2015
Days to report: 115
 Wellbore And Formation Details -- select either a wellbore Or formation to expand.
 

Wellbore #00             Wellbore Classification: OW             Status: PA - 8/5/2021             Measured TD: 8303 ft.

 Wellbore Data for Original WellboreWellbore Classification: OW        PA - 8/5/2021
Wellbore Permit
Permit #:680032 Expiration Date:3/13/1998
Proposed Depth/Form:
Surface Mineral Owner Same:Not available
Mineral Owner:FEDERALSurface Owner:FEE
Unit: Unit Number:D-053129
Formation And Spacing:Code: WEBR , Formation: WEBER , Order: 0 , Unit Acreage: 0, Drill Unit:

Wellbore Completed
Completion Date:1/10/1988
Spud Date:2/19/1968Spud Date Is:ACTUAL
Measured TD:8303 ft.Measured PB depth:8173 ft.
True Vertical TD:True Vertical PB depth:
Log Types:CBL-CET, GR-DIL-BHCS-CAL
Casing:String Type: SURF, Hole Size: , Size: 10.75 in., Top: 0 ft., Depth: 779 ft., Weight: 40.5 , Citings Type: ACTUAL
Cement:Sacks: 420, Top: 0 ft., Bottom: 779 ft., Determination Method: VISU
Casing:String Type: 1ST, Hole Size: 8.75 in., Size: , Top: 0 ft., Depth: 6711 ft., Weight: 20 , Citings Type: ACTUAL
Cement:Sacks: 270, Top: 4651 ft., Bottom: 6711 ft., Determination Method: CALC
Casing:String Type: S.C. 1.1, Hole Size: , Size: , Top: , Depth: 5288 ft., Weight: , Citings Type: ACTUAL
Cement:Sacks: 905, Top: 2545 ft., Bottom: 5288 ft., Determination Method: CALC
Casing:String Type: S.C. 1.2, Hole Size: , Size: , Top: , Depth: 2990 ft., Weight: , Citings Type: ACTUAL
Cement:Sacks: 225, Top: 2990 ft., Bottom: 5288 ft., Determination Method: CALC
Casing:String Type: 2ND, Hole Size: 6.125 in., Size: 5.5 in., Top: 0 ft., Depth: 6011 ft., Weight: 17 , Citings Type: ACTUAL
Cement:Sacks: 0, Top: 0 ft., Bottom: 0 ft., Determination Method: VISU
Casing:String Type: 1ST LINER, Hole Size: 6.125 in., Size: 5 in., Top: 6011 ft., Depth: 8300 ft., Weight: 18 , Citings Type: ACTUAL
Cement:Sacks: 115, Top: 6011 ft., Bottom: 8300 ft., Determination Method: VISU
Casing:String Type: 2ND LINER, Hole Size: 6.125 in., Size: , Top: 6011 ft., Depth: 8300 ft., Weight: 18 , Citings Type: ACTUAL
Cement:Sacks: 115, Top: 6011 ft., Bottom: 8300 ft., Determination Method: VISU
FormationInterval TopLog BottomCoredDSTs
FRONTIER5694 ft.
MOWRY5982 ft.
DAKOTA6034 ft.
MORRISON6186 ft.
SUNDANCE6680 ft.
SHINARUMP7384 ft.
MOENKOPI7456 ft.
PHOSPHORIA7951 ft.
WEBER8130 ft.

Formation WEBR                     Formation Classification:  OW                     Status:  AB - 6/29/1989                 Interval Top: 8140 ft.    Interval Bottom: 8238 ft.

 Completed Information for Formation WEBER
1st Production Date:1/10/1988Choke Size:0.000 in.
Formation Name:WEBERCommingled:
Production Method:
Open Hole Completion:
Formation Treatment
Treatment Date:12/5/1987
Treatment Summary:ACIDIZE WITH 500 GAL 15% HCL
Tubing Size:Tubing Setting Depth:
Tubing Packer Depth:Tubing Multiple Packer:
Open Hole Top:Open Hole Bottom:
Initial Test Data:
Test Date:1/23/1988Test Method:PUMPING
Hours Tested:24Gas Type:
Gas Disposal:
Test TypeMeasure
BBLS_H2O 1046
BBLS_OIL 248
CALC_BBLS_H2O 1046
CALC_BBLS_OIL 248
GRAVITY_OIL 37.5
Perforation Data:
Interval Top:8140 ft.# Of Holes:
Interval Bottom:8238 ft.Hole Size:

Formation PSPR                     Formation Classification:  OW                     Status:  AB - 7/14/1989                 Interval Top: 7956 ft.    Interval Bottom: 7994 ft.

 Completed Information for Formation PHOSPHORIA
1st Production Date:7/26/1989Choke Size: 
Formation Name:PHOSPHORIACommingled:
Production Method:
Open Hole Completion:
Formation Treatment
Treatment Date:7/26/1989
Treatment Summary:61,750 GAL 30# HPG CROSSLINKED GEL, 85,000# 20-40 SAND
Tubing Size:Tubing Setting Depth:
Tubing Packer Depth:Tubing Multiple Packer:
Open Hole Top:Open Hole Bottom:
Initial Test Data:
Test Date:8/16/1989Test Method:PUMPING
Hours Tested:24Gas Type:
Gas Disposal:
Test TypeMeasure
BBLS_H2O 1255
BBLS_OIL 135
GRAVITY_OIL 36.7
MCF_GAS 0
Perforation Data:
Interval Top:7956 ft.# Of Holes:152
Interval Bottom:7994 ft.Hole Size:0.375 in.

Formation MNKP                     Formation Classification:  OW                     Status:  AB - 6/27/1995                 Interval Top: 7648 ft.    Interval Bottom: 7796 ft.

 Completed Information for Formation MOENKOPI
1st Production Date:N/AChoke Size: 
Formation Name:MOENKOPICommingled:
Production Method:
Open Hole Completion:
Tubing Size:Tubing Setting Depth:
Tubing Packer Depth:Tubing Multiple Packer:
Open Hole Top:Open Hole Bottom:
No Initial Test Data was found for formation MNKP.
Perforation Data:
Interval Top:7648 ft.# Of Holes:257
Interval Bottom:7796 ft.Hole Size:

Formation SRMP                     Formation Classification:  OW                     Status:  AB - 6/27/1995                 Interval Top: 7384 ft.    Interval Bottom: 7456 ft.

 Completed Information for Formation SHINARUMP
1st Production Date:N/AChoke Size: 
Formation Name:SHINARUMPCommingled:
Production Method:
Open Hole Completion:
Tubing Size:Tubing Setting Depth:
Tubing Packer Depth:Tubing Multiple Packer:
Open Hole Top:Open Hole Bottom:
No Initial Test Data was found for formation SRMP.
Perforation Data:
Interval Top:7384 ft.# Of Holes:149
Interval Bottom:7456 ft.Hole Size:

Formation SNDC                     Formation Classification:  OW                     Status:  AB - 8/5/2021                  Interval Top: 6680 ft.    Interval Bottom: 6687 ft.

 Completed Information for Formation SUNDANCE
1st Production Date:6/27/1995Choke Size: 
Formation Name:SUNDANCECommingled:
Production Method:
Open Hole Completion:
Tubing Size:Tubing Setting Depth:
Tubing Packer Depth:Tubing Multiple Packer:
Open Hole Top:Open Hole Bottom:
Initial Test Data:
Test Date:7/6/1995Test Method:PUMPING
Hours Tested:24Gas Type:
Gas Disposal:
Test TypeMeasure
BBLS_H2O 477
BBLS_OIL 123
CALC_BBLS_H2O 477
CALC_BBLS_OIL 123
CALC_MCF_GAS 0
GRAVITY_OIL 36.4
MCF_GAS 0
Perforation Data:
Interval Top:6680 ft.# Of Holes:29
Interval Bottom:6687 ft.Hole Size:

Formation MRSN                     Formation Classification:  OW                     Status:  AB - 8/5/2021                  Interval Top: 6386 ft.    Interval Bottom: 6490 ft.

 Completed Information for Formation MORRISON
1st Production Date:2/24/1998Choke Size: 
Formation Name:MORRISONCommingled:Yes
Production Method:
Open Hole Completion:No
Formation Treatment
Treatment Type:ACID JOB
Treatment Date:6/9/2015Treatment End Date:6/11/2015
Treatment Summary:Acidized Morrison in 2 stages with 3500 gallons 15% HCL and 250 gallons solvent
Total fluid used in treatment (bbls):154Max pressure during treatment (psi):967
Total gas used in treatment (mcf):0Fluid density (lbs/gal):
Type Of gas:Number Of staged intervals:2
Total acid used in treatment (bbls):83Min frac gradient (psi/ft):
Recycled water used in treatment (bbls):0Total flowback volume recovered (bbls):154
Fresh water used in treatment (bbls):65Disposition method For flowback:DISPOSAL
Total proppant used (lbs):0Green completions techniques utilized:Yes
Reason green techniques Not utilized: 
Formation Treatment
Treatment Date:2/23/1998
Treatment Summary:1000 GAL 15% HCL
Tubing Size:2.875 in.Tubing Setting Depth:5900 ft.
Tubing Packer Depth:Tubing Multiple Packer:
Open Hole Top:Open Hole Bottom:
Initial Test Data:
Test Date:7/21/2015Test Method:flow meter
Hours Tested:24Gas Type:WET
Gas Disposal:VENTED
Test TypeMeasure
BBLS_H2O 2757
BBLS_OIL 9
BTU_GAS 2
CALC_BBLS_H2O 2757
CALC_BBLS_OIL 9
CALC_MCF_GAS 0
CASING_PRESS 100
GRAVITY_OIL 32
MCF_GAS 0
TUBING_PRESS 100
Perforation Data:
Interval Top:6386 ft.# Of Holes:148
Interval Bottom:6490 ft.Hole Size:0.43 in.

Formation DKTA                     Formation Classification:  OW                     Status:  AB - 11/9/1987                 Interval Top: 6065 ft.    Interval Bottom: 6176 ft.

 Completed Information for Formation DAKOTA
1st Production Date:4/1/1968Choke Size: 
Formation Name:DAKOTACommingled:
Production Method:
Open Hole Completion:
Tubing Size:Tubing Setting Depth:
Tubing Packer Depth:Tubing Multiple Packer:
Open Hole Top:Open Hole Bottom:
Initial Test Data:
Test Date:4/9/1968Test Method:PUMPING
Hours Tested:72Gas Type:
Gas Disposal:
Test TypeMeasure
CALC_BBLS_H2O 163
CALC_BBLS_OIL 1326
GRAVITY_OIL 38.3
Perforation Data:
Interval Top:6065 ft.# Of Holes:
Interval Bottom:6176 ft.Hole Size:
Primary Well Designation:
None      i
            All DesignationsDate
Reported PluggedY08/05/2021
Out Of Service RepurposedN 
Out Of ServiceN 
Inactive ExceptionN 
Noticed InactiveN 
Defined InactiveN 
Low ProducingN 

BOE/MCFE/GOR Calculations
Production for Previous 12 Months
November 2024 - October 2025i
Total Oil Produced (Barrels)0
Total Gas Produced (MCF)0
GOR
GOR Determination 
Average BOE per Day0.000
Average MCFE per Day0.000

 Federal Financial Assurance  i 

 Tribal Well  i No