Skip to Main Content

COGIS

Facility Detail

COGIS - WELL SCOUT CARD

Click image to view related facilities. Related  Click image to view inspection information. InspClick image to view MIT information. MITClick image to access interactive map at well/facility location. GISClick image to view imaged documents for this well/facility. DocClick image to view imaged documents for this well/facility. COAClick image to view wellbore completion diagram. WellboreClick image to search for orders within this facility's section. OrdersClick image to view bradenhead scoutcard data. Bradenhead
 Surface Location
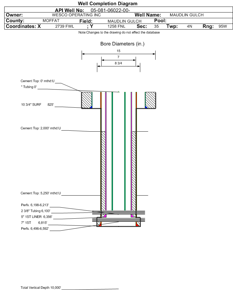
 API# 05-081-06022
Well Classification: OW Status: SI - 7/1/2024
Well Name/No:MAUDLIN GULCH #15
(Click Well Name for Production Data)
Click Here for Transporter Gatherer Info
Operator:WESCO OPERATING INC - 95520
(Click Operator Name for Company Detail Report)
Federal Or State Lease #:
Facility Status:SIStatus Date7/1/2024
FacilityID:222662LocationID:312864
County:MOFFAT #081Location:NWNE 35 4N95W 6
Field:MAUDLIN GULCH - #52950Elevation:7890 ft.
Basin:PICEANCE BASIN  
Planned Location:1258FNL  2739 FWLLat/Long: 40.276520 / -108.018460Lat/Long Source: Field Measured
As Drilled Location:Footages Not AvailableLat/Long: 40.276520 / -108.018460Lat/Long Source: Field Measured
 Wellbore And Formation Details -- select either a wellbore Or formation to expand.
 

Wellbore #00             Wellbore Classification: OW             Status: SI - 7/1/2024             Measured TD: 6815 ft.

 Wellbore Data for Original WellboreWellbore Classification: OW        SI - 7/1/2024
Wellbore Permit
Permit #: Expiration Date:6/5/2015
Proposed Depth/Form:6815 ft.
Surface Mineral Owner Same:Yes
Mineral Owner:FEDERALSurface Owner:FEDERAL
Unit:MAUDLIN GULCH Unit Number:COC47649X
Formation And Spacing:Code: DKTA , Formation: DAKOTA , Order: , Unit Acreage: , Drill Unit:
Formation And Spacing:Code: MRSN , Formation: MORRISON , Order: , Unit Acreage: , Drill Unit:
Formation And Spacing:Code: SNDC , Formation: SUNDANCE , Order: 0 , Unit Acreage: 0, Drill Unit:
Casing:String Type: SURF, Hole Size: 15 in., Size: 10.75 in., Top: 0 ft., Depth: 825 ft., Weight: 40.5 , Citings Type: PLANNED
Cement:Sacks: 360, Top: 0 ft., Bottom: 825 ft.
Casing:String Type: 1ST, Hole Size: 8.75 in., Size: 7 in., Top: 0 ft., Depth: 6815 ft., Weight: 20,23,26 , Citings Type: PLANNED
Cement:Sacks: 350, Top: 5250 ft., Bottom: 6815 ft.
Casing:String Type: 2ND, Hole Size: 7 in., Size: 5 in., Top: 0 ft., Depth: 6356 ft., Weight: 15 , Citings Type: PLANNED
Cement:Sacks: 400, Top: 0 ft., Bottom: 6356 ft.

Wellbore Completed
Completion Date:7/10/2000
Spud Date:7/25/1967Spud Date Is:ACTUAL
Measured TD:6815 ft.Measured PB depth:6630 ft.
True Vertical TD:True Vertical PB depth:
Log Types:
Casing:String Type: SURF, Hole Size: , Size: 10.75 in., Top: 0 ft., Depth: 825 ft., Weight: 40.5 , Citings Type: ACTUAL
Cement:Sacks: 360, Top: , Bottom: 825 ft., Determination Method: VISU
Casing:String Type: 1ST, Hole Size: 8.75 in., Size: , Top: 0 ft., Depth: 6815 ft., Weight: 20,23,26 , Citings Type: ACTUAL
Cement:Sacks: 300, Top: 5250 ft., Bottom: 6815 ft., Determination Method: CALC
Casing:String Type: 1ST LINER, Hole Size: , Size: , Top: 0 ft., Depth: 6356 ft., Weight: 15 , Citings Type: ACTUAL
Cement:Sacks: 450, Top: , Bottom: 6356 ft., Determination Method: VISU
Casing:String Type: 2ND LINER, Hole Size: , Size: 3.5 in., Top: 6649 ft., Depth: 6809 ft., Weight: , Citings Type: ACTUAL
Cement:Sacks: , Top: , Bottom: , Determination Method:
FormationInterval TopLog BottomCoredDSTs
FRONTIER5806 ft.NN
MOWRY6087 ft.NN
DAKOTA6160 ft.NN
MORRISON6305 ft.NN
SUNDANCE6795 ft.NN

Formation SNDC                     Formation Classification:  OW                     Status:  AB - 3/28/2025                 Interval Top: 6795 ft.    Interval Bottom: 6804 ft.

 Completed Information for Formation SUNDANCE
1st Production Date:9/6/1967Choke Size: 
Formation Name:SUNDANCECommingled:
Production Method:
Open Hole Completion:
Tubing Size:Tubing Setting Depth:
Tubing Packer Depth:Tubing Multiple Packer:
Open Hole Top:Open Hole Bottom:
No Initial Test Data was found for formation SNDC.
Perforation Data:
Interval Top:6795 ft.# Of Holes:18
Interval Bottom:6804 ft.Hole Size:

Formation MRSN                     Formation Classification:  OW                     Status:  AB - 3/28/2025                 Interval Top: 6496 ft.    Interval Bottom: 6592 ft.

 Completed Information for Formation MORRISON
1st Production Date:6/1/1996Choke Size: 
Formation Name:MORRISONCommingled:
Production Method:
Open Hole Completion:No
Formation Treatment
Treatment Date:6/1/1996
Treatment Summary:Acidized with 2500 gallons of 15% HCL
Tubing Size:Tubing Setting Depth:
Tubing Packer Depth:Tubing Multiple Packer:
Open Hole Top:Open Hole Bottom:
Initial Test Data:
Test Date:N/ATest Method:
Hours Tested:Gas Type:
Gas Disposal:
Test TypeMeasure
BBLS_H2O 1190
BBLS_OIL 30
CALC_BBLS_H2O 1190
CALC_BBLS_OIL 30
CASING_PRESS 40
GRAVITY_OIL 35
TUBING_PRESS 150
Perforation Data:
Interval Top:6496 ft.# Of Holes:42
Interval Bottom:6592 ft.Hole Size:0.41 in.

Formation DKTA                     Formation Classification:  OW                     Status:  SI - 7/1/2024                  Interval Top: 6116 ft.    Interval Bottom: 6226 ft.

 Completed Information for Formation DAKOTA
1st Production Date:7/24/2013Choke Size: 
Formation Name:DAKOTACommingled:
Production Method:
Open Hole Completion:
Formation Treatment
Treatment Type:ACID JOB
Treatment Date:7/22/2013Treatment End Date:7/22/2013
Treatment Summary:ACIDIZED WITH 1000 GALLONS 15% HCL ACID.
Total fluid used in treatment (bbls):48Max pressure during treatment (psi):2200
Total gas used in treatment (mcf):Fluid density (lbs/gal):
Type Of gas:Number Of staged intervals:
Total acid used in treatment (bbls):24Min frac gradient (psi/ft):
Recycled water used in treatment (bbls):Total flowback volume recovered (bbls):48
Fresh water used in treatment (bbls):24Disposition method For flowback:DISPOSAL
Total proppant used (lbs):Green completions techniques utilized:Yes
Reason green techniques Not utilized: 
Tubing Size:2.375 in.Tubing Setting Depth:6100 ft.
Tubing Packer Depth:Tubing Multiple Packer:
Open Hole Top:Open Hole Bottom:
Initial Test Data:
Test Date:7/30/2013Test Method:
Hours Tested:24Gas Type:
Gas Disposal:
Test TypeMeasure
BBLS_H2O 1600
BBLS_OIL 20
CALC_BBLS_H2O 1600
CALC_BBLS_OIL 20
CASING_PRESS 100
GRAVITY_OIL 35
TUBING_PRESS 150
Perforation Data:
Interval Top:6116 ft.# Of Holes:60
Interval Bottom:6226 ft.Hole Size:0.41 in.
Primary Well Designation:
Reported Plugged      i
            All DesignationsDate
Reported PluggedY07/11/2025
Out Of Service RepurposedN 
Out Of ServiceN 
Inactive ExceptionN 
Noticed InactiveN 
Defined Inactive (SI )YDefined Inactive
06/30/2024
Low ProducingYProduction Period
09/2024 - 08/2025

BOE/MCFE/GOR Calculations
Production for Previous 12 Months
September 2024 - August 2025i
Total Oil Produced (Barrels)0
Total Gas Produced (MCF)0
GOR
GOR Determination 
Average BOE per Day0.000
Average MCFE per Day0.000

 Federal Financial Assurance  i 

 Tribal Well  i No