Skip to Main Content

COGIS

Facility Detail

COGIS - WELL SCOUT CARD

Click image to view related facilities. Related  Click image to view inspection information. InspClick image to view MIT information. MITClick image to access interactive map at well/facility location. GISClick image to view imaged documents for this well/facility. DocClick image to view imaged documents for this well/facility. COAClick image to view wellbore completion diagram. WellboreClick image to search for orders within this facility's section. OrdersClick image to view bradenhead scoutcard data. Bradenhead
 Surface Location
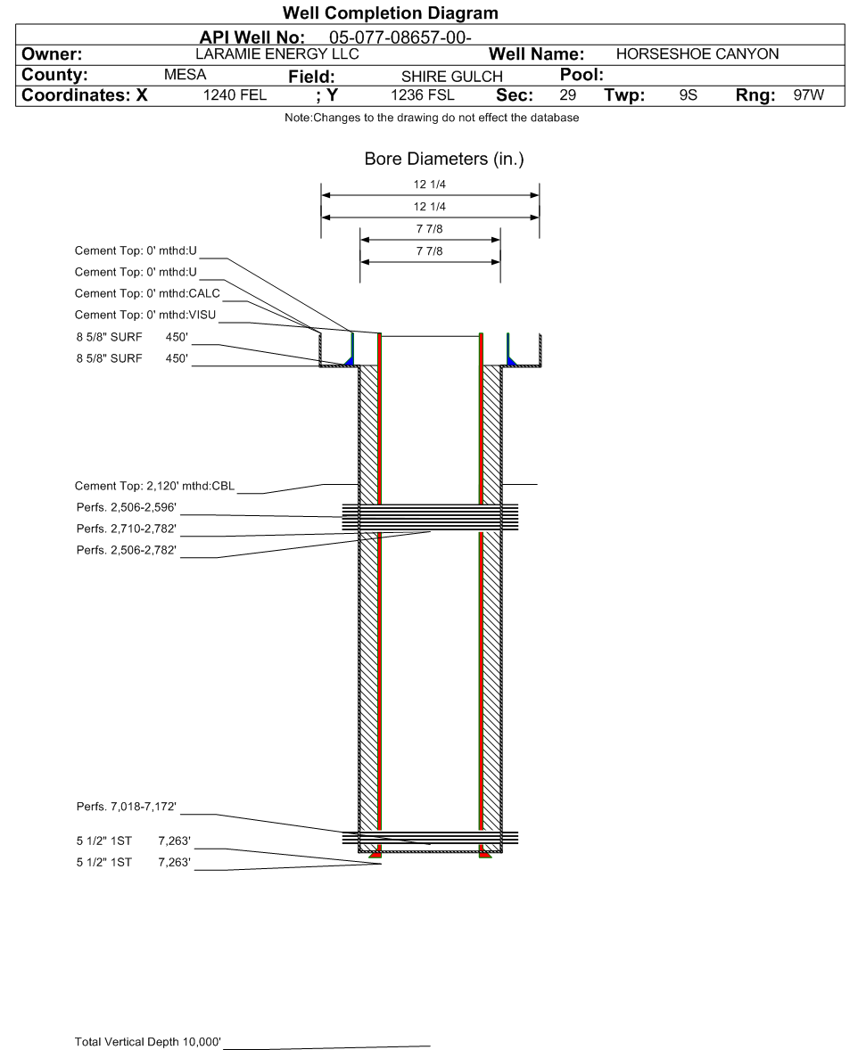
 API# 05-077-08657
Well Classification: GW Status: PA - 6/25/2020
Well Name/No:HORSESHOE CANYON #2-29
(Click Well Name for Production Data)
Click Here for Transporter Gatherer Info
Operator:LARAMIE ENERGY LLC - 10433
(Click Operator Name for Company Detail Report)
Federal Or State Lease #:
Facility Status:PAStatus Date6/25/2020
FacilityID:222055LocationID:312626
County:MESA #077Location:SESE 29 9S97W 6
Field:SHIRE GULCH - #77450Elevation:5518 ft.
Basin:PICEANCE BASIN  
Planned Location:1236FSL  1240 FELLat/Long: 39.240851 / -108.237128Lat/Long Source: Calculated From Footages
As Drilled Location:Footages Not AvailableLat/Long: 39.240575 / -108.236917Lat/Long Source: Field Measured
 Wellbore And Formation Details -- select either a wellbore Or formation to expand.
 

Wellbore #00             Wellbore Classification: GW             Status: PA - 6/25/2020             Measured TD: 7274 ft.    Vertical TD: 0 ft.

 Wellbore Data for Original WellboreWellbore Classification: GW        PA - 6/25/2020
Wellbore Permit
Permit #:921428 Expiration Date:2/18/1993
Proposed Depth/Form:
Surface Mineral Owner Same:Not available
Mineral Owner:FEDERALSurface Owner:Not available
Unit: Unit Number:C-17356
Formation And Spacing:Code: DK-CM , Formation: DAKOTA-CEDAR MOUNTAIN , Order: 0 , Unit Acreage: 640, Drill Unit: ALL

Wellbore Completed
Completion Date:2/26/1993
Measured TD:7274 ft.Measured PB depth:7233 ft.
True Vertical TD:0 ft.True Vertical PB depth:
Casing:String Type: CONDUCTOR, Hole Size: , Size: , Top: , Depth: 40 ft., Weight: .25 wall , Citings Type: ACTUAL
Cement:Sacks: 100, Top: 0 ft., Bottom: 40 ft., Determination Method: VISU
Casing:String Type: SURF, Hole Size: 12.25 in., Size: 8.625 in., Top: , Depth: 450 ft., Weight: 24 , Citings Type: ACTUAL
Cement:Sacks: 325, Top: 0 ft., Bottom: 450 ft., Determination Method: CALC
Casing:String Type: 1ST, Hole Size: 7.875 in., Size: 5.5 in., Top: , Depth: 7263 ft., Weight: 15.5 , Citings Type: ACTUAL
Cement:Sacks: 480, Top: 2120 ft., Bottom: 7263 ft., Determination Method: CBL
FormationInterval TopLog BottomCoredDSTs
CAMEO1965 ft.
ROLLINS2280 ft.
COZZETTE2498 ft.
CORCORAN2703 ft.
SEGO2864 ft.
MANCOS2996 ft.
MANCOS B5406 ft.
FRONTIER6797 ft.
DAKOTA6956 ft.
CEDAR MOUNTAIN7127 ft.
MORRISON7174 ft.

Formation DKTA                     Formation Classification:  GW                     Status:  AB - 6/25/2020                 Interval Top: 7018 ft.    Interval Bottom: 7172 ft.

 Completed Information for Formation DAKOTA
1st Production Date:2/2/1993Choke Size:0.000 in.
Formation Name:DAKOTACommingled:
Production Method:
Open Hole Completion:
Tubing Size:Tubing Setting Depth:
Tubing Packer Depth:Tubing Multiple Packer:
Open Hole Top:Open Hole Bottom:
Initial Test Data:
Test Date:2/15/1993Test Method:FLOWING
Hours Tested:12Gas Type:
Gas Disposal:FLARED
Test TypeMeasure
CALC_MCF_GAS 1404
CASING_PRESS 430
MCF_GAS 702
Perforation Data:
Interval Top:7018 ft.# Of Holes:19
Interval Bottom:7172 ft.Hole Size:0.38 in.

Formation CRCRN                   Formation Classification:  GW                   Status:  AB - 6/25/2020                 Interval Top: 2710 ft.    Interval Bottom: 2782 ft.

 Completed Information for Formation CORCORAN
1st Production Date:2/20/1993Choke Size: 
Formation Name:CORCORANCommingled:
Production Method:
Open Hole Completion:
Tubing Size:Tubing Setting Depth:
Tubing Packer Depth:Tubing Multiple Packer:
Open Hole Top:Open Hole Bottom:
No Initial Test Data was found for formation CRCRN.
Perforation Data:
Interval Top:2710 ft.# Of Holes:32
Interval Bottom:2782 ft.Hole Size:0.38 in.

Formation COZZ                     Formation Classification:  GW                     Status:  AB - 6/25/2020                 Interval Top: 2506 ft.    Interval Bottom: 2596 ft.

 Completed Information for Formation COZZETTE
1st Production Date:2/20/1993Choke Size: 
Formation Name:COZZETTECommingled:
Production Method:
Open Hole Completion:
Tubing Size:Tubing Setting Depth:
Tubing Packer Depth:Tubing Multiple Packer:
Open Hole Top:Open Hole Bottom:
No Initial Test Data was found for formation COZZ.
Perforation Data:
Interval Top:2506 ft.# Of Holes:27
Interval Bottom:2596 ft.Hole Size:0.38 in.

Formation CZ-CR                   Formation Classification:  GW                   Status:  CM - 3/1/1993                  Interval Top: 2506 ft.    Interval Bottom: 2782 ft.

 Completed Information for Formation COZZETTE-CORCORAN
1st Production Date:2/20/1993Choke Size: 
Formation Name:COZZETTE-CORCORANCommingled:
Production Method:
Open Hole Completion:
Tubing Size:Tubing Setting Depth:
Tubing Packer Depth:Tubing Multiple Packer:
Open Hole Top:Open Hole Bottom:
Initial Test Data:
Test Date:3/1/1993Test Method:FLOWING
Hours Tested:5.75Gas Type:
Gas Disposal:FLARED
Test TypeMeasure
CALC_MCF_GAS 1051
CASING_PRESS 1490
MCF_GAS 252
TUBING_PRESS 350
Perforation Data:
Interval Top:2506 ft.# Of Holes:59
Interval Bottom:2782 ft.Hole Size:0.38 in.
Primary Well Designation:
None      i
            All DesignationsDate
Reported PluggedY06/25/2020
Out Of Service RepurposedN 
Out Of ServiceN 
Inactive ExceptionN 
Noticed InactiveN 
Defined InactiveN 
Low ProducingN 

BOE/MCFE/GOR Calculations
Production for Previous 12 Months
October 2024 - September 2025i
Total Oil Produced (Barrels)0
Total Gas Produced (MCF)0
GOR
GOR Determination 
Average BOE per Day0.000
Average MCFE per Day0.000

 Federal Financial Assurance  i 

 Tribal Well  i No