Skip to Main Content

COGIS

Facility Detail

COGIS - WELL SCOUT CARD

Click image to view related facilities. Related  Click image to view inspection information. InspClick image to view MIT information. MITClick image to access interactive map at well/facility location. GISClick image to view imaged documents for this well/facility. DocClick image to view imaged documents for this well/facility. COAClick image to view wellbore completion diagram. WellboreClick image to search for orders within this facility's section. OrdersClick image to view bradenhead scoutcard data. Bradenhead
 Surface Location
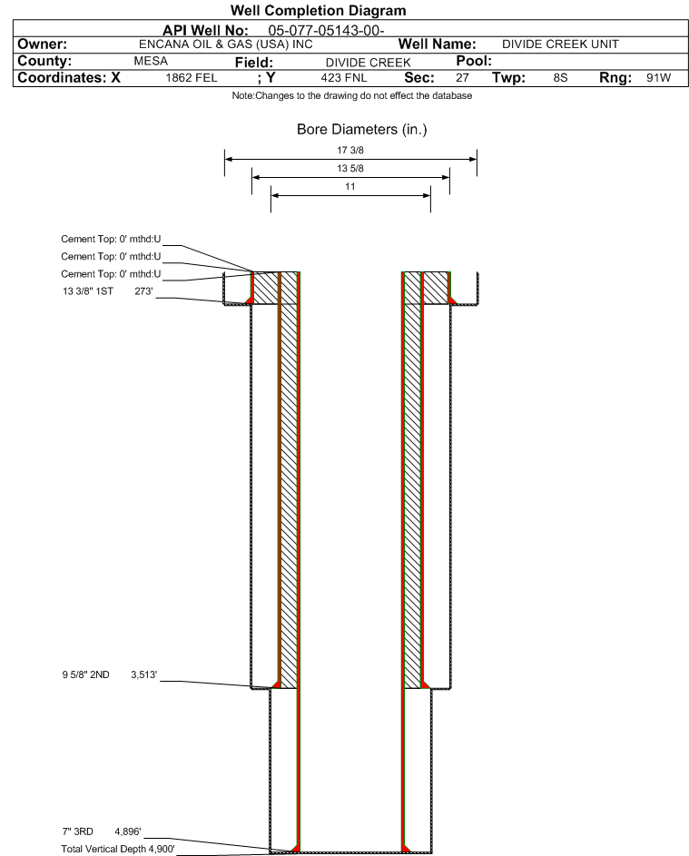
 API# 05-077-05143
Well Classification: GW Status: SI - 11/1/2025
Well Name/No:DIVIDE CREEK UNIT #10
(Click Well Name for Production Data)
Click Here for Transporter Gatherer Info
Operator:QB ENERGY OPERATING LLC - 10844
(Click Operator Name for Company Detail Report)
Federal Or State Lease #:35625
Facility Status:SIStatus Date11/1/2025
FacilityID:221348LocationID:312372
County:MESA #077Location:NWNE 27 8S91W 6
Field:DIVIDE CREEK - #16900Elevation:9298 ft.
Basin:PICEANCE BASIN  
Planned Location:423FNL  1862 FELLat/Long: 39.337334 / -107.536738Lat/Long Source: Calculated From Footages
As Drilled Location:Footages Not AvailableLat/Long: 39.337390 / -107.536830Lat/Long Source: Field Measured
 Wellbore And Formation Details -- select either a wellbore Or formation to expand.
 

Wellbore #00             Wellbore Classification: GW             Status: SI - 11/1/2025             Measured TD: 4900 ft.    Vertical TD: 4900 ft.

 Wellbore Data for Original WellboreWellbore Classification: GW        SI - 11/1/2025
Wellbore Permit
Permit #:590904 Expiration Date:1/4/1960
Proposed Depth/Form:
Surface Mineral Owner Same:Not available
Mineral Owner:FEDERALSurface Owner:Not available
Unit: Unit Number:C-04158
Formation And Spacing:Code: MVRD , Formation: MESAVERDE , Order: 0 , Unit Acreage: 0, Drill Unit:

Wellbore Completed
Completion Date:4/16/1960
Measured TD:4900 ft.Measured PB depth:4500 ft.
True Vertical TD:4900 ft.True Vertical PB depth:
Casing:String Type: 1ST, Hole Size: , Size: 13.375 in., Top: 0 ft., Depth: 273 ft., Weight: , Citings Type: HISTORICAL
Cement:Sacks: 0, Top: 0 ft., Bottom: , Determination Method:
Casing:String Type: 2ND, Hole Size: , Size: 9.625 in., Top: 0 ft., Depth: 3513 ft., Weight: , Citings Type: HISTORICAL
Cement:Sacks: 0, Top: 0 ft., Bottom: , Determination Method:
Casing:String Type: 3RD, Hole Size: , Size: 7 in., Top: 0 ft., Depth: 4896 ft., Weight: , Citings Type: HISTORICAL
Cement:Sacks: 0, Top: 0 ft., Bottom: , Determination Method:
FormationInterval TopLog BottomCoredDSTs
MESAVERDE0 ft.

Formation MVRD                     Formation Classification:  GW                     Status:  SI - 11/1/2025

 Completed Information for Formation MESAVERDE
1st Production Date:N/AChoke Size:10,000.000 in.
Formation Name:MESAVERDECommingled:
Production Method:
Open Hole Completion:
Tubing Size:Tubing Setting Depth:
Tubing Packer Depth:Tubing Multiple Packer:
Open Hole Top:Open Hole Bottom:
No Initial Test Data was found for formation MVRD.
No Perforation Data was found for formation MVRD.
Primary Well Designation:
None      i
            All DesignationsDate
Reported PluggedN 
Out Of Service RepurposedN 
Out Of ServiceN 
Inactive ExceptionN 
Noticed InactiveN 
Defined InactiveN 
Low ProducingN 

BOE/MCFE/GOR Calculations
Production for Previous 12 Months
October 2024 - September 2025i
Total Oil Produced (Barrels)12
Total Gas Produced (MCF)41094
GOR3424500
GOR DeterminationMCFE
Average BOE per Day19.443
Average MCFE per Day112.788

 Federal Financial Assurance  i Y

 Tribal Well  i No