Skip to Main Content

COGIS

Facility Detail

COGIS - WELL SCOUT CARD

Click image to view related facilities. Related  Click image to view inspection information. InspClick image to view MIT information. MITClick image to access interactive map at well/facility location. GISClick image to view imaged documents for this well/facility. DocClick image to view imaged documents for this well/facility. COAClick image to view wellbore completion diagram. WellboreClick image to search for orders within this facility's section. OrdersClick image to view bradenhead scoutcard data. Bradenhead
 Surface Location
 API# 05-071-09124
Well Classification: CBM Status: SI - 10/1/2016
Well Name/No:APACHE CANYON #6-4V
(Click Well Name for Production Data)
Click Here for Transporter Gatherer Info
Operator:OGRIS OPERATING LLC - 10758
(Click Operator Name for Company Detail Report)
Federal Or State Lease #:
Facility Status:SIStatus Date10/1/2016
FacilityID:288567LocationID:333483
County:LAS ANIMAS #071Location:NWNW 6 34S67W 6
Field:PURGATOIRE RIVER - #70830Elevation:8217 ft.
Basin:RATON BASIN  
Planned Location:374FNL  647 FWLLat/Long: 37.119490 / -104.935500Lat/Long Source: Field Measured
As Drilled Location:Footages Not AvailableLat/Long: 37.119424 / -104.935541Lat/Long Source: Field Measured
 Wellbore And Formation Details -- select either a wellbore Or formation to expand.
 

Wellbore #00             Wellbore Classification: CBM             Status: SI - 10/1/2016             Measured TD: 2675 ft.

 Wellbore Data for Original WellboreWellbore Classification: CBM        SI - 10/1/2016
Wellbore Permit
Permit #:20065938 Expiration Date:12/21/2007
Proposed Depth/Form:2600 ft.
Surface Mineral Owner Same:No
Mineral Owner:FEESurface Owner:STATE
Unit: Unit Number: 
Formation And Spacing:Code: VRMJ , Formation: VERMEJO COAL , Order: , Unit Acreage: , Drill Unit:
Casing:String Type: STAGE TOOL, Hole Size: , Size: , Top: , Depth: 1882 ft., Weight: , Citings Type: PLANNED
Cement:Sacks: 330, Top: 0 ft., Bottom: 1882 ft.

Wellbore Completed
Completion Date:6/28/2007
Spud Date:6/24/2007Spud Date Is:ACTUAL
Measured TD:2675 ft.Measured PB depth:2594 ft.
True Vertical TD:True Vertical PB depth:
Log Types:DUAL INDUCTION, COMP DENSITY NEUTRON W/GR & CALIPER
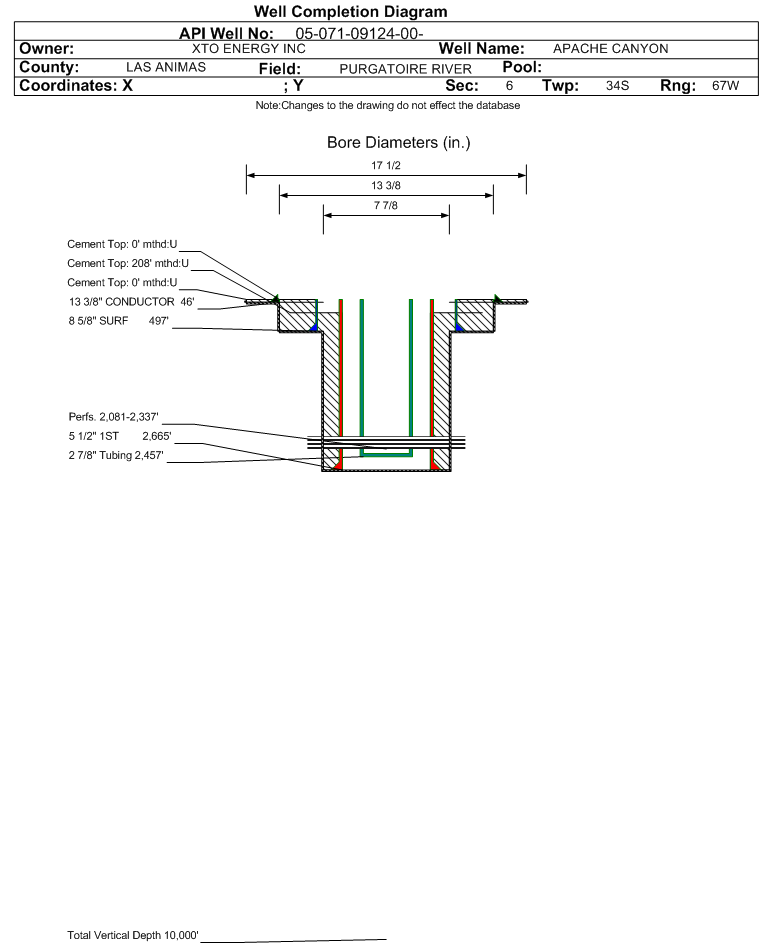
Casing:String Type: CONDUCTOR, Hole Size: 17.5 in., Size: 13.375 in., Top: 0 ft., Depth: 46 ft., Weight: , Citings Type: ACTUAL
Cement:Sacks: 76, Top: 0 ft., Bottom: 46 ft., Determination Method: CALC
Casing:String Type: SURF, Hole Size: 13.375 in., Size: 8.625 in., Top: 0 ft., Depth: 497 ft., Weight: , Citings Type: ACTUAL
Cement:Sacks: 213, Top: 0 ft., Bottom: 497 ft., Determination Method: CALC
Casing:String Type: 1ST, Hole Size: 7.875 in., Size: 5.5 in., Top: 0 ft., Depth: 2665 ft., Weight: , Citings Type: ACTUAL
Cement:Sacks: 385, Top: 208 ft., Bottom: 2665 ft., Determination Method: CBL
FormationInterval TopLog BottomCoredDSTs
RATON COAL0 ft.1914 ft.NN
RATON-VERMEJO COALS1914 ft.2018 ft.NN
VERMEJO COAL2018 ft.2377 ft.NN
TRINIDAD2377 ft.2665 ft.NN

Formation VRMJ                     Formation Classification:  GW                     Status:  SI - 10/1/2016                 Interval Top: 2081 ft.    Interval Bottom: 2337 ft.

 Completed Information for Formation VERMEJO COAL
1st Production Date:10/10/2007Choke Size: 
Formation Name:VERMEJO COALCommingled:Yes
Production Method:
Open Hole Completion:No
Formation Treatment
Treatment Date:7/24/2007
Treatment Summary:ACIDIZED W/1000 GALS 15% HCI ACID. FRAC'D W/49,970 GALS 20# DELTA 140# WITH SANDWEDGE OS CARRYING 7400# 16/30 BRADY SAND AND 130,420# 12/20 ARIZONA SAND.
Tubing Size:2.875 in.Tubing Setting Depth:2457 ft.
Tubing Packer Depth:Tubing Multiple Packer:
Open Hole Top:Open Hole Bottom:
Initial Test Data:
Test Date:10/13/2007Test Method:PUMPING
Hours Tested:24Gas Type:COAL GAS
Gas Disposal:SOLD
Test TypeMeasure
BBLS_H2O 99
BTU_GAS 835
CALC_BBLS_H2O 99
CALC_MCF_GAS 33
CASING_PRESS 14
GRAVITY_OIL 1
MCF_GAS 33
TUBING_PRESS 3
Perforation Data:
Interval Top:2081 ft.# Of Holes:28
Interval Bottom:2337 ft.Hole Size:0.45 in.
Primary Well Designation:
Out Of Service      i
            All DesignationsDate
Reported PluggedN 
Out Of Service RepurposedN 
Out Of ServiceYPlugging Due Date
12/31/2028
Inactive ExceptionN 
Noticed InactiveN 
Defined Inactive (SI )YDefined Inactive
09/30/2016
Low ProducingYProduction Period
10/2024 - 09/2025

BOE/MCFE/GOR Calculations
Production for Previous 12 Months
October 2024 - September 2025i
Total Oil Produced (Barrels)0
Total Gas Produced (MCF)0
GOR
GOR Determination 
Average BOE per Day0.000
Average MCFE per Day0.000

 Federal Financial Assurance  i 

 Tribal Well  i No