Skip to Main Content

COGIS

Facility Detail

COGIS - WELL SCOUT CARD

Click image to view related facilities. Related  Click image to view inspection information. InspClick image to view MIT information. MITClick image to access interactive map at well/facility location. GISClick image to view imaged documents for this well/facility. DocClick image to view imaged documents for this well/facility. COAClick image to view wellbore completion diagram. WellboreClick image to search for orders within this facility's section. OrdersClick image to view bradenhead scoutcard data. Bradenhead
 Surface Location
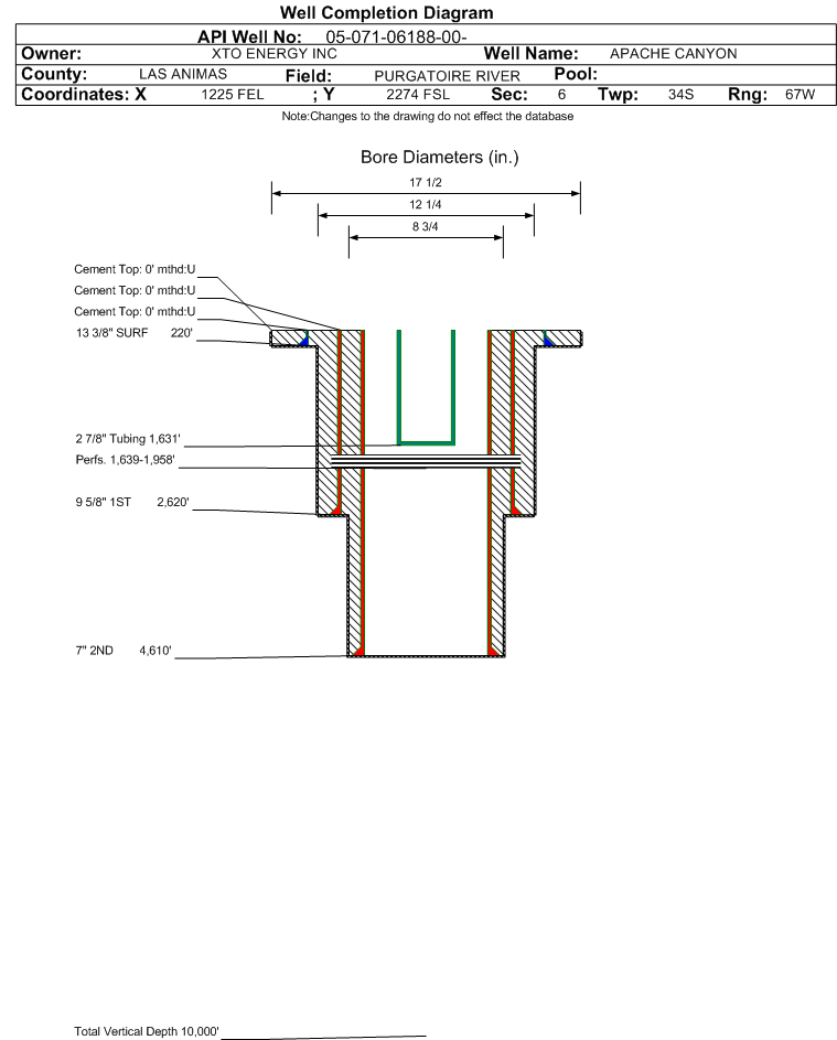
 API# 05-071-06188
Well Classification: CBM Status: PA - 10/1/2014
Well Name/No:APACHE CANYON #6-9
(Click Well Name for Production Data)
Click Here for Transporter Gatherer Info
Operator:XTO ENERGY INC - 100264
(Click Operator Name for Company Detail Report)
Federal Or State Lease #:
Facility Status:PAStatus Date10/1/2014
FacilityID:217411LocationID:312120
County:LAS ANIMAS #071Location:NESE 6 34S67W 6
Field:PURGATOIRE RIVER - #70830Elevation:7661 ft.
Basin:RATON BASIN  
Planned Location:2257FSL  1224 FELLat/Long: 37.112211 / -104.924508Lat/Long Source: Field Measured
As Drilled Location:Footages Not AvailableLat/Long: 37.112211 / -104.924508Lat/Long Source: Field Measured
 Wellbore And Formation Details -- select either a wellbore Or formation to expand.
 

Wellbore #00             Wellbore Classification: CBM             Status: AB - 10/1/2014             Measured TD: 6005 ft.

 Wellbore Data for Original WellboreWellbore Classification: CBM        AB - 10/1/2014
Wellbore Permit
Permit #:20084900 Expiration Date:7/24/2009
Proposed Depth/Form:7611 ft.
Surface Mineral Owner Same:No
Mineral Owner:FEESurface Owner:STATE
Unit: Unit Number: 
Formation And Spacing:Code: GRNHN , Formation: GREENHORN , Order: , Unit Acreage: 640, Drill Unit: ALL
Formation And Spacing:Code: NBRR , Formation: NIOBRARA , Order: , Unit Acreage: , Drill Unit:
Casing:String Type: SURF, Hole Size: 17.5 in., Size: 13.375 in., Top: , Depth: 220 ft., Weight: 48 , Citings Type: PLANNED
Cement:Sacks: 250, Top: 0 ft., Bottom: 220 ft.
Casing:String Type: 1ST, Hole Size: 12.25 in., Size: 9.625 in., Top: , Depth: 2620 ft., Weight: 36 , Citings Type: PLANNED
Cement:Sacks: 1040, Top: 0 ft., Bottom: 2620 ft.
Casing:String Type: 2ND, Hole Size: 8.5 in., Size: 7 in., Top: , Depth: 5311 ft., Weight: 23 , Citings Type: PLANNED
Cement:Sacks: 363, Top: 0 ft., Bottom: 5311 ft.
Casing:String Type: 3RD, Hole Size: 6.125 in., Size: 4.5 in., Top: , Depth: 7611 ft., Weight: 11.6 , Citings Type: PLANNED
Cement:Sacks: , Top: , Bottom:

Wellbore Completed
Completion Date:6/28/1994
Spud Date:12/3/1993Spud Date Is:ACTUAL
Measured TD:6005 ft.Measured PB depth:
True Vertical TD:True Vertical PB depth:
Log Types:GR, MUD
Casing:String Type: SURF, Hole Size: 17.5 in., Size: 13.375 in., Top: 0 ft., Depth: 220 ft., Weight: 48 , Citings Type: ACTUAL
Cement:Sacks: 250, Top: 0 ft., Bottom: , Determination Method:
Casing:String Type: 1ST, Hole Size: 12.25 in., Size: 9.625 in., Top: 0 ft., Depth: 2620 ft., Weight: 26 , Citings Type: ACTUAL
Cement:Sacks: 1040, Top: 0 ft., Bottom: , Determination Method:
Casing:String Type: 2ND, Hole Size: 8.75 in., Size: 7 in., Top: 0 ft., Depth: 4610 ft., Weight: 23 , Citings Type: ACTUAL
Cement:Sacks: 100, Top: , Bottom: , Determination Method:
FormationInterval TopLog BottomCoredDSTs
VERMEJO COAL1588 ft.NN
TRINIDAD1962 ft.NN
PIERRE2088 ft.NN
FORT HAYS5573 ft.NN
GREENHORN5795 ft.NN

Formation VRMJ                     Formation Classification:  GW                     Status:  AB - 10/1/2014                 Interval Top: 1639 ft.    Interval Bottom: 1958 ft.

 Completed Information for Formation VERMEJO COAL
1st Production Date:N/AChoke Size: 
Formation Name:VERMEJO COALCommingled:
Production Method:
Open Hole Completion:
Formation Treatment
Treatment Date:6/28/1994
Treatment Summary:1639' - 1958' FRAC W/68,000 GALS 50 Q CO2 FOAM & 215,000# 12/20 BRADY SAND / 2470' PUSH CIBP
Tubing Size:2.875 in.Tubing Setting Depth:1631 ft.
Tubing Packer Depth:Tubing Multiple Packer:
Open Hole Top:Open Hole Bottom:
No Initial Test Data was found for formation VRMJ.
Perforation Data:
Interval Top:1639 ft.# Of Holes:
Interval Bottom:1958 ft.Hole Size:

Sidetrack #01             Wellbore Classification: GW             Status: AB - 7/24/2008             Measured TD: 4874 ft.    Vertical TD: 4783 ft.

 Wellbore Data for Sidetrack #01Wellbore Classification: GW        AB - 7/24/2008
Wellbore PermitDIRECTIONAL
Permit #:20084900 Expiration Date:7/24/2009
Proposed Top PZ Location:Sec: Twp: Footage: 2294 FSL  1237 FEL
Bottom Hole Location:Sec:6 Twp: 34S 67W Footage: 298 FNL  2216 FEL
Proposed Depth/Form:7611 ft.
Surface Mineral Owner Same:No
Mineral Owner:FEESurface Owner:STATE
Unit: Unit Number: 
Formation And Spacing:Code: NBRR , Formation: NIOBRARA , Order: , Unit Acreage: , Drill Unit:
Casing:String Type: SURF, Hole Size: 17.5 in., Size: 13.375 in., Top: , Depth: 220 ft., Weight: 48 , Citings Type: PLANNED
Cement:Sacks: 250, Top: 0 ft., Bottom: 220 ft.
Casing:String Type: 1ST, Hole Size: 12.25 in., Size: 9.625 in., Top: , Depth: 2620 ft., Weight: 36 , Citings Type: PLANNED
Cement:Sacks: 1040, Top: 0 ft., Bottom: 2620 ft.
Casing:String Type: 2ND, Hole Size: 8.5 in., Size: 7 in., Top: , Depth: 5311 ft., Weight: 23 , Citings Type: PLANNED
Cement:Sacks: 363, Top: 0 ft., Bottom: 5311 ft.
Casing:String Type: 3RD, Hole Size: 6.125 in., Size: 4.5 in., Top: , Depth: 7611 ft., Weight: 11.6 , Citings Type: PLANNED
Cement:Sacks: , Top: , Bottom:

Wellbore Completed
Completion Date:8/20/2008
Spud Date:8/4/2008Spud Date Is:ACTUAL
Measured TD:4874 ft.Measured PB depth:3595 ft.
True Vertical TD:4783 ft.True Vertical PB depth:3591 ft.
Bottom Hole Location:Sec:6 Twp: 34S 67WFootage: 2621 FSL  1348 FEL
Log Types:GAMMA VIA MWD
Casing:String Type: CONDUCTOR, Hole Size: 17.5 in., Size: 13.375 in., Top: 0 ft., Depth: 220 ft., Weight: , Citings Type: ACTUAL
Cement:Sacks: 250, Top: 0 ft., Bottom: 220 ft., Determination Method:
Casing:String Type: SURF, Hole Size: 12.25 in., Size: 9.625 in., Top: 0 ft., Depth: 2620 ft., Weight: , Citings Type: ACTUAL
Cement:Sacks: 1040, Top: 0 ft., Bottom: 2620 ft., Determination Method:
  No formation data to display.

Sidetrack #02             Wellbore Classification: GW             Status: AB - 8/17/2010             Measured TD: 5150 ft.    Vertical TD: 4883 ft.

 Wellbore Data for Sidetrack #02Wellbore Classification: GW        AB - 8/17/2010
Wellbore PermitDIRECTIONAL
Permit #:Expiration Date:10/14/2012
Proposed Top PZ Location:Sec:06 Twp: 34S 67W Footage: 2294 FSL  1237 FEL
Bottom Hole Location:Sec:6 Twp: 34S 67W Footage: 298 FNL  2216 FEL
Proposed Depth/Form:7611 ft.
Surface Mineral Owner Same:No
Mineral Owner:FEESurface Owner:STATE
Unit: Unit Number: 
Formation And Spacing:Code: NBRR , Formation: NIOBRARA , Order: , Unit Acreage: , Drill Unit:
Casing:String Type: SURF, Hole Size: 17.5 in., Size: 13.375 in., Top: , Depth: 220 ft., Weight: 42 , Citings Type: PLANNED
Cement:Sacks: 250, Top: , Bottom: 220 ft.
Casing:String Type: 1ST, Hole Size: 12.25 in., Size: 9.625 in., Top: , Depth: 2620 ft., Weight: 36 , Citings Type: PLANNED
Cement:Sacks: 1040, Top: , Bottom: 2620 ft.
Casing:String Type: 2ND, Hole Size: 8.5 in., Size: 7 in., Top: , Depth: 5311 ft., Weight: 23 , Citings Type: PLANNED
Cement:Sacks: 363, Top: , Bottom: 5311 ft.
Casing:String Type: S.C. 2.1, Hole Size: , Size: , Top: , Depth: 3600 ft., Weight: , Citings Type: PLANNED
Cement:Sacks: , Top: , Bottom:
Casing:String Type: 3RD, Hole Size: 6.125 in., Size: 4.5 in., Top: , Depth: 7611 ft., Weight: 11.6 , Citings Type: PLANNED
Cement:Sacks: , Top: , Bottom:

Wellbore Completed
Completion Date:9/1/2008
Spud Date:8/21/2008Spud Date Is:ACTUAL
Measured TD:5150 ft.Measured PB depth:0 ft.
True Vertical TD:4883 ft.True Vertical PB depth:0 ft.
Bottom Hole Location:Sec:6 Twp: 34S 67WFootage: 2805 FNL  1434 FEL
Log Types:N/A
Casing:String Type: CONDUCTOR, Hole Size: 17.5 in., Size: 13.375 in., Top: 0 ft., Depth: 220 ft., Weight: , Citings Type: ACTUAL
Cement:Sacks: 250, Top: 0 ft., Bottom: 220 ft., Determination Method:
Casing:String Type: SURF, Hole Size: 12.25 in., Size: 9.625 in., Top: 0 ft., Depth: 2620 ft., Weight: , Citings Type: ACTUAL
Cement:Sacks: 1040, Top: 0 ft., Bottom: 2620 ft., Determination Method:
Casing:String Type: 1ST, Hole Size: 12.25 in., Size: 9.625 in., Top: , Depth: 2620 ft., Weight: 36 , Citings Type: ACTUAL
Cement:Sacks: 1040, Top: , Bottom: 2620 ft., Determination Method:
  No formation data to display.
Primary Well Designation:
None      i
            All DesignationsDate
Reported PluggedY10/01/2014
Out Of Service RepurposedN 
Out Of ServiceN 
Inactive ExceptionN 
Noticed InactiveN 
Defined InactiveN 
Low ProducingN 

BOE/MCFE/GOR Calculations
Production for Previous 12 Months
October 2024 - September 2025i
Total Oil Produced (Barrels)0
Total Gas Produced (MCF)0
GOR
GOR Determination 
Average BOE per Day0.000
Average MCFE per Day0.000

 Federal Financial Assurance  i 

 Tribal Well  i No