Skip to Main Content

COGIS

Facility Detail

COGIS - WELL SCOUT CARD

Click image to view related facilities. Related  Click image to view inspection information. InspClick image to view MIT information. MITClick image to access interactive map at well/facility location. GISClick image to view imaged documents for this well/facility. DocClick image to view imaged documents for this well/facility. COAClick image to view wellbore completion diagram. WellboreClick image to search for orders within this facility's section. OrdersClick image to view bradenhead scoutcard data. Bradenhead
 Surface Location
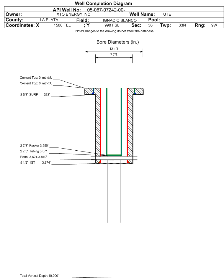
 API# 05-067-07242
Well Classification: CBM Status: PA - 9/29/2009
Well Name/No:UTE #18
(Click Well Name for Production Data)
Click Here for Transporter Gatherer Info
Operator:HILCORP ENERGY COMPANY - 10133
(Click Operator Name for Company Detail Report)
Federal Or State Lease #:14-20-151-57
Facility Status:PAStatus Date9/29/2009
FacilityID:215637LocationID:333597
County:LA PLATA #067Location:SWSE 36 33N9W N
Field:IGNACIO BLANCO - #38300Elevation:7269 ft.
Basin:SAN JUAN BASIN  
Planned Location:990FSL  1500 FELLat/Long: 37.055960 / -107.773125Lat/Long Source: Calculated From Footages
As Drilled Location:Footages Not AvailableLat/Long: 37.055950 / -107.772930Lat/Long Source: Field Measured
 Wellbore And Formation Details -- select either a wellbore Or formation to expand.
 

Wellbore #00             Wellbore Classification: CBM             Status: PA - 9/29/2009             Measured TD: 3974 ft.

 Wellbore Data for Original WellboreWellbore Classification: CBM        PA - 9/29/2009
Wellbore Permit
Permit #:19881144 Expiration Date:7/15/1989
Proposed Depth/Form:4000 ft.
Surface Mineral Owner Same:Yes
Mineral Owner:INDIANSurface Owner:INDIAN
Unit: Unit Number: 
Formation And Spacing:Code: FRLDC , Formation: FRUITLAND COAL , Order: 112-61 , Unit Acreage: 320, Drill Unit: E2

Wellbore Completed
Completion Date:8/5/1989
Spud Date:6/25/1989Spud Date Is:ACTUAL
Measured TD:3974 ft.Measured PB depth:3934 ft.
True Vertical TD:True Vertical PB depth:
Log Types:DUAL IND, MICROLOG, DENSITY, COAL LOG
Casing:String Type: SURF, Hole Size: 12.25 in., Size: 8.625 in., Top: 0 ft., Depth: 333 ft., Weight: 24 , Citings Type: ACTUAL
Cement:Sacks: 245, Top: 0 ft., Bottom: 333 ft., Determination Method:
Casing:String Type: 1ST, Hole Size: 7.875 in., Size: 5.5 in., Top: 0 ft., Depth: 3974 ft., Weight: 15.5 , Citings Type: ACTUAL
Cement:Sacks: 1100, Top: 0 ft., Bottom: 3974 ft., Determination Method:
FormationInterval TopLog BottomCoredDSTs
KIRTLAND2720 ft.
PICTURED CLIFFS3955 ft.

Formation FRLDC                   Formation Classification:  GW                   Status:  AB - 9/29/2009                 Interval Top: 3621 ft.    Interval Bottom: 3810 ft.

 Completed Information for Formation FRUITLAND COAL
1st Production Date:9/21/1995Choke Size:0.750 in.
Formation Name:FRUITLAND COALCommingled:
Production Method:FLOWING
Open Hole Completion:
Formation Treatment
Treatment Date:8/5/1989
Treatment Summary:SEE SCANNED DOCUMENT 00669548
Tubing Size:2.875 in.Tubing Setting Depth:3571 ft.
Tubing Packer Depth:3570 ft.Tubing Multiple Packer:
Open Hole Top:Open Hole Bottom:
No Initial Test Data was found for formation FRLDC.
Perforation Data:
Interval Top:3621 ft.# Of Holes:284
Interval Bottom:3810 ft.Hole Size:0.5 in.
Primary Well Designation:
None      i
            All DesignationsDate
Reported PluggedY09/29/2009
Out Of Service RepurposedN 
Out Of ServiceN 
Inactive ExceptionN 
Noticed InactiveN 
Defined InactiveN 
Low ProducingN 

BOE/MCFE/GOR Calculations
Production for Previous 12 Months
October 2024 - September 2025i
Total Oil Produced (Barrels)0
Total Gas Produced (MCF)0
GOR
GOR Determination 
Average BOE per Day0.000
Average MCFE per Day0.000

 Federal Financial Assurance  i 

 Tribal Well  i Yes