Skip to Main Content

COGIS

Facility Detail

COGIS - WELL SCOUT CARD

Click image to view related facilities. Related  Click image to view inspection information. InspClick image to view MIT information. MITClick image to access interactive map at well/facility location. GISClick image to view imaged documents for this well/facility. DocClick image to view imaged documents for this well/facility. COAClick image to view wellbore completion diagram. WellboreClick image to search for orders within this facility's section. OrdersClick image to view bradenhead scoutcard data. Bradenhead
 Surface Location
 API# 05-045-20488
Well Classification: GW Status: PR - 1/12/2012
Well Name/No:Williams #SG 531-27
(Click Well Name for Production Data)
Click Here for Transporter Gatherer Info
Operator:TEP ROCKY MOUNTAIN LLC - 96850
(Click Operator Name for Company Detail Report)
Federal Or State Lease #:
Facility Status:PRStatus Date1/12/2012
FacilityID:422054LocationID:334600
County:GARFIELD #045Location:NENE 27 7S96W 6
Field:GRAND VALLEY - #31290Elevation:5085 ft.
Basin:PICEANCE BASIN  
Planned Location:212FNL  1132 FELLat/Long: 39.415361 / -108.091044Lat/Long Source: Field Measured
As Drilled Location:Footages Not AvailableLat/Long: 39.415363 / -108.091046Lat/Long Source: Field Measured
 
FracFocus
Disclosure: Sidetrack #00
Start Date: 11/18/2011
End Date: 11/18/2011
Reported: 5/3/2012
Prior to rule 205A.b.(2)(A)
Days to report: 167
 Wellbore And Formation Details -- select either a wellbore Or formation to expand.
 

Wellbore #00             Wellbore Classification: GW             Status: PR - 1/12/2012             Measured TD: 5564 ft.    Vertical TD: 5134 ft.

 Wellbore Data for Original WellboreWellbore Classification: GW        PR - 1/12/2012
Wellbore PermitDIRECTIONAL
Permit #: Expiration Date:3/10/2013
Proposed Top PZ Location:Sec:27 Twp: 7S 96W Footage: 1121 FNL  2421 FEL
Bottom Hole Location:Sec:27 Twp: 7S 96W Footage: 1121 FNL  2421 FEL
Proposed Depth/Form:5543 ft.
Surface Mineral Owner Same:Yes
Mineral Owner:FEESurface Owner:FEE
Unit: Unit Number:
Formation And Spacing:Code: WMFK , Formation: WILLIAMS FORK , Order: 510-14 , Unit Acreage: 160, Drill Unit: NE/4
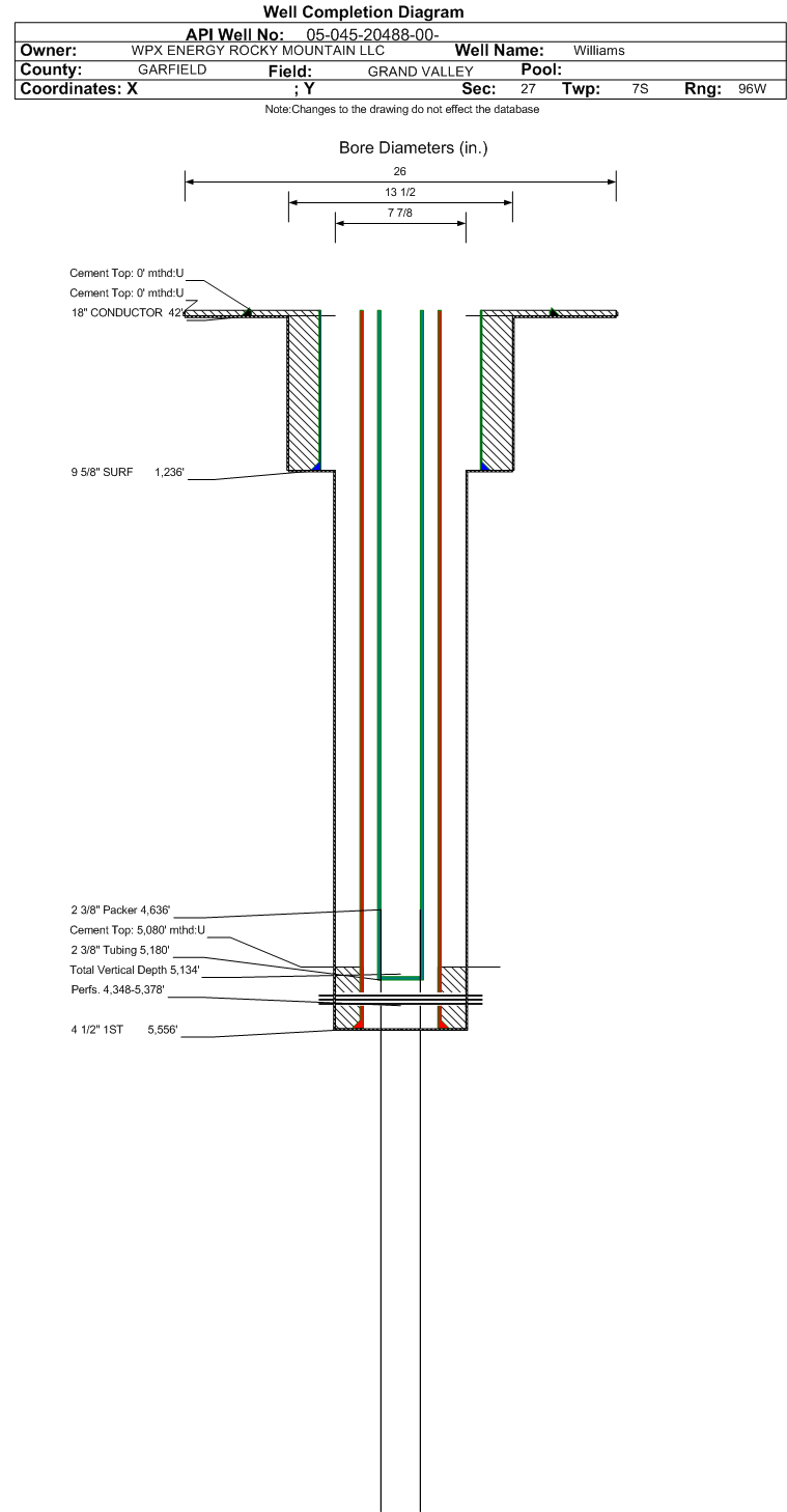
Casing:String Type: CONDUCTOR, Hole Size: 24 in., Size: 18 in., Top: 0 ft., Depth: 45 ft., Weight: 48# , Citings Type: PLANNED
Cement:Sacks: 25, Top: 0 ft., Bottom: 45 ft.
Casing:String Type: SURF, Hole Size: 13.5 in., Size: 9.625 in., Top: 0 ft., Depth: 1277 ft., Weight: 32.3# , Citings Type: PLANNED
Cement:Sacks: 446, Top: 0 ft., Bottom: 1277 ft.
Casing:String Type: 1ST, Hole Size: 7.875 in., Size: 4.5 in., Top: 0 ft., Depth: 5543 ft., Weight: 11.6# , Citings Type: PLANNED
Cement:Sacks: 515, Top: , Bottom: 5543 ft.

Wellbore Completed
Completion Date:10/21/2011
Spud Date:10/15/2011Spud Date Is:ACTUAL
Measured TD:5564 ft.Measured PB depth:5424 ft.
True Vertical TD:5134 ft.True Vertical PB depth:4994 ft.
Top PZ Location:Sec:27 Twp: 7s 96wFootage: 1135 FNL  2404 FEL
Bottom Hole Location:Sec:27 Twp: 7s 96wFootage: 1141 FNL  2423 FEL
Log Types:CBL, MUD, & RPM
Casing:String Type: CONDUCTOR, Hole Size: 26 in., Size: 18 in., Top: 0 ft., Depth: 42 ft., Weight: 48 , Citings Type: ACTUAL
Cement:Sacks: 16, Top: 0 ft., Bottom: 42 ft., Determination Method: VISU
Casing:String Type: SURF, Hole Size: 13.5 in., Size: 9.625 in., Top: 0 ft., Depth: 1236 ft., Weight: 32.3 , Citings Type: ACTUAL
Cement:Sacks: 320, Top: 0 ft., Bottom: 1236 ft., Determination Method: VISU
Casing:String Type: 1ST, Hole Size: 7.875 in., Size: 4.5 in., Top: 0 ft., Depth: 5556 ft., Weight: 11.6 , Citings Type: ACTUAL
Cement:Sacks: 980, Top: 5080 ft., Bottom: 5556 ft., Determination Method: CBL
Additional Cement:String Type: 1ST , Top: 3995 ft., Depth: 5012 ft., Bottom: 5080 ft., Sacks: 550, Method: SQUEEZE
Additional Cement:String Type: 1ST , Top: 3995 ft., Depth: 4875 ft., Bottom: 5080 ft., Sacks: 500, Method: SQUEEZE
FormationInterval TopLog BottomCoredDSTs
WASATCH688 ft.
MESAVERDE2587 ft.
CAMEO4931 ft.
ROLLINS5435 ft.

Formation WFCM                     Formation Classification:  GW                     Status:  PR - 1/12/2012                 Interval Top: 4348 ft.    Interval Bottom: 5378 ft.

 Completed Information for Formation WILLIAMS FORK - CAMEO
1st Production Date:11/30/2011Choke Size: 
Formation Name:WILLIAMS FORK - CAMEOCommingled:No
Production Method:
Open Hole Completion:No
Formation Treatment
Treatment Date:11/16/2011
Treatment Summary:666005# 30/50 Sand; 13615 BBL's Slickwater (summary).
Tubing Size:2.375 in.Tubing Setting Depth:5180 ft.
Tubing Packer Depth:4656 ft.Tubing Multiple Packer:
Open Hole Top:Open Hole Bottom:
Initial Test Data:
Test Date:1/12/2012Test Method:flowing
Hours Tested:24Gas Type:DRY
Gas Disposal:SOLD
Test TypeMeasure
BTU_GAS 1061
CALC_MCF_GAS 1069
CASING_PRESS 668
MCF_GAS 1069
TUBING_PRESS 527
Perforation Data:
Interval Top:4348 ft.# Of Holes:80
Interval Bottom:5378 ft.Hole Size:0.35 in.
Primary Well Designation:
None      i
            All DesignationsDate
Reported PluggedN 
Out Of Service RepurposedN 
Out Of ServiceN 
Inactive ExceptionN 
Noticed InactiveN 
Defined InactiveN 
Low ProducingN 

BOE/MCFE/GOR Calculations
Production for Previous 12 Months
November 2024 - October 2025i
Total Oil Produced (Barrels)20
Total Gas Produced (MCF)15535
GOR776750
GOR DeterminationMCFE
Average BOE per Day7.370
Average MCFE per Day42.777

 Federal Financial Assurance  i 

 Tribal Well  i No