Skip to Main Content

COGIS

Facility Detail

COGIS - WELL SCOUT CARD

Click image to view related facilities. Related  Click image to view inspection information. InspClick image to view MIT information. MITClick image to access interactive map at well/facility location. GISClick image to view imaged documents for this well/facility. DocClick image to view imaged documents for this well/facility. COAClick image to view wellbore completion diagram. WellboreClick image to search for orders within this facility's section. OrdersClick image to view bradenhead scoutcard data. Bradenhead
 Surface Location
 API# 05-045-17861
Well Classification: GW Status: PR - 12/30/2009
Well Name/No:N.PARACHUTE #MF10C-4 M04 696
(Click Well Name for Production Data)
Click Here for Transporter Gatherer Info
Operator:QB ENERGY OPERATING LLC - 10844
(Click Operator Name for Company Detail Report)
Federal Or State Lease #:
Facility Status:PRStatus Date12/30/2009
FacilityID:300235LocationID:335598
County:GARFIELD #045Location:NESW 4 6S96W 6
Field:GRAND VALLEY - #31290Elevation:5866 ft.
Basin:PICEANCE BASIN  
Planned Location:1828FSL  2345 FWLLat/Long: 39.551731 / -108.112458Lat/Long Source: Field Measured
As Drilled Location:Footages Not AvailableLat/Long: 39.551729 / -108.112464Lat/Long Source: Field Measured
 Wellbore And Formation Details -- select either a wellbore Or formation to expand.
 

Wellbore #00             Wellbore Classification: GW             Status: PR - 12/30/2009             Measured TD: 8738 ft.    Vertical TD: 8341 ft.

 Wellbore Data for Original WellboreWellbore Classification: GW        PR - 12/30/2009
Wellbore PermitDIRECTIONAL
Permit #:20087266 Expiration Date:12/14/2009
Proposed Top PZ Location:Sec:4 Twp: 6S 96W Footage: 3122 FNL  1838 FEL
Bottom Hole Location:Sec:4 Twp: 6S 96W Footage: 3122 FNL  1838 FEL
Proposed Depth/Form:10308 ft.
Surface Mineral Owner Same:Yes
Mineral Owner:FEESurface Owner:FEE
Unit: Unit Number: 
Formation And Spacing:Code: WMFK , Formation: WILLIAMS FORK , Order: 510-13 , Unit Acreage: , Drill Unit:

Wellbore Completed
Completion Date:7/26/2009
Spud Date:6/23/2009Spud Date Is:ACTUAL
Measured TD:8738 ft.Measured PB depth:8714 ft.
True Vertical TD:8341 ft.True Vertical PB depth:8317 ft.
Top PZ Location:Sec:4 Twp: 6S 96WFootage: 3122 FNL  1838 FEL
Bottom Hole Location:Sec:4 Twp: 6S 96WFootage: 3122 FNL  1838 FEL
Log Types:CBL, MUD, RST
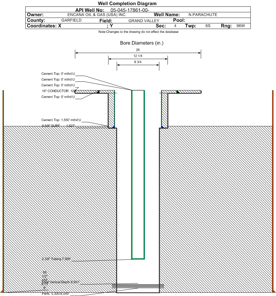
Casing:String Type: CONDUCTOR, Hole Size: 26 in., Size: 16 in., Top: 0 ft., Depth: 120 ft., Weight: , Citings Type: ACTUAL
Cement:Sacks: 230, Top: 0 ft., Bottom: 120 ft., Determination Method:
Casing:String Type: SURF, Hole Size: 12.25 in., Size: 9.625 in., Top: 0 ft., Depth: 1627 ft., Weight: , Citings Type: ACTUAL
Cement:Sacks: 369, Top: 0 ft., Bottom: 1642 ft., Determination Method:
Casing:String Type: 1ST, Hole Size: 8.75 in., Size: 55.5 in., Top: 0 ft., Depth: 8738 ft., Weight: , Citings Type: ACTUAL
Cement:Sacks: 1030, Top: 1550 ft., Bottom: 8738 ft., Determination Method: CBL
Casing:String Type: 3RD, Hole Size: , Size: , Top: 0 ft., Depth: , Weight: , Citings Type: ACTUAL
Cement:Sacks: , Top: , Bottom: , Determination Method:
Casing:String Type: 1ST LINER, Hole Size: , Size: , Top: 0 ft., Depth: , Weight: , Citings Type: ACTUAL
Cement:Sacks: , Top: , Bottom: , Determination Method:
FormationInterval TopLog BottomCoredDSTs
WILLIAMS FORK5124 ft.8628 ft.NN
ROLLINS8628 ft.8738 ft.NN

Formation WMFK                     Formation Classification:  GW                     Status:  PR - 12/30/2009                Interval Top: 5300 ft.    Interval Bottom: 8549 ft.

 Completed Information for Formation WILLIAMS FORK
1st Production Date:11/25/2009Choke Size:0.375 in.
Formation Name:WILLIAMS FORKCommingled:No
Production Method:
Open Hole Completion:No
Formation Treatment
Treatment Date:9/24/2009
Treatment Summary:STAGES 01/11 TREATED WITH A TOTAL OF 83442 BBLS OF SLICKWATER, 401000 LBS 20-40 SAND, 162000 LBS 30-50 SAND.
Tubing Size:2.375 in.Tubing Setting Depth:7308 ft.
Tubing Packer Depth:Tubing Multiple Packer:
Open Hole Top:Open Hole Bottom:
Initial Test Data:
Test Date:12/30/2009Test Method:FLOWING
Hours Tested:24Gas Type:DRY
Gas Disposal:SOLD
Test TypeMeasure
BTU_GAS 1170
CALC_MCF_GAS 1418
CASING_PRESS 1150
MCF_GAS 1418
TUBING_PRESS 573
Perforation Data:
Interval Top:5300 ft.# Of Holes:495
Interval Bottom:8549 ft.Hole Size:0.46 in.
Primary Well Designation:
None      i
            All DesignationsDate
Reported PluggedN 
Out Of Service RepurposedN 
Out Of ServiceN 
Inactive ExceptionN 
Noticed InactiveN 
Defined InactiveN 
Low ProducingN 

BOE/MCFE/GOR Calculations
Production for Previous 12 Months
October 2024 - September 2025i
Total Oil Produced (Barrels)75
Total Gas Produced (MCF)13459
GOR179453
GOR DeterminationMCFE
Average BOE per Day6.557
Average MCFE per Day38.024

 Federal Financial Assurance  i 

 Tribal Well  i No