Skip to Main Content

COGIS

Facility Detail

COGIS - WELL SCOUT CARD

Click image to view related facilities. Related  Click image to view inspection information. InspClick image to view MIT information. MITClick image to access interactive map at well/facility location. GISClick image to view imaged documents for this well/facility. DocClick image to view imaged documents for this well/facility. COAClick image to view wellbore completion diagram. WellboreClick image to search for orders within this facility's section. OrdersClick image to view bradenhead scoutcard data. Bradenhead
 Surface Location
 API# 05-045-14704
Well Classification: GW Status: PR - 4/1/2023
Well Name/No:SGU #CP13B-34 M34 49
(Click Well Name for Production Data)
Click Here for Transporter Gatherer Info
Operator:QB ENERGY OPERATING LLC - 10844
(Click Operator Name for Company Detail Report)
Federal Or State Lease #:COC69557
Facility Status:PRStatus Date4/1/2023
FacilityID:292365LocationID:335927
County:GARFIELD #045Location:SWSW 34 4S96W 6
Field:GRAND VALLEY - #31290Elevation:8374 ft.
Basin:PICEANCE BASIN  
Planned Location:840FSL  622 FWLLat/Long: 39.653633 / -108.161933Lat/Long Source: Field Measured
As Drilled Location:Footages Not AvailableLat/Long: 39.653632 / -108.161934Lat/Long Source: Field Measured
 Wellbore And Formation Details -- select either a wellbore Or formation to expand.
 

Wellbore #00             Wellbore Classification: GW             Status: PR - 4/1/2023             Measured TD: 11400 ft.    Vertical TD: 11383 ft.

 Wellbore Data for Original WellboreWellbore Classification: GW        PR - 4/1/2023
Wellbore PermitDIRECTIONAL
Permit #:20074079 Expiration Date:9/19/2008
Proposed Top PZ Location:Sec:34 Twp: 4S 96W Footage: 971 FSL  374 FWL
Bottom Hole Location:Sec:34 Twp: 4S 96W Footage: 971 FSL  374 FWL
Proposed Depth/Form:12479 ft.
Surface Mineral Owner Same:No
Mineral Owner:FEDERALSurface Owner:FEE
Unit:STORY GULCH UNI Unit Number:COC-69333X
Formation And Spacing:Code: SEGO , Formation: SEGO , Order: , Unit Acreage: , Drill Unit:
Formation And Spacing:Code: WMFK , Formation: WILLIAMS FORK , Order: , Unit Acreage: , Drill Unit:

Wellbore Completed
Completion Date:4/3/2008
Spud Date:10/2/2007Spud Date Is:ACTUAL
Measured TD:11400 ft.Measured PB depth:11101 ft.
True Vertical TD:11383 ft.True Vertical PB depth:11085 ft.
Top PZ Location:Sec:34 Twp: 4S 96WFootage: 971 FSL  374 FWL
Bottom Hole Location:Sec:34 Twp: 4S 96WFootage: 971 FSL  374 FWL
Log Types:INDUCTION/DENSITY, CBL, GR/TEMP/RST, SM, GR-CCL/CBL, MUD
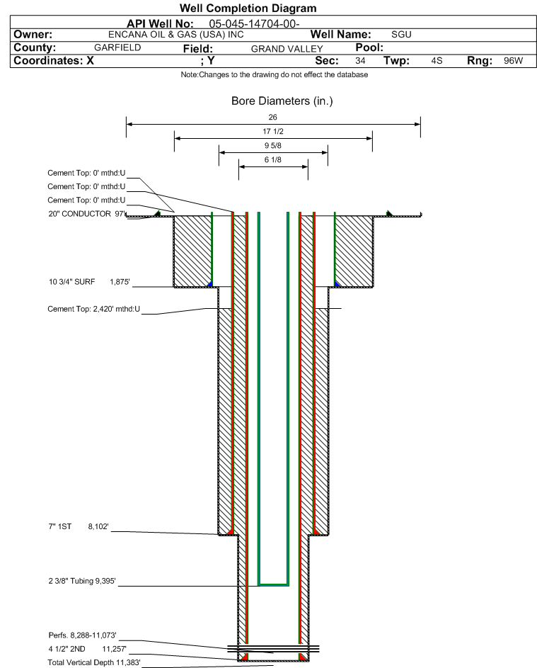
Casing:String Type: CONDUCTOR, Hole Size: 26 in., Size: 20 in., Top: 0 ft., Depth: 97 ft., Weight: , Citings Type: ACTUAL
Cement:Sacks: 6, Top: 0 ft., Bottom: 97 ft., Determination Method:
Casing:String Type: SURF, Hole Size: 17.5 in., Size: 10.75 in., Top: 0 ft., Depth: 1875 ft., Weight: , Citings Type: ACTUAL
Cement:Sacks: 1484, Top: 0 ft., Bottom: 1875 ft., Determination Method:
Casing:String Type: 1ST, Hole Size: 9.625 in., Size: 7 in., Top: 0 ft., Depth: 8102 ft., Weight: , Citings Type: ACTUAL
Cement:Sacks: 803, Top: 2420 ft., Bottom: 8102 ft., Determination Method: CBL
Casing:String Type: 2ND, Hole Size: 6.125 in., Size: 4.5 in., Top: 0 ft., Depth: 11257 ft., Weight: , Citings Type: ACTUAL
Cement:Sacks: 320, Top: 0 ft., Bottom: 11257 ft., Determination Method: CBL
FormationInterval TopLog BottomCoredDSTs
WASATCH3668 ft.NN
OHIO CREEK7026 ft.NN
WILLIAMS FORK7459 ft.NN
ROLLINS11161 ft.NN

Formation WMFK                     Formation Classification:  GW                     Status:  PR - 4/1/2023                  Interval Top: 8288 ft.    Interval Bottom: 11073 ft.

 Completed Information for Formation WILLIAMS FORK
1st Production Date:7/14/2008Choke Size:0.125 in.
Formation Name:WILLIAMS FORKCommingled:No
Production Method:
Open Hole Completion:No
Formation Treatment
Treatment Date:6/26/2008
Treatment Summary:78288 BBLS SLICKWATER, 252240 LBS 100 MESH, 346131 LBS 40/70 JORDAN-UNIMIN, 1111764 LBS 20/40 JORDAN UNIMIN
Tubing Size:2.375 in.Tubing Setting Depth:9395 ft.
Tubing Packer Depth:Tubing Multiple Packer:
Open Hole Top:Open Hole Bottom:
Initial Test Data:
Test Date:7/14/2008Test Method:FLOWING
Hours Tested:24Gas Type:DRY
Gas Disposal:SOLD
Test TypeMeasure
BTU_GAS 1170
CALC_GOR 0
CALC_MCF_GAS 1700
CASING_PRESS 3400
MCF_GAS 1700
TUBING_PRESS 1500
Perforation Data:
Interval Top:8288 ft.# Of Holes:297
Interval Bottom:11073 ft.Hole Size:0.32 in.
Primary Well Designation:
None      i
            All DesignationsDate
Reported PluggedN 
Out Of Service RepurposedN 
Out Of ServiceN 
Inactive ExceptionN 
Noticed InactiveN 
Defined InactiveN 
Low ProducingN 

BOE/MCFE/GOR Calculations
Production for Previous 12 Months
October 2024 - September 2025i
Total Oil Produced (Barrels)0
Total Gas Produced (MCF)17231
GOR
GOR DeterminationMCFE
Average BOE per Day8.137
Average MCFE per Day47.225

 Federal Financial Assurance  i Y

 Tribal Well  i No