|
|
| |
|
|
|
|
Wellbore #00 Wellbore Classification: OW Status: PR - 12/22/2003 Measured TD: 6989 ft.| Wellbore Data for Original Wellbore | Wellbore Classification: OW PR - 12/22/2003 | | Wellbore Permit | DIRECTIONAL | | Permit #: | 20031549 | Expiration Date: | 9/8/2004 | | Proposed Top PZ Location: | Sec: Twp: | Footage: 1004 FSL 1812 FEL | | Bottom Hole Location: | Sec: Twp: | Footage: 1004 FSL 1812 FEL | | Proposed Depth/Form: | 7005 ft. | | Surface Mineral Owner Same: | Yes | | Mineral Owner: | FEE | Surface Owner: | FEE | | Unit: | | Unit Number: | | | Formation And Spacing: | Code: WMFK , Formation: WILLIAMS FORK , Order: 139-38 , Unit Acreage: 320, Drill Unit: S/2 |
| | |
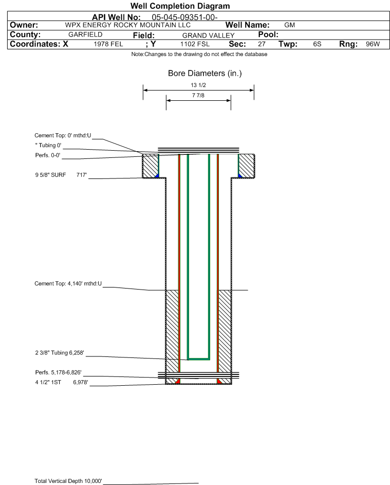
| Wellbore Completed | | Completion Date: | N/A | | Spud Date: | 10/20/2003 | Spud Date Is: | ACTUAL | | Measured TD: | 6989 ft. | Measured PB depth: | 6932 ft. | | True Vertical TD: | | True Vertical PB depth: | | | Top PZ Location: | Sec: Twp: | Footage: 1004 FSL 1812 FEL | | Bottom Hole Location: | Sec: Twp: | Footage: 1004 FSL 1812 FEL | | Log Types: | NEUTRON DENSITY, CBL | | Casing: | String Type: SURF, Hole Size: 13.5 in., Size: 9.625 in., Top: , Depth: 717 ft., Weight: 32.3 , Citings Type: ACTUAL | | Cement: | Sacks: 335, Top: 0 ft., Bottom: 717 ft., Determination Method: | | Casing: | String Type: 1ST, Hole Size: 7.875 in., Size: 4.5 in., Top: , Depth: 6978 ft., Weight: 11.6 , Citings Type: ACTUAL | | Cement: | Sacks: 975, Top: 4140 ft., Bottom: 6978 ft., Determination Method: CBL | | Formation | Interval Top | Log Bottom | Cored | DSTs | | GREELEY SAND | 2016 ft. | | N | N | | FORT UNION | 2306 ft. | | N | N | | MESAVERDE | 3762 ft. | | N | N | | CAMEO COAL | 6379 ft. | | N | N | | ROLLINS | 6873 ft. | | N | N |
Formation WFCM Formation Classification: OW Status: PR - 12/22/2003 Interval Top: 5178 ft. Interval Bottom: 6826 ft.| Completed Information for Formation WILLIAMS FORK - CAMEO | | 1st Production Date: | N/A | Choke Size: | 0.234 in. | | Formation Name: | WILLIAMS FORK - CAMEO | Commingled: | No | | Production Method: | FLOWING | | Open Hole Completion: | No |
| | Formation Treatment | | Treatment Date: | 12/22/2003 | | Treatment Summary: | |
| | Tubing Size: | 2.375 in. | Tubing Setting Depth: | 6258 ft. | | Tubing Packer Depth: | | Tubing Multiple Packer: | | | Open Hole Top: | | Open Hole Bottom: | | | Initial Test Data: | | Test Date: | 12/22/2003 | Test Method: | FLOWING | | Hours Tested: | 24 | Gas Type: | | | Gas Disposal: | | |
| Test Type | Measure |
|---|
| CALC_MCF_GAS | 1342 | | CASING_PRESS | 1233 | | MCF_GAS | 1342 | | TUBING_PRESS | 1087 |
| | Perforation Data: | | Interval Top: | 5178 ft. | # Of Holes: | 72 | | Interval Bottom: | 6826 ft. | Hole Size: | |
|
Formation WMFK Formation Classification: OW Status: CM - 12/22/2003| Completed Information for Formation WILLIAMS FORK | | 1st Production Date: | N/A | Choke Size: | | | Formation Name: | WILLIAMS FORK | Commingled: | No | | Production Method: | | | Open Hole Completion: | No |
| | Formation Treatment | | Treatment Date: | 12/22/2003 | | Treatment Summary: | 6560-6826 - 1000 GALS 7 1/2% HCLL, 1277661# SAND & 2973 BBLS GEL WATER; 6034-6269 - 2000 GALS 7 1/2% HCL, 145975# SAND & 3569 BBLS GEL WATER; 2000 GALS 7-1/2% HCL, 138560# SAND & 3604 BBLS GEL WATER; 5178-5534 - 126506# SAND & 2936 BBLS GEL WATER. |
| | Tubing Size: | | Tubing Setting Depth: | | | Tubing Packer Depth: | | Tubing Multiple Packer: | | | Open Hole Top: | | Open Hole Bottom: | | | No Initial Test Data was found for formation WMFK. |
| | Perforation Data: | | Interval Top: | | # Of Holes: | | | Interval Bottom: | | Hole Size: | |
|
|
|
|
|
|
|
| Reported Plugged | N | |
| Out Of Service Repurposed | N | |
| Out Of Service | N | |
| Inactive Exception | N | |
| Noticed Inactive | N | |
| Defined Inactive | N | |
| Low Producing | N | |
| Total Oil Produced (Barrels) | 14 |
| Total Gas Produced (MCF) | 8367 |
| GOR | 597642 |
| GOR Determination | MCFE |
| Average BOE per Day | 3.993 |
| Average MCFE per Day | 23.159 |
| Federal Financial Assurance | i | |
|
|