Skip to Main Content

COGIS

Facility Detail

COGIS - WELL SCOUT CARD

Click image to view related facilities. Related  Click image to view inspection information. InspClick image to view MIT information. MITGIS Map GISOld GIS Map Old GISClick image to view imaged documents for this well/facility. DocClick image to view imaged documents for this well/facility. COAClick image to view wellbore completion diagram. WellboreClick image to search for orders within this facility's section. OrdersClick image to view bradenhead scoutcard data. Bradenhead
 Surface Location
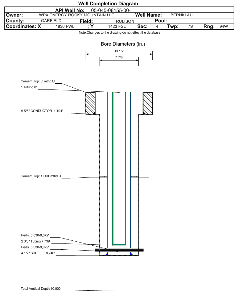
 API# 05-045-08155
Well Classification: GW Status: PR - 10/21/2002
Well Name/No:BERNKLAU #RWF 23-4
(Click Well Name for Production Data)
Click Here for Transporter Gatherer Info
Operator:TEP ROCKY MOUNTAIN LLC - 96850
(Click Operator Name for Company Detail Report)
Federal Or State Lease #:COC 58078
Facility Status:PRStatus Date10/21/2002
FacilityID:263904LocationID:334777
County:GARFIELD #045Location:NESW 4 7S94W 6
Field:RULISON - #75400Elevation:6167 ft.
Basin:PICEANCE BASIN  
Planned Location:1423FSL  1830 FWLLat/Long: 39.463880 / -107.895290Lat/Long Source: Calculated From Footages
As Drilled Location:Footages Not AvailableLat/Long: 39.463834 / -107.895633Lat/Long Source: Field Measured
 Wellbore And Formation Details -- select either a wellbore Or formation to expand.
 

Wellbore #00             Wellbore Classification: GW             Status: PR - 10/21/2002             Measured TD: 8249 ft.

 Wellbore Data for Original WellboreWellbore Classification: GW        PR - 10/21/2002
Wellbore Permit
Permit #:20021117 Expiration Date:6/5/2003
Proposed Depth/Form:8215 ft.
Surface Mineral Owner Same:Yes
Mineral Owner:FEESurface Owner:FEE
Unit: Unit Number: 
Formation And Spacing:Code: WMFK , Formation: WILLIAMS FORK , Order: 479-7 , Unit Acreage: 640, Drill Unit: ALL
Casing:String Type: 1ST, Hole Size: 7.875 in., Size: 4.5 in., Top: , Depth: 8215 ft., Weight: 11.6 , Citings Type: PLANNED
Cement:Sacks: , Top: , Bottom:

Wellbore Completed
Completion Date:10/17/2002
Spud Date:7/16/2002Spud Date Is:ACTUAL
Measured TD:8249 ft.Measured PB depth:8170 ft.
True Vertical TD:True Vertical PB depth:
Top PZ Location:Sec: Twp: Footage:  FL   FL
Bottom Hole Location:Sec: Twp: Footage:  FL   FL
Log Types:DIL-GR-SP=NEUTRON DENSITY, CBL
Casing:String Type: CONDUCTOR, Hole Size: 13.5 in., Size: 9.625 in., Top: 0 ft., Depth: 1104 ft., Weight: 32.3 , Citings Type: ACTUAL
Cement:Sacks: 500, Top: 0 ft., Bottom: 1103 ft., Determination Method:
Casing:String Type: SURF, Hole Size: 7.875 in., Size: 4.5 in., Top: 0 ft., Depth: 8246 ft., Weight: 11.6 , Citings Type: ACTUAL
Cement:Sacks: 857, Top: 4300 ft., Bottom: 4246 ft., Determination Method: CALC
FormationInterval TopLog BottomCoredDSTs
WASATCH G2420 ft.NN
MESAVERDE4820 ft.NN
CAMEO COAL7319 ft.NN

Formation WFCM                     Formation Classification:  GW                     Status:  PR - 10/21/2002                Interval Top: 6030 ft.    Interval Bottom: 8072 ft.

 Completed Information for Formation WILLIAMS FORK - CAMEO
1st Production Date:10/21/2002Choke Size:2.375 in.
Formation Name:WILLIAMS FORK - CAMEOCommingled:Yes
Production Method:FLOWING
Open Hole Completion:
Formation Treatment
Treatment Date:10/17/2002
Treatment Summary:1000 GALS 7.5% HCL; 142,135# 20/40 SAND & 3562 BBLS SLICK WATER. // 750 GALS 7.5% HCL; 108,808# 20/40 SAND & 2814 BBLS SLICK WATER // 750 GALS 7.5% HCL; 120,360# 20/40 SAND & 2905 BBLS SLICK WATER // 750 GALS 7.55 HCL; 246,149# 20/40 SAND & 5038 BBLS SLICK WATER // 750 GALS 7.5% HCL; 138,447# 20/40 SAND & 2989 BBLS SLICK WATER
Tubing Size:2.375 in.Tubing Setting Depth:7739 ft.
Tubing Packer Depth:Tubing Multiple Packer:
Open Hole Top:Open Hole Bottom:
Initial Test Data:
Test Date:10/21/2002Test Method:FLOWING
Hours Tested:24Gas Type:DRY
Gas Disposal:SOLD
Test TypeMeasure
MCF_GAS 1393
Perforation Data:
Interval Top:6030 ft.# Of Holes:98
Interval Bottom:8072 ft.Hole Size:0.34 in.

Formation WMFK                     Formation Classification:  GW                     Status:  CM - 10/21/2002                Interval Top: 6030 ft.    Interval Bottom: 8072 ft.

 Completed Information for Formation WILLIAMS FORK
1st Production Date:N/AChoke Size: 
Formation Name:WILLIAMS FORKCommingled:Yes
Production Method:
Open Hole Completion:No
Formation Treatment
Treatment Date:10/17/2002
Treatment Summary:TOP(7749BOTTOM8072') 1000 GAL 7.5%HCL;142,135# 20/40 SAND & 3562 BBL SLICK WATER.(TOP7150'BOTTOM 7553')750 GAL 7.5% HCL;108,808# 20/40 SAND & 2814 BBLS SLICK WATER.(CONT)
Tubing Size:Tubing Setting Depth:
Tubing Packer Depth:Tubing Multiple Packer:
Open Hole Top:Open Hole Bottom:
No Initial Test Data was found for formation WMFK.
Perforation Data:
Interval Top:6030 ft.# Of Holes:98
Interval Bottom:8072 ft.Hole Size:
Primary Well Designation:
None      i
            All DesignationsDate
Reported PluggedN 
Out Of Service RepurposedN 
Out Of ServiceN 
Inactive ExceptionN 
Noticed InactiveN 
Defined InactiveN 
Low ProducingN 

BOE/MCFE/GOR Calculations
Production for Previous 12 Months
February 2025 - January 2026i
Total Oil Produced (Barrels)19
Total Gas Produced (MCF)15407
GOR810894
GOR DeterminationMCFE
Average BOE per Day7.332
Average MCFE per Day42.528

 Federal Financial Assurance  i 

 Tribal Well  i No