Skip to Main Content

COGIS

Facility Detail

COGIS - WELL SCOUT CARD

Click image to view related facilities. Related  Click image to view inspection information. InspClick image to view MIT information. MITClick image to access interactive map at well/facility location. GISClick image to view imaged documents for this well/facility. DocClick image to view imaged documents for this well/facility. COAClick image to view wellbore completion diagram. WellboreClick image to search for orders within this facility's section. OrdersClick image to view bradenhead scoutcard data. Bradenhead
 Surface Location
 API# 05-045-07731
Well Classification: GW Status: PR - 3/6/2001
Well Name/No:BARRETT #GM 241-1
(Click Well Name for Production Data)
Click Here for Transporter Gatherer Info
Operator:TEP ROCKY MOUNTAIN LLC - 96850
(Click Operator Name for Company Detail Report)
Federal Or State Lease #:COC62744
Facility Status:PRStatus Date3/6/2001
FacilityID:259463LocationID:334903
County:GARFIELD #045Location:NENW 1 7S96W 6
Field:GRAND VALLEY - #31290Elevation:5353 ft.
Basin:PICEANCE BASIN  
Planned Location:796FNL  2313 FWLLat/Long: 39.471469 / -108.058705Lat/Long Source: Calculated From Footages
As Drilled Location:Footages Not AvailableLat/Long: 39.471168 / -108.058753Lat/Long Source: Field Measured
 Wellbore And Formation Details -- select either a wellbore Or formation to expand.
 

Wellbore #00             Wellbore Classification: GW             Status: PR - 2/6/2001             Measured TD: 6670 ft.

 Wellbore Data for Original WellboreWellbore Classification: GW        PR - 2/6/2001
Wellbore Permit
Permit #:010436 Expiration Date:3/5/2002
Proposed Depth/Form:7000 ft.
Surface Mineral Owner Same:Yes
Mineral Owner:FEESurface Owner:FEE
Unit: Unit Number: 
Formation And Spacing:Code: WMFK , Formation: WILLIAMS FORK , Order: 510-3 , Unit Acreage: 320, Drill Unit: N2

Wellbore Completed
Completion Date:N/A
Spud Date:5/2/2001Spud Date Is:ACTUAL
Measured TD:6670 ft.Measured PB depth:
True Vertical TD:True Vertical PB depth:
Log Types:DUAL INDUCTION SPECTRAL DENSITY DUAL SPACED NEU.
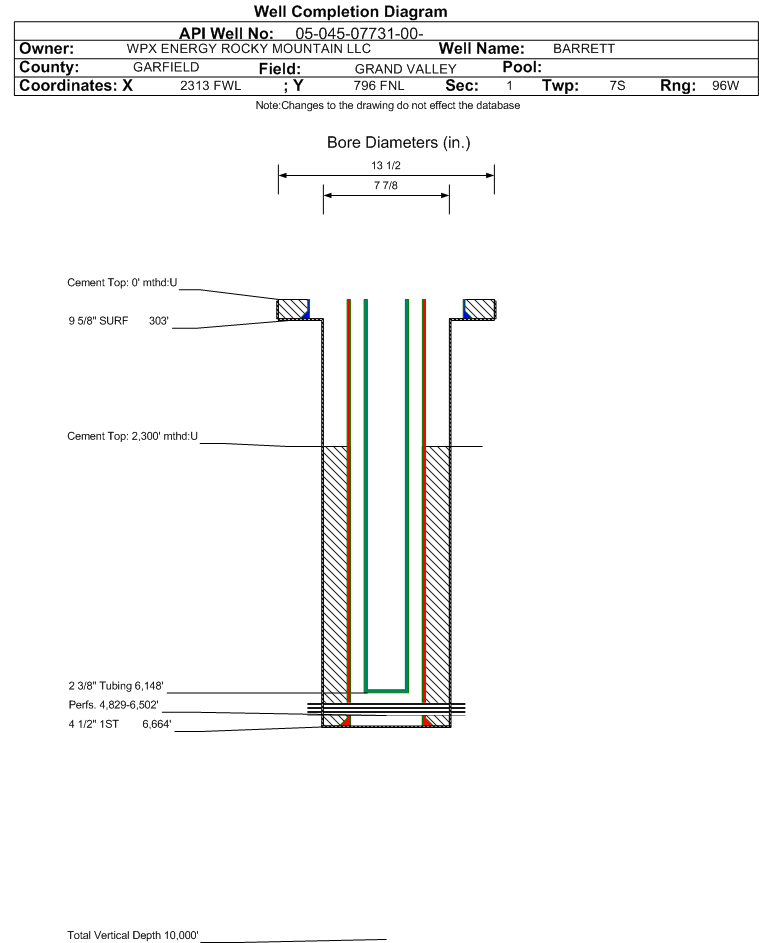
Casing:String Type: SURF, Hole Size: 13.5 in., Size: 9.625 in., Top: , Depth: 303 ft., Weight: 36 , Citings Type: ACTUAL
Cement:Sacks: 180, Top: 0 ft., Bottom: 303 ft., Determination Method:
Casing:String Type: 1ST, Hole Size: 7.875 in., Size: 4.5 in., Top: , Depth: 6664 ft., Weight: 11.6 , Citings Type: ACTUAL
Cement:Sacks: 760, Top: 2300 ft., Bottom: 6664 ft., Determination Method: CBL
FormationInterval TopLog BottomCoredDSTs
WASATCH G1692 ft.NN
FORT UNION2025 ft.NN
MESAVERDE3556 ft.NN
CAMEO COAL6042 ft.NN
ROLLINS6572 ft.NN

Formation WFCM                     Formation Classification:  GW                     Status:  PR - 2/6/2001                  Interval Top: 4829 ft.    Interval Bottom: 6502 ft.

 Completed Information for Formation WILLIAMS FORK - CAMEO
1st Production Date:N/AChoke Size:0.188 in.
Formation Name:WILLIAMS FORK - CAMEOCommingled:No
Production Method:
Open Hole Completion:No
Formation Treatment
Treatment Date:6/28/2001
Treatment Summary:1000 GALS 7.5% HCL; 189,100# 20/40 SAND & 3579 BBLS FLUID. FORMATION (B) TOP 5702' BOTTOM 5959'W16 HOLES SIZE.34";750 GALS 7.5%HCL;160,600# 20/40 SAND & 3533 BBLS FLUID.
Tubing Size:2.375 in.Tubing Setting Depth:6148 ft.
Tubing Packer Depth:Tubing Multiple Packer:
Open Hole Top:Open Hole Bottom:
Initial Test Data:
Test Date:6/28/2001Test Method:FLOWING
Hours Tested:24Gas Type:DRY
Gas Disposal:SOLD
Test TypeMeasure
BBLS_H2O 0
BBLS_OIL 0
CALC_BBLS_H2O 0
CALC_BBLS_OIL 0
CALC_MCF_GAS 1363
CASING_PRESS 1663
MCF_GAS 1363
TUBING_PRESS 1547
Perforation Data:
Interval Top:4829 ft.# Of Holes:64
Interval Bottom:6502 ft.Hole Size:
Primary Well Designation:
None      i
            All DesignationsDate
Reported PluggedN 
Out Of Service RepurposedN 
Out Of ServiceN 
Inactive ExceptionN 
Noticed InactiveN 
Defined InactiveN 
Low ProducingN 

BOE/MCFE/GOR Calculations
Production for Previous 12 Months
November 2024 - October 2025i
Total Oil Produced (Barrels)11
Total Gas Produced (MCF)6075
GOR552272
GOR DeterminationMCFE
Average BOE per Day2.902
Average MCFE per Day16.828

 Federal Financial Assurance  i 

 Tribal Well  i No