Skip to Main Content

COGIS

Facility Detail

COGIS - WELL SCOUT CARD

Click image to view related facilities. Related  Click image to view inspection information. InspClick image to view MIT information. MITGIS Map GISOld GIS Map Old GISClick image to view imaged documents for this well/facility. DocClick image to view imaged documents for this well/facility. COAClick image to view wellbore completion diagram. WellboreClick image to search for orders within this facility's section. OrdersClick image to view bradenhead scoutcard data. Bradenhead
 Surface Location
 API# 05-045-07697
Well Classification: GW Status: PR - 2/5/2001
Well Name/No:PUCKETT #GM 312-28
(Click Well Name for Production Data)
Click Here for Transporter Gatherer Info
Operator:TEP ROCKY MOUNTAIN LLC - 96850
(Click Operator Name for Company Detail Report)
Federal Or State Lease #:
Facility Status:PRStatus Date2/5/2001
FacilityID:259207LocationID:324145
County:GARFIELD #045Location:SWNW 28 6S96W 6
Field:GRAND VALLEY - #31290Elevation:5485 ft.
Basin:PICEANCE BASIN  
Planned Location:2641FNL  264 FWLLat/Long: 39.495288 / -108.122197Lat/Long Source: Calculated From Footages
As Drilled Location:Footages Not AvailableLat/Long: 39.495220 / -108.122185Lat/Long Source: Field Measured
 Wellbore And Formation Details -- select either a wellbore Or formation to expand.
 

Wellbore #00             Wellbore Classification: GW             Status: PR - 1/11/2001             Measured TD: 6622 ft.

 Wellbore Data for Original WellboreWellbore Classification: GW        PR - 1/11/2001
Wellbore Permit
Permit #:010212 Expiration Date:2/4/2002
Proposed Depth/Form:6900 ft.
Surface Mineral Owner Same:Yes
Mineral Owner:FEESurface Owner:FEE
Unit: Unit Number: 
Formation And Spacing:Code: WMFK , Formation: WILLIAMS FORK , Order: 479-7 , Unit Acreage: 320, Drill Unit: W2

Wellbore Completed
Completion Date:4/9/2001
Spud Date:2/17/2001Spud Date Is:ACTUAL
Measured TD:6622 ft.Measured PB depth:
True Vertical TD:True Vertical PB depth:
Log Types:DUAL INDUCTION SPECTRAL DENSITY DUAL SPACED NEUTRON, CBL
Log Types:DUAL INDUCITON SPECTRAL DENSITY DUAL SPACED NEUTRON, CBL
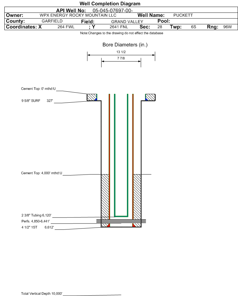
Casing:String Type: SURF, Hole Size: 13.5 in., Size: 9.625 in., Top: 0 ft., Depth: 327 ft., Weight: 36 , Citings Type: ACTUAL
Cement:Sacks: 180, Top: 0 ft., Bottom: 327 ft., Determination Method: VISU
Casing:String Type: 1ST, Hole Size: 7.875 in., Size: 4.5 in., Top: 0 ft., Depth: 6612 ft., Weight: 11.6 , Citings Type: ACTUAL
Cement:Sacks: 850, Top: 4000 ft., Bottom: 6612 ft., Determination Method: CBL
FormationInterval TopLog BottomCoredDSTs
FORT SCOTT2209 ft.NN
FORT UNION2209 ft.NN
MESAVERDE3603 ft.NN
CAMEO COAL6116 ft.NN
ROLLINS6579 ft.NN

Formation WFCM                     Formation Classification:  GW                     Status:  PR - 1/11/2001                 Interval Top: 4836 ft.    Interval Bottom: 6427 ft.

 Completed Information for Formation WILLIAMS FORK - CAMEO
1st Production Date:N/AChoke Size:0.203 in.
Formation Name:WILLIAMS FORK - CAMEOCommingled:No
Production Method:FLOWING
Open Hole Completion:No
Formation Treatment
Treatment Date:4/9/2001
Treatment Summary:
Tubing Size:2.375 in.Tubing Setting Depth:6120 ft.
Tubing Packer Depth:Tubing Multiple Packer:
Open Hole Top:Open Hole Bottom:
Initial Test Data:
Test Date:4/19/2001Test Method:
Hours Tested:24Gas Type:DRY
Gas Disposal:SOLD
Test TypeMeasure
BBLS_H2O 0
BBLS_OIL 0
CALC_BBLS_H2O 0
CALC_BBLS_OIL 0
CALC_MCF_GAS 1459
CASING_PRESS 1804
MCF_GAS 1459
TUBING_PRESS 999
Perforation Data:
Interval Top:4836 ft.# Of Holes:84
Interval Bottom:6427 ft.Hole Size:
Primary Well Designation:
None      i
            All DesignationsDate
Reported PluggedN 
Out Of Service RepurposedN 
Out Of ServiceN 
Inactive ExceptionN 
Noticed InactiveN 
Defined InactiveN 
Low ProducingN 

BOE/MCFE/GOR Calculations
Production for Previous 12 Months
February 2025 - January 2026i
Total Oil Produced (Barrels)27
Total Gas Produced (MCF)20020
GOR741481
GOR DeterminationMCFE
Average BOE per Day9.530
Average MCFE per Day55.291

 Federal Financial Assurance  i 

 Tribal Well  i No