|
|
| |
|
|
|
|
Wellbore #00 Wellbore Classification: GW Status: PR - 6/1/2002 Measured TD: 8382 ft.| Wellbore Data for Original Wellbore | Wellbore Classification: GW PR - 6/1/2002 | | Wellbore Permit | | | Permit #: | 010181 | Expiration Date: | 1/29/2002 | | Proposed Top PZ Location: | Sec:14 Twp: 7S 93W | Footage: 2024 FNL 511 FWL | | Bottom Hole Location: | Sec:14 Twp: 7S 93W | Footage: 1980 FNL 660 FWL | | Proposed Depth/Form: | 7900 ft. | | Surface Mineral Owner Same: | Yes | | Mineral Owner: | FEE | Surface Owner: | FEE | | Unit: | HUNTER MESA UNI | Unit Number: | COC55972E | | Formation And Spacing: | Code: WMFK , Formation: WILLIAMS FORK , Order: , Unit Acreage: , Drill Unit: |
| | |
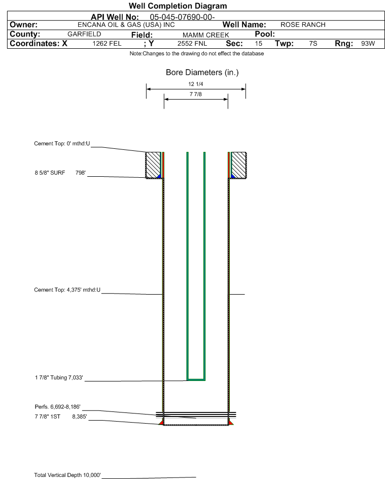
| Wellbore Completed | | Completion Date: | 10/25/2001 | | Spud Date: | 5/7/2001 | Spud Date Is: | ACTUAL | | Measured TD: | 8382 ft. | Measured PB depth: | 8290 ft. | | True Vertical TD: | | True Vertical PB depth: | | | Top PZ Location: | Sec: Twp: | Footage: 2053 FNL 420 FWL | | Bottom Hole Location: | Sec: Twp: | Footage: 1945 FNL 720 FWL | | Log Types: | CBL/GR/CCL/RST | | Casing: | String Type: SURF, Hole Size: 12.25 in., Size: 8.625 in., Top: 0 ft., Depth: 798 ft., Weight: 24 , Citings Type: ACTUAL | | Cement: | Sacks: 360, Top: 0 ft., Bottom: 798 ft., Determination Method: | | Casing: | String Type: 1ST, Hole Size: 7.875 in., Size: 7.875 in., Top: 0 ft., Depth: 8385 ft., Weight: 11.6 , Citings Type: ACTUAL | | Cement: | Sacks: 1000, Top: 4375 ft., Bottom: 8385 ft., Determination Method: CBL | | Formation | Interval Top | Log Bottom | Cored | DSTs | | WILLIAMS FORK | 5603 ft. | | N | N |
Formation WMFK Formation Classification: GW Status: PR - 6/1/2002 Interval Top: 6692 ft. Interval Bottom: 8186 ft.| Completed Information for Formation WILLIAMS FORK | | 1st Production Date: | N/A | Choke Size: | 0.375 in. | | Formation Name: | WILLIAMS FORK | Commingled: | No | | Production Method: | | | Open Hole Completion: | No |
| | Formation Treatment | | Treatment Date: | 10/25/2001 | | Treatment Summary: | |
| | Tubing Size: | 1.9 in. | Tubing Setting Depth: | 7033 ft. | | Tubing Packer Depth: | | Tubing Multiple Packer: | | | Open Hole Top: | | Open Hole Bottom: | | | Initial Test Data: | | Test Date: | 7/24/2001 | Test Method: | FLOWING | | Hours Tested: | 24 | Gas Type: | DRY | | Gas Disposal: | SOLD | |
| Test Type | Measure |
|---|
| BBLS_H2O | 8 | | BBLS_OIL | 1 | | BTU_GAS | 1170 | | CALC_BBLS_H2O | 8 | | CALC_BBLS_OIL | 1 | | CALC_GOR | 1364 | | CALC_MCF_GAS | 1364 | | CASING_PRESS | 1000 | | MCF_GAS | 1364 |
| | Perforation Data: | | Interval Top: | 6692 ft. | # Of Holes: | 128 | | Interval Bottom: | 8186 ft. | Hole Size: | |
|
|
|
|
|
|
|
| Reported Plugged | N | |
| Out Of Service Repurposed | N | |
| Out Of Service | N | |
| Inactive Exception | N | |
| Noticed Inactive | N | |
| Defined Inactive | N | |
| Low Producing | N | |
| Total Oil Produced (Barrels) | 13 |
| Total Gas Produced (MCF) | 9688 |
| GOR | 745230 |
| GOR Determination | MCFE |
| Average BOE per Day | 4.614 |
| Average MCFE per Day | 26.753 |
| Federal Financial Assurance | i | Y |
|
|