Skip to Main Content

COGIS

Facility Detail

COGIS - WELL SCOUT CARD

Click image to view related facilities. Related  Click image to view inspection information. InspClick image to view MIT information. MITClick image to access interactive map at well/facility location. GISClick image to view imaged documents for this well/facility. DocClick image to view imaged documents for this well/facility. COAClick image to view wellbore completion diagram. WellboreClick image to search for orders within this facility's section. OrdersClick image to view bradenhead scoutcard data. Bradenhead
 Surface Location
 API# 05-045-07687
Well Classification: GW Status: PR - 4/21/2001
Well Name/No:AMERICAN SODA #GM 261-2
(Click Well Name for Production Data)
Click Here for Transporter Gatherer Info
Operator:TEP ROCKY MOUNTAIN LLC - 96850
(Click Operator Name for Company Detail Report)
Federal Or State Lease #:
Facility Status:PRStatus Date4/21/2001
FacilityID:259119LocationID:324141
County:GARFIELD #045Location:NESW 2 7S96W 6
Field:GRAND VALLEY - #31290Elevation:5207 ft.
Basin:PICEANCE BASIN  
Planned Location:2252FSL  2129 FWLLat/Long: 39.465279 / -108.078735Lat/Long Source: Calculated From Footages
As Drilled Location:Footages Not AvailableLat/Long: 39.465860 / -108.077612Lat/Long Source: Field Measured
 Wellbore And Formation Details -- select either a wellbore Or formation to expand.
 

Wellbore #00             Wellbore Classification: GW             Status: PR - 4/21/2001             Measured TD: 6158 ft.

 Wellbore Data for Original WellboreWellbore Classification: GW        PR - 4/21/2001
Wellbore Permit
Permit #:010169 Expiration Date:1/28/2002
Proposed Depth/Form:6390 ft.
Surface Mineral Owner Same:No
Mineral Owner:FEESurface Owner:FEE
Unit: Unit Number: 
Formation And Spacing:Code: WMFK , Formation: WILLIAMS FORK , Order: 139-32 , Unit Acreage: 40, Drill Unit: NESW

Wellbore Completed
Completion Date:4/18/2001
Spud Date:2/22/2001Spud Date Is:ACTUAL
Measured TD:6158 ft.Measured PB depth:6069 ft.
True Vertical TD:True Vertical PB depth:
Log Types:THERMAL DECAY, CBL
Log Types:DUAL INDUCTION SPECTRAL DENSITY DUAL SPACED NEUTRON
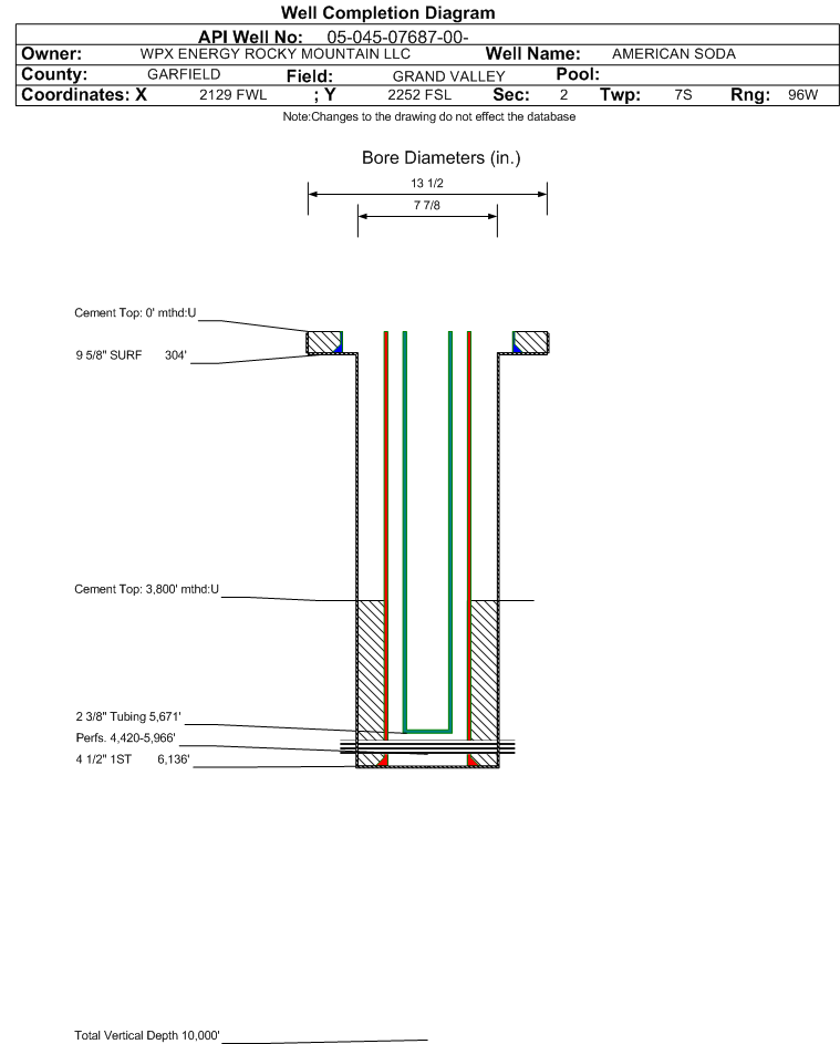
Casing:String Type: SURF, Hole Size: 13.5 in., Size: 9.625 in., Top: , Depth: 304 ft., Weight: 36 , Citings Type: ACTUAL
Cement:Sacks: 180, Top: , Bottom: 304 ft., Determination Method:
Casing:String Type: 1ST, Hole Size: 7.875 in., Size: 4.5 in., Top: , Depth: 6136 ft., Weight: 11.6 , Citings Type: ACTUAL
Cement:Sacks: 850, Top: 3800 ft., Bottom: 6136 ft., Determination Method: CBL
FormationInterval TopLog BottomCoredDSTs
WASATCH G1278 ft.NN
FORT UNION1785 ft.NN
MESAVERDE3194 ft.NN
CAMEO COAL5680 ft.NN
ROLLINS6143 ft.NN

Formation WFCM                     Formation Classification:  GW                     Status:  PR - 4/21/2001                 Interval Top: 4420 ft.    Interval Bottom: 5966 ft.

 Completed Information for Formation WILLIAMS FORK - CAMEO
1st Production Date:4/18/2001Choke Size:0.203 in.
Formation Name:WILLIAMS FORK - CAMEOCommingled:No
Production Method:FLOWING
Open Hole Completion:No
Formation Treatment
Treatment Date:4/18/2001
Treatment Summary:
Tubing Size:2.375 in.Tubing Setting Depth:5671 ft.
Tubing Packer Depth:Tubing Multiple Packer:
Open Hole Top:Open Hole Bottom:
Initial Test Data:
Test Date:4/21/2001Test Method:FLOWING
Hours Tested:24Gas Type:DRY
Gas Disposal:SOLD
Test TypeMeasure
BBLS_H2O 0
BBLS_OIL 0
CALC_BBLS_H2O 0
CALC_BBLS_OIL 0
CALC_MCF_GAS 1268
CASING_PRESS 1400
MCF_GAS 1268
TUBING_PRESS 1400
Perforation Data:
Interval Top:4420 ft.# Of Holes:68
Interval Bottom:5966 ft.Hole Size:
Primary Well Designation:
Low Producing      i
            All DesignationsDate
Reported PluggedN 
Out Of Service RepurposedN 
Out Of ServiceN 
Inactive ExceptionN 
Noticed InactiveN 
Defined InactiveN 
Low ProducingYProduction Period
11/2024 - 10/2025

BOE/MCFE/GOR Calculations
Production for Previous 12 Months
November 2024 - October 2025i
Total Oil Produced (Barrels)0
Total Gas Produced (MCF)1988
GOR
GOR DeterminationMCFE
Average BOE per Day0.937
Average MCFE per Day5.448

 Federal Financial Assurance  i 

 Tribal Well  i No