Skip to Main Content

COGIS

Facility Detail

COGIS - WELL SCOUT CARD

Click image to view related facilities. Related  Click image to view inspection information. InspClick image to view MIT information. MITClick image to access interactive map at well/facility location. GISClick image to view imaged documents for this well/facility. DocClick image to view imaged documents for this well/facility. COAClick image to view wellbore completion diagram. WellboreClick image to search for orders within this facility's section. OrdersClick image to view bradenhead scoutcard data. Bradenhead
 Surface Location
 API# 05-045-07651
Well Classification: GW Status: PR - 8/21/2004
Well Name/No:BOULTON #33-2 (G33)
(Click Well Name for Production Data)
Click Here for Transporter Gatherer Info
Operator:QB ENERGY OPERATING LLC - 10844
(Click Operator Name for Company Detail Report)
Federal Or State Lease #:
Facility Status:PRStatus Date8/21/2004
FacilityID:258738LocationID:334935
County:GARFIELD #045Location:SWNE 33 6S92W 6
Field:MAMM CREEK - #52500Elevation:5844 ft.
Basin:PICEANCE BASIN  
Planned Location:2307FNL  1462 FELLat/Long: 39.484361 / -107.667303Lat/Long Source: Calculated From Footages
As Drilled Location:Footages Not AvailableLat/Long: 39.484422 / -107.667185Lat/Long Source: Field Measured
 Wellbore And Formation Details -- select either a wellbore Or formation to expand.
 

Wellbore #00             Wellbore Classification: GW             Status: PR - 8/21/2004             Measured TD: 6350 ft.

 Wellbore Data for Original WellboreWellbore Classification: GW        PR - 8/21/2004
Wellbore Permit
Permit #:001433 Expiration Date:12/12/2001
Proposed Top PZ Location:Sec: Twp: Footage: 828 FNL  1927 FEL
Bottom Hole Location:Sec: Twp: Footage: 738 FNL  1974 FEL
Proposed Depth/Form:6050 ft.
Surface Mineral Owner Same:No
Mineral Owner:FEESurface Owner:FEE
Unit:GRASS MESA UNIT Unit Number:COC56608A
Formation And Spacing:Code: WMFK , Formation: WILLIAMS FORK , Order: , Unit Acreage: , Drill Unit:

Wellbore Completed
Completion Date:6/22/2001
Spud Date:1/19/2001Spud Date Is:ACTUAL
Measured TD:6350 ft.Measured PB depth:6285 ft.
True Vertical TD:True Vertical PB depth:
Top PZ Location:Sec: Twp: Footage: 828 FNL  1927 FEL
Bottom Hole Location:Sec: Twp: Footage: 738 FNL  1974 FEL
Log Types:RST/GR/CCL/CBL
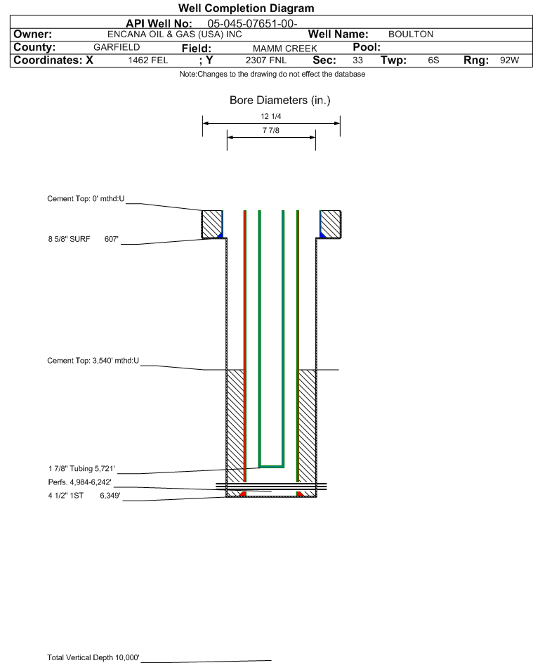
Casing:String Type: SURF, Hole Size: 12.25 in., Size: 8.625 in., Top: 0 ft., Depth: 607 ft., Weight: 24 , Citings Type: ACTUAL
Cement:Sacks: 360, Top: 0 ft., Bottom: 607 ft., Determination Method: VISU
Casing:String Type: 1ST, Hole Size: 7.875 in., Size: 4.5 in., Top: 0 ft., Depth: 6349 ft., Weight: 11.6 , Citings Type: ACTUAL
Cement:Sacks: 850, Top: 3540 ft., Bottom: 6349 ft., Determination Method: CBL
FormationInterval TopLog BottomCoredDSTs
WILLIAMS FORK3739 ft.NN

Formation WMFK                     Formation Classification:  GW                     Status:  PR - 8/21/2004                 Interval Top: 4984 ft.    Interval Bottom: 6242 ft.

 Completed Information for Formation WILLIAMS FORK
1st Production Date:N/AChoke Size:0.375 in.
Formation Name:WILLIAMS FORKCommingled:No
Production Method:
Open Hole Completion:No
Formation Treatment
Treatment Date:6/22/2001
Treatment Summary:
Tubing Size:1.9 in.Tubing Setting Depth:5721 ft.
Tubing Packer Depth:Tubing Multiple Packer:
Open Hole Top:Open Hole Bottom:
Initial Test Data:
Test Date:6/15/2001Test Method:FLOWING
Hours Tested:24Gas Type:DRY
Gas Disposal:SOLD
Test TypeMeasure
BBLS_H2O 38
BBLS_OIL 48
BTU_GAS 1170
CALC_BBLS_H2O 38
CALC_BBLS_OIL 48
CALC_GOR 30396
CALC_MCF_GAS 1459
CASING_PRESS 810
MCF_GAS 1459
Perforation Data:
Interval Top:4984 ft.# Of Holes:182
Interval Bottom:6242 ft.Hole Size:0.3 in.
Primary Well Designation:
None      i
            All DesignationsDate
Reported PluggedN 
Out Of Service RepurposedN 
Out Of ServiceN 
Inactive ExceptionN 
Noticed InactiveN 
Defined InactiveN 
Low ProducingN 

BOE/MCFE/GOR Calculations
Production for Previous 12 Months
October 2024 - September 2025i
Total Oil Produced (Barrels)64
Total Gas Produced (MCF)12848
GOR200750
GOR DeterminationMCFE
Average BOE per Day6.245
Average MCFE per Day36.208

 Federal Financial Assurance  i Y

 Tribal Well  i No