Skip to Main Content

COGIS

Facility Detail

COGIS - WELL SCOUT CARD

Click image to view related facilities. Related  Click image to view inspection information. InspClick image to view MIT information. MITClick image to access interactive map at well/facility location. GISClick image to view imaged documents for this well/facility. DocClick image to view imaged documents for this well/facility. COAClick image to view wellbore completion diagram. WellboreClick image to search for orders within this facility's section. OrdersClick image to view bradenhead scoutcard data. Bradenhead
 Surface Location
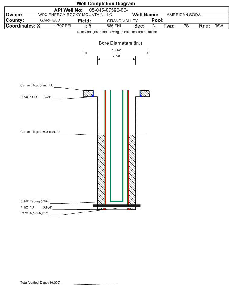
 API# 05-045-07596
Well Classification: GW Status: PR - 8/4/2000
Well Name/No:AMERICAN SODA #GM 267-3
(Click Well Name for Production Data)
Click Here for Transporter Gatherer Info
Operator:TEP ROCKY MOUNTAIN LLC - 96850
(Click Operator Name for Company Detail Report)
Federal Or State Lease #:
Facility Status:PRStatus Date8/4/2000
FacilityID:257806LocationID:324120
County:GARFIELD #045Location:NWNE 3 7S96W 6
Field:GRAND VALLEY - #31290Elevation:5294 ft.
Basin:PICEANCE BASIN  
Planned Location:886FNL  1797 FELLat/Long: 39.470809 / -108.091876Lat/Long Source: Calculated From Footages
As Drilled Location:Footages Not AvailableLat/Long: 39.470874 / -108.091574Lat/Long Source: Field Measured
 Wellbore And Formation Details -- select either a wellbore Or formation to expand.
 

Wellbore #00             Wellbore Classification: GW             Status: PR - 6/19/2000             Measured TD: 6175 ft.

 Wellbore Data for Original WellboreWellbore Classification: GW        PR - 6/19/2000
Wellbore Permit
Permit #:000822 Expiration Date:8/3/2001
Proposed Depth/Form:6400 ft.
Surface Mineral Owner Same:No
Mineral Owner:FEESurface Owner:FEE
Unit: Unit Number: 
Formation And Spacing:Code: WMFK , Formation: WILLIAMS FORK , Order: 139-32 , Unit Acreage: 40, Drill Unit: NWNE

Wellbore Completed
Completion Date:11/28/2000
Spud Date:10/7/2000Spud Date Is:ACTUAL
Measured TD:6175 ft.Measured PB depth:
True Vertical TD:True Vertical PB depth:
Log Types:DUAL INDUCTION SPECTRAL DENSITY DUAL SPACED NEUTRON,CBL
Casing:String Type: SURF, Hole Size: 13.5 in., Size: 9.625 in., Top: , Depth: 321 ft., Weight: 32.3 , Citings Type: ACTUAL
Cement:Sacks: 180, Top: , Bottom: 321 ft., Determination Method:
Casing:String Type: 1ST, Hole Size: 7.875 in., Size: 4.5 in., Top: , Depth: 6164 ft., Weight: 11.6 , Citings Type: ACTUAL
Cement:Sacks: 975, Top: 2300 ft., Bottom: 6163 ft., Determination Method: CBL
FormationInterval TopLog BottomCoredDSTs
WASATCH1522 ft.NN
FORT SCOTT1862 ft.NN
MESAVERDE3175 ft.NN
CAMEO COAL5667 ft.NN

Formation WFCM                     Formation Classification:  GW                     Status:  PR - 6/19/2000                 Interval Top: 4520 ft.    Interval Bottom: 6087 ft.

 Completed Information for Formation WILLIAMS FORK - CAMEO
1st Production Date:N/AChoke Size: 
Formation Name:WILLIAMS FORK - CAMEOCommingled:No
Production Method:FLOWING
Open Hole Completion:No
Formation Treatment
Treatment Date:11/28/2000
Treatment Summary:
Tubing Size:2.375 in.Tubing Setting Depth:5754 ft.
Tubing Packer Depth:Tubing Multiple Packer:
Open Hole Top:Open Hole Bottom:
Initial Test Data:
Test Date:12/9/2000Test Method:
Hours Tested:24Gas Type:
Gas Disposal:SOLD
Test TypeMeasure
CALC_MCF_GAS 1266
CASING_PRESS 1478
MCF_GAS 1266
TUBING_PRESS 1421
Perforation Data:
Interval Top:4520 ft.# Of Holes:84
Interval Bottom:6087 ft.Hole Size:
Primary Well Designation:
None      i
            All DesignationsDate
Reported PluggedN 
Out Of Service RepurposedN 
Out Of ServiceN 
Inactive ExceptionN 
Noticed InactiveN 
Defined InactiveN 
Low ProducingN 

BOE/MCFE/GOR Calculations
Production for Previous 12 Months
November 2024 - October 2025i
Total Oil Produced (Barrels)11
Total Gas Produced (MCF)7478
GOR679818
GOR DeterminationMCFE
Average BOE per Day3.568
Average MCFE per Day20.673

 Federal Financial Assurance  i 

 Tribal Well  i No