Skip to Main Content

COGIS

Facility Detail

COGIS - WELL SCOUT CARD

Click image to view related facilities. Related  Click image to view inspection information. InspClick image to view MIT information. MITGIS Map GISOld GIS Map Old GISClick image to view imaged documents for this well/facility. DocClick image to view imaged documents for this well/facility. COAClick image to view wellbore completion diagram. WellboreClick image to search for orders within this facility's section. OrdersClick image to view bradenhead scoutcard data. Bradenhead
 Surface Location
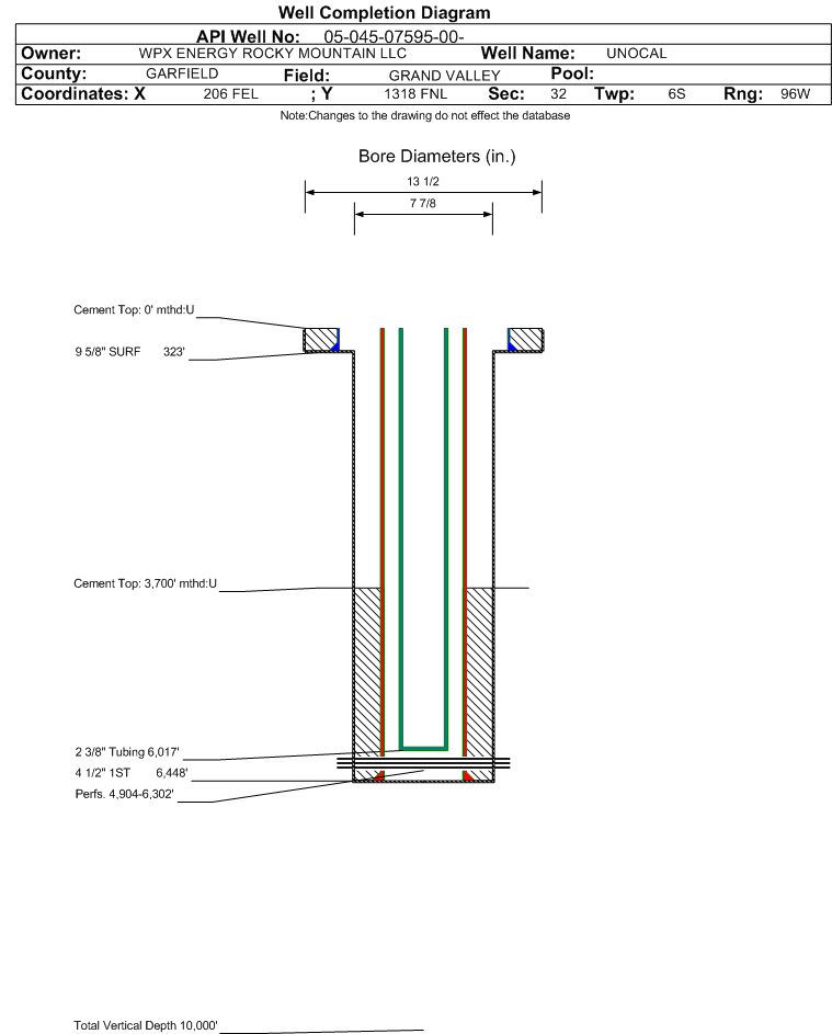
 API# 05-045-07595
Well Classification: OW Status: PR - 8/3/2000
Well Name/No:UNOCAL #GM-211-32
(Click Well Name for Production Data)
Click Here for Transporter Gatherer Info
Operator:TEP ROCKY MOUNTAIN LLC - 96850
(Click Operator Name for Company Detail Report)
Federal Or State Lease #:
Facility Status:PRStatus Date8/3/2000
FacilityID:257788LocationID:324119
County:GARFIELD #045Location:NENE 32 6S96W 6
Field:GRAND VALLEY - #31290Elevation:5784 ft.
Basin:PICEANCE BASIN  
Planned Location:1064FNL  1144 FELLat/Long: 39.484741 / -108.126880Lat/Long Source: Calculated From Footages
As Drilled Location:Footages Not AvailableLat/Long: 39.484847 / -108.126907Lat/Long Source: Field Measured
 Wellbore And Formation Details -- select either a wellbore Or formation to expand.
 

Wellbore #00             Wellbore Classification: OW             Status: PR - 1/5/2000             Measured TD: 6458 ft.

 Wellbore Data for Original WellboreWellbore Classification: OW        PR - 1/5/2000
Wellbore Permit
Permit #:000809 Expiration Date:8/2/2001
Proposed Depth/Form:6850 ft.
Surface Mineral Owner Same:Yes
Mineral Owner:FEESurface Owner:FEE
Unit: Unit Number: 
Formation And Spacing:Code: WMFK , Formation: WILLIAMS FORK , Order: 479-6 , Unit Acreage: 160, Drill Unit: NE4

Wellbore Completed
Completion Date:2/13/2001
Spud Date:1/19/2001Spud Date Is:ACTUAL
Measured TD:6458 ft.Measured PB depth:6350 ft.
True Vertical TD:True Vertical PB depth:
Log Types:DUAL INDUCTION SPECTRAL DENSITY DUAL SPACED NEUTRON
Casing:String Type: SURF, Hole Size: 13.5 in., Size: 9.625 in., Top: 0 ft., Depth: 323 ft., Weight: 36 , Citings Type: ACTUAL
Cement:Sacks: 180, Top: , Bottom: 323 ft., Determination Method:
Casing:String Type: 1ST, Hole Size: 7.875 in., Size: 4.5 in., Top: 0 ft., Depth: 6448 ft., Weight: 11.6 , Citings Type: ACTUAL
Cement:Sacks: 800, Top: 3700 ft., Bottom: 6447 ft., Determination Method:
FormationInterval TopLog BottomCoredDSTs
WASATCH G1854 ft.NN
FORT UNION2166 ft.NN
MESAVERDE3502 ft.NN
CAMEO COAL5957 ft.NN
ROLLINS6449 ft.NN

Formation WFCM                     Formation Classification:  OW                     Status:  PR - 1/5/2000                  Interval Top: 4904 ft.    Interval Bottom: 6302 ft.

 Completed Information for Formation WILLIAMS FORK - CAMEO
1st Production Date:N/AChoke Size:0.219 in.
Formation Name:WILLIAMS FORK - CAMEOCommingled:No
Production Method:FLOWING
Open Hole Completion:No
Formation Treatment
Treatment Date:2/13/2001
Treatment Summary:
Tubing Size:2.375 in.Tubing Setting Depth:6017 ft.
Tubing Packer Depth:Tubing Multiple Packer:
Open Hole Top:Open Hole Bottom:
Initial Test Data:
Test Date:7/13/2001Test Method:FLOWING
Hours Tested:24Gas Type:DRY
Gas Disposal:SOLD
Test TypeMeasure
BBLS_H2O 0
BBLS_OIL 0
CALC_BBLS_H2O 0
CALC_BBLS_OIL 0
CALC_MCF_GAS 846
CASING_PRESS 882
MCF_GAS 846
TUBING_PRESS 852
Perforation Data:
Interval Top:4904 ft.# Of Holes:40
Interval Bottom:6302 ft.Hole Size:
Primary Well Designation:
None      i
            All DesignationsDate
Reported PluggedN 
Out Of Service RepurposedN 
Out Of ServiceN 
Inactive ExceptionN 
Noticed InactiveN 
Defined InactiveN 
Low ProducingN 

BOE/MCFE/GOR Calculations
Production for Previous 12 Months
February 2025 - January 2026i
Total Oil Produced (Barrels)11
Total Gas Produced (MCF)6746
GOR613272
GOR DeterminationMCFE
Average BOE per Day3.211
Average MCFE per Day18.664

 Federal Financial Assurance  i 

 Tribal Well  i No