Skip to Main Content

COGIS

Facility Detail

COGIS - WELL SCOUT CARD

Click image to view related facilities. Related  Click image to view inspection information. InspClick image to view MIT information. MITClick image to access interactive map at well/facility location. GISClick image to view imaged documents for this well/facility. DocClick image to view imaged documents for this well/facility. COAClick image to view wellbore completion diagram. WellboreClick image to search for orders within this facility's section. OrdersClick image to view bradenhead scoutcard data. Bradenhead
 Surface Location
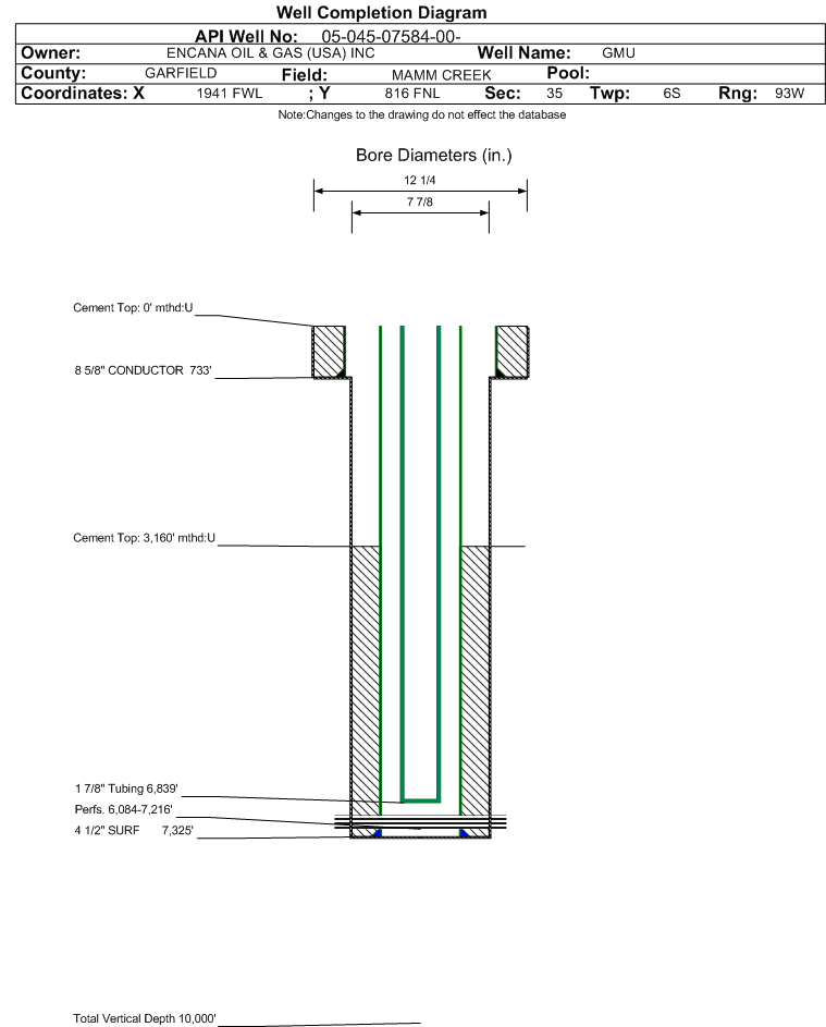
 API# 05-045-07584
Well Classification: GW Status: PA - 8/2/2022
Well Name/No:GMU #26-14 (C35)
(Click Well Name for Production Data)
Click Here for Transporter Gatherer Info
Operator:CAERUS PICEANCE LLC - 10456
(Click Operator Name for Company Detail Report)
Federal Or State Lease #:COC54737
Facility Status:PAStatus Date8/2/2022
FacilityID:257649LocationID:335359
County:GARFIELD #045Location:NENW 35 6S93W 6
Field:MAMM CREEK - #52500Elevation:5839 ft.
Basin:PICEANCE BASIN  
Planned Location:816FNL  1941 FWLLat/Long: 39.487820 / -107.744925Lat/Long Source: Calculated From Footages
As Drilled Location:Footages Not AvailableLat/Long: 39.488110 / -107.745180Lat/Long Source: Field Measured
 Wellbore And Formation Details -- select either a wellbore Or formation to expand.
 

Wellbore #00             Wellbore Classification: GW             Status: PA - 8/2/2022             Measured TD: 7325 ft.

 Wellbore Data for Original WellboreWellbore Classification: GW        PA - 8/2/2022
Wellbore Permit
Permit #:000744 Expiration Date:7/20/2001
Proposed Depth/Form:7100 ft.
Surface Mineral Owner Same:No
Mineral Owner:FEDERALSurface Owner:FEE
Unit:GRASS MESA UNIT Unit Number:COC56608X
Formation And Spacing:Code: WMFK , Formation: WILLIAMS FORK , Order: , Unit Acreage: 9473, Drill Unit: U
Casing:String Type: 1ST, Hole Size: 7.875 in., Size: 4.5 in., Top: , Depth: 7363 ft., Weight: 11.6 , Citings Type: PLANNED
Cement:Sacks: 903, Top: 3400 ft., Bottom: 7363 ft.

Wellbore Completed
Completion Date:5/20/2001
Spud Date:1/15/2001Spud Date Is:ACTUAL
Measured TD:7325 ft.Measured PB depth:7275 ft.
True Vertical TD:True Vertical PB depth:
Top PZ Location:Sec: Twp: Footage: 4854 FSL  1975 FWL
Bottom Hole Location:Sec: Twp: Footage: 660 FNL  1980 FWL
Log Types:CBL/GR/CCL/RST
Casing:String Type: SURF, Hole Size: 12.25 in., Size: 8.625 in., Top: 0 ft., Depth: 733 ft., Weight: 24# , Citings Type: ACTUAL
Cement:Sacks: 360, Top: 0 ft., Bottom: 733 ft., Determination Method: CALC
Casing:String Type: 1ST, Hole Size: 7.875 in., Size: 4.5 in., Top: 0 ft., Depth: 7325 ft., Weight: 11.6# , Citings Type: ACTUAL
Cement:Sacks: 900, Top: 3160 ft., Bottom: 7325 ft., Determination Method: CBL
FormationInterval TopLog BottomCoredDSTs
WASATCH0 ft.NN
WILLIAMS FORK4531 ft.NN

Formation WMFK                     Formation Classification:  GW                     Status:  AB - 8/2/2022                  Interval Top: 6084 ft.    Interval Bottom: 7216 ft.

 Completed Information for Formation WILLIAMS FORK
1st Production Date:4/12/2001Choke Size:0.375 in.
Formation Name:WILLIAMS FORKCommingled:No
Production Method:FLOWING
Open Hole Completion:No
Formation Treatment
Treatment Date:5/20/2001
Treatment Summary:STABE1:6984'-7216'.ABORTED AFTER PUMPING 450 BBL VIKING 25 DUE TO LIMITED PERFS OPEN, 36 HOLES. 2ND ATTEMPT:PUMPED STAGE 1 ACID, 1962 BBL VIKING 25, 221,000# 20/40 WHITE SAND. STAGE 2: 6759'-6944',1652 BBL VIKING 25, 185,000# 20/40 WHITE SND,50 HOLES(CONT
Tubing Size:1.9 in.Tubing Setting Depth:6839 ft.
Tubing Packer Depth:Tubing Multiple Packer:
Open Hole Top:Open Hole Bottom:
Initial Test Data:
Test Date:4/13/2001Test Method:FLOWING
Hours Tested:24Gas Type:DRY
Gas Disposal:SOLD
Test TypeMeasure
BBLS_H2O 28
BBLS_OIL 3
BTU_GAS 1170
CALC_BBLS_H2O 28
CALC_BBLS_OIL 3
CALC_GOR 254000
CALC_MCF_GAS 762
CASING_PRESS 270
MCF_GAS 762
Perforation Data:
Interval Top:6084 ft.# Of Holes:210
Interval Bottom:7216 ft.Hole Size:
Primary Well Designation:
None      i
            All DesignationsDate
Reported PluggedY08/02/2022
Out Of Service RepurposedN 
Out Of ServiceN 
Inactive ExceptionN 
Noticed InactiveN 
Defined InactiveN 
Low ProducingN 

BOE/MCFE/GOR Calculations
Production for Previous 12 Months
October 2024 - September 2025i
Total Oil Produced (Barrels)0
Total Gas Produced (MCF)0
GOR
GOR Determination 
Average BOE per Day0.000
Average MCFE per Day0.000

 Federal Financial Assurance  i Y

 Tribal Well  i No