Skip to Main Content

COGIS

Facility Detail

COGIS - WELL SCOUT CARD

Click image to view related facilities. Related  Click image to view inspection information. InspClick image to view MIT information. MITClick image to access interactive map at well/facility location. GISClick image to view imaged documents for this well/facility. DocClick image to view imaged documents for this well/facility. COAClick image to view wellbore completion diagram. WellboreClick image to search for orders within this facility's section. OrdersClick image to view bradenhead scoutcard data. Bradenhead
 Surface Location
 API# 05-045-07548
Well Classification: GW Status: PR - 5/30/2000
Well Name/No:FEDERAL #GM 21-10
(Click Well Name for Production Data)
Click Here for Transporter Gatherer Info
Operator:TEP ROCKY MOUNTAIN LLC - 96850
(Click Operator Name for Company Detail Report)
Federal Or State Lease #:C24603
Facility Status:PRStatus Date5/30/2000
FacilityID:257367LocationID:324107
County:GARFIELD #045Location:NENW 10 7S96W 6
Field:GRAND VALLEY - #31290Elevation:5925 ft.
Basin:PICEANCE BASIN  
Planned Location:966FNL  2302 FWLLat/Long: 39.456079 / -108.095256Lat/Long Source: Calculated From Footages
As Drilled Location:Footages Not AvailableLat/Long: 39.456148 / -108.095244Lat/Long Source: Field Measured
 Wellbore And Formation Details -- select either a wellbore Or formation to expand.
 

Wellbore #00             Wellbore Classification: GW             Status: PR - 5/15/2000             Measured TD: 6490 ft.

 Wellbore Data for Original WellboreWellbore Classification: GW        PR - 5/15/2000
Wellbore PermitDRIFTED
Permit #:000529 Expiration Date:5/29/2001
Proposed Depth/Form:6535 ft.
Surface Mineral Owner Same:Yes
Mineral Owner:FEDERALSurface Owner:FEDERAL
Unit: Unit Number: 
Formation And Spacing:Code: WMFK , Formation: WILLIAMS FORK , Order: 510-1 , Unit Acreage: , Drill Unit:

Wellbore Completed
Completion Date:9/12/2000
Spud Date:7/20/2000Spud Date Is:ACTUAL
Measured TD:6490 ft.Measured PB depth:
True Vertical TD:True Vertical PB depth:
Log Types:DUAL IND.,SPECTRUAL DEN.DUAL SPACED NEUTRON,CBL
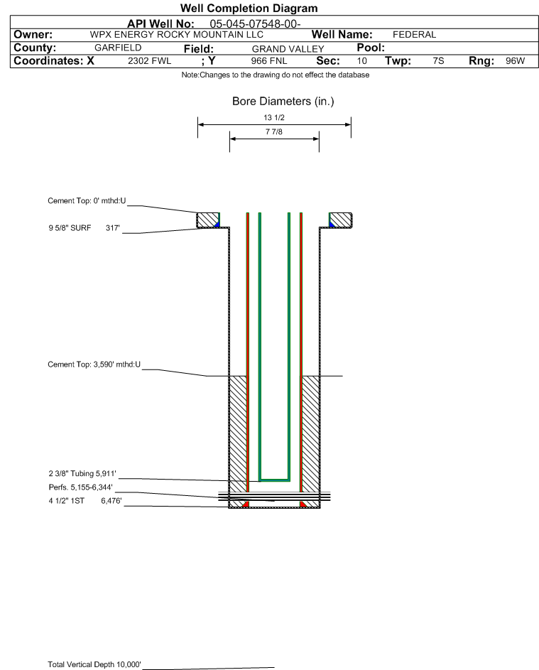
Casing:String Type: SURF, Hole Size: 13.5 in., Size: 9.625 in., Top: 0 ft., Depth: 317 ft., Weight: 32.3 , Citings Type: ACTUAL
Cement:Sacks: 200, Top: 0 ft., Bottom: 317 ft., Determination Method:
Casing:String Type: 1ST, Hole Size: 7.875 in., Size: 4.5 in., Top: 0 ft., Depth: 6476 ft., Weight: 11.6 , Citings Type: ACTUAL
Cement:Sacks: 875, Top: 3590 ft., Bottom: 6476 ft., Determination Method: CBL
FormationInterval TopLog BottomCoredDSTs
WASATCH G1968 ft.NN
FORT UNION2239 ft.NN
MESAVERDE3575 ft.NN
CAMEO COAL6043 ft.NN
ROLLINS6484 ft.NN

Formation WFCM                     Formation Classification:  GW                     Status:  PR - 5/15/2000                 Interval Top: 5155 ft.    Interval Bottom: 6344 ft.

 Completed Information for Formation WILLIAMS FORK - CAMEO
1st Production Date:N/AChoke Size: 
Formation Name:WILLIAMS FORK - CAMEOCommingled:No
Production Method:FLOWING
Open Hole Completion:No
Formation Treatment
Treatment Date:9/12/2000
Treatment Summary:
Tubing Size:2.375 in.Tubing Setting Depth:5911 ft.
Tubing Packer Depth:Tubing Multiple Packer:
Open Hole Top:Open Hole Bottom:
Initial Test Data:
Test Date:9/17/2000Test Method:FLOWING
Hours Tested:24Gas Type:
Gas Disposal:SOLD
Test TypeMeasure
BBLS_H2O 10
BBLS_OIL 0
CALC_BBLS_H2O 10
CALC_BBLS_OIL 0
CALC_MCF_GAS 975
CASING_PRESS 1364
MCF_GAS 975
TUBING_PRESS 1292
Perforation Data:
Interval Top:5155 ft.# Of Holes:48
Interval Bottom:6344 ft.Hole Size:
Primary Well Designation:
None      i
            All DesignationsDate
Reported PluggedN 
Out Of Service RepurposedN 
Out Of ServiceN 
Inactive ExceptionN 
Noticed InactiveN 
Defined InactiveN 
Low ProducingN 

BOE/MCFE/GOR Calculations
Production for Previous 12 Months
October 2024 - September 2025i
Total Oil Produced (Barrels)12
Total Gas Produced (MCF)6020
GOR501666
GOR DeterminationMCFE
Average BOE per Day2.874
Average MCFE per Day16.690

 Federal Financial Assurance  i Y

 Tribal Well  i No