Skip to Main Content

COGIS

Facility Detail

COGIS - WELL SCOUT CARD

Click image to view related facilities. Related  Click image to view inspection information. InspClick image to view MIT information. MITClick image to access interactive map at well/facility location. GISClick image to view imaged documents for this well/facility. DocClick image to view imaged documents for this well/facility. COAClick image to view wellbore completion diagram. WellboreClick image to search for orders within this facility's section. OrdersClick image to view bradenhead scoutcard data. Bradenhead
 Surface Location
 API# 05-045-07508
Well Classification: GW Status: PR - 6/12/2000
Well Name/No:UNOCAL #GM 34-1
(Click Well Name for Production Data)
Click Here for Transporter Gatherer Info
Operator:TEP ROCKY MOUNTAIN LLC - 96850
(Click Operator Name for Company Detail Report)
Federal Or State Lease #:
Facility Status:PRStatus Date6/12/2000
FacilityID:257065LocationID:334905
County:GARFIELD #045Location:SWSE 1 7S96W 6
Field:GRAND VALLEY - #31290Elevation:5461 ft.
Basin:PICEANCE BASIN  
Planned Location:1291FSL  2384 FELLat/Long: 39.463179 / -108.057405Lat/Long Source: Calculated From Footages
As Drilled Location:Footages Not AvailableLat/Long: 39.463249 / -108.057723Lat/Long Source: Field Measured
 Wellbore And Formation Details -- select either a wellbore Or formation to expand.
 

Wellbore #00             Wellbore Classification: GW             Status: PR - 6/12/2000             Measured TD: 6576 ft.

 Wellbore Data for Original WellboreWellbore Classification: GW        PR - 6/12/2000
Wellbore Permit
Permit #:000308 Expiration Date:4/3/2001
Proposed Depth/Form:6710 ft.
Surface Mineral Owner Same:Yes
Mineral Owner:FEESurface Owner:FEE
Unit: Unit Number: 
Formation And Spacing:Code: WFCM , Formation: WILLIAMS FORK - CAMEO , Order: 139-28 , Unit Acreage: 320, Drill Unit: S2

Wellbore Completed
Completion Date:6/16/2000
Spud Date:4/28/2000Spud Date Is:ACTUAL
Measured TD:6576 ft.Measured PB depth:
True Vertical TD:True Vertical PB depth:
Log Types:DUAL IND SPEC DENS DUAL SPA NEUTON
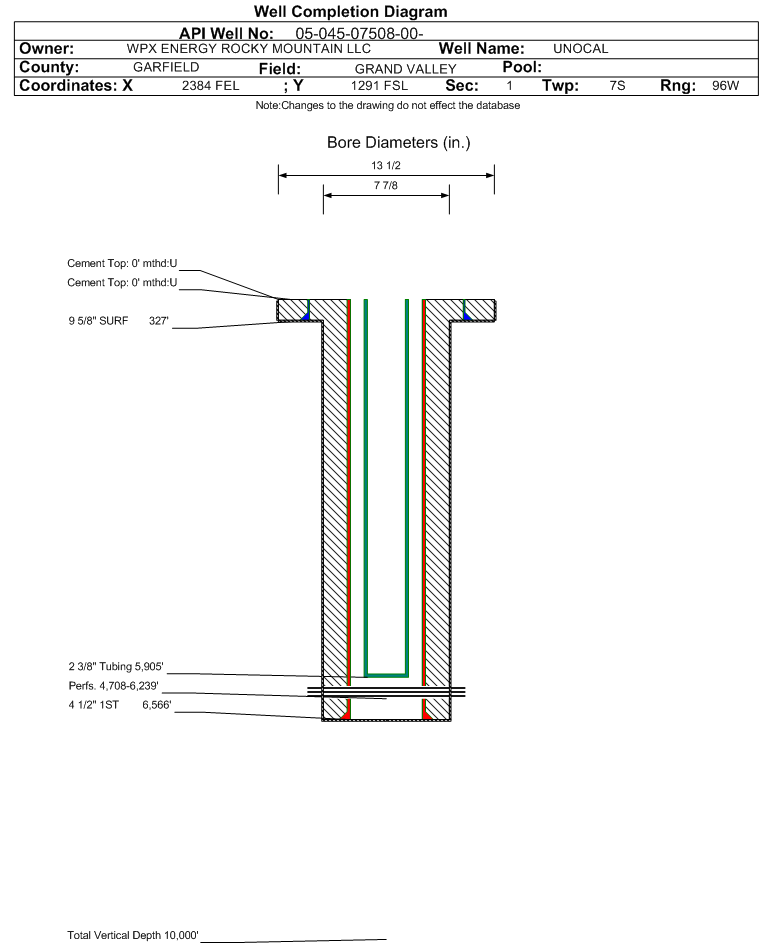
Casing:String Type: SURF, Hole Size: 13.5 in., Size: 9.625 in., Top: , Depth: 327 ft., Weight: 36 , Citings Type: ACTUAL
Cement:Sacks: 200, Top: 0 ft., Bottom: 327 ft., Determination Method:
Casing:String Type: 1ST, Hole Size: 7.875 in., Size: 4.5 in., Top: , Depth: 6566 ft., Weight: 11.6 , Citings Type: ACTUAL
Cement:Sacks: 840, Top: , Bottom: 6566 ft., Determination Method:
FormationInterval TopLog BottomCoredDSTs
WASATCH G1769 ft.NN
MESAVERDE3606 ft.NN
CAMEO6093 ft.NN

Formation WFCM                     Formation Classification:  GW                     Status:  PR - 6/12/2000                 Interval Top: 4708 ft.    Interval Bottom: 6239 ft.

 Completed Information for Formation WILLIAMS FORK - CAMEO
1st Production Date:6/16/2000Choke Size: 
Formation Name:WILLIAMS FORK - CAMEOCommingled:No
Production Method:FLOWING
Open Hole Completion:No
Formation Treatment
Treatment Date:6/16/2000
Treatment Summary:
Tubing Size:2.375 in.Tubing Setting Depth:5905 ft.
Tubing Packer Depth:Tubing Multiple Packer:
Open Hole Top:Open Hole Bottom:
Initial Test Data:
Test Date:6/24/2000Test Method:FLOWING
Hours Tested:24Gas Type:
Gas Disposal:SOLD
Test TypeMeasure
BBLS_H2O 10
CALC_BBLS_H2O 1270
CALC_MCF_GAS 1365
CASING_PRESS 1365
MCF_GAS 1056
TUBING_PRESS 1270
Perforation Data:
Interval Top:4708 ft.# Of Holes:48
Interval Bottom:6239 ft.Hole Size:
Primary Well Designation:
None      i
            All DesignationsDate
Reported PluggedN 
Out Of Service RepurposedN 
Out Of ServiceN 
Inactive ExceptionN 
Noticed InactiveN 
Defined InactiveN 
Low ProducingN 

BOE/MCFE/GOR Calculations
Production for Previous 12 Months
October 2024 - September 2025i
Total Oil Produced (Barrels)12
Total Gas Produced (MCF)6122
GOR510166
GOR DeterminationMCFE
Average BOE per Day2.929
Average MCFE per Day16.970

 Federal Financial Assurance  i 

 Tribal Well  i No