Skip to Main Content

COGIS

Facility Detail

COGIS - WELL SCOUT CARD

Click image to view related facilities. Related  Click image to view inspection information. InspClick image to view MIT information. MITGIS Map GISOld GIS Map Old GISClick image to view imaged documents for this well/facility. DocClick image to view imaged documents for this well/facility. COAClick image to view wellbore completion diagram. WellboreClick image to search for orders within this facility's section. OrdersClick image to view bradenhead scoutcard data. Bradenhead
 Surface Location
 API# 05-045-07500
Well Classification: GW Status: PR - 3/6/2000
Well Name/No:UNOCAL #GM 22-34
(Click Well Name for Production Data)
Click Here for Transporter Gatherer Info
Operator:TEP ROCKY MOUNTAIN LLC - 96850
(Click Operator Name for Company Detail Report)
Federal Or State Lease #:
Facility Status:PRStatus Date3/6/2000
FacilityID:256868LocationID:335366
County:GARFIELD #045Location:SENW 34 6S96W 6
Field:GRAND VALLEY - #31290Elevation:5452 ft.
Basin:PICEANCE BASIN  
Planned Location:2031FNL  2427 FWLLat/Long: 39.482178 / -108.095416Lat/Long Source: Calculated From Footages
As Drilled Location:Footages Not AvailableLat/Long: 39.482375 / -108.095363Lat/Long Source: Field Measured
 Wellbore And Formation Details -- select either a wellbore Or formation to expand.
 

Wellbore #00             Wellbore Classification: GW             Status: PR - 12/14/1999             Measured TD: 6450 ft.

 Wellbore Data for Original WellboreWellbore Classification: GW        PR - 12/14/1999
Wellbore Permit
Permit #:000201 Expiration Date:3/5/2001
Proposed Depth/Form:6690 ft.
Surface Mineral Owner Same:Yes
Mineral Owner:FEESurface Owner:FEE
Unit: Unit Number: 
Formation And Spacing:Code: WMFK , Formation: WILLIAMS FORK , Order: 479-6 , Unit Acreage: 320, Drill Unit: N2

Wellbore Completed
Completion Date:8/11/2000
Spud Date:6/26/2000Spud Date Is:ACTUAL
Measured TD:6450 ft.Measured PB depth:
True Vertical TD:True Vertical PB depth:
Log Types:DUAL INDUCTION SPECTRAL DENSITY DUAL SPACED NEUTRON
Log Types:DUAL IND SPEC DENS DUAL SPACED NUETRON
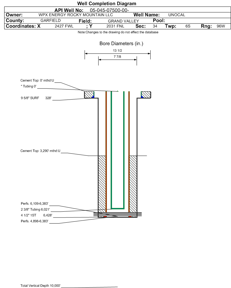
Casing:String Type: SURF, Hole Size: 13.5 in., Size: 9.625 in., Top: , Depth: 328 ft., Weight: 36 , Citings Type: ACTUAL
Cement:Sacks: 200, Top: 0 ft., Bottom: 328 ft., Determination Method:
Casing:String Type: 1ST, Hole Size: 7.875 in., Size: 4.5 in., Top: , Depth: 6428 ft., Weight: 11.6 , Citings Type: ACTUAL
Cement:Sacks: 1045, Top: 3290 ft., Bottom: 6428 ft., Determination Method:
FormationInterval TopLog BottomCoredDSTs
WASATCH G1788 ft.NN
FORT UNION2075 ft.NN
MESAVERDE3543 ft.NN
CAMEO COAL6102 ft.NN

Formation WMFK                     Formation Classification:  GW                     Status:  CM - 6/1/2000                  Interval Top: 6109 ft.    Interval Bottom: 6383 ft.

 Completed Information for Formation WILLIAMS FORK
1st Production Date:N/AChoke Size: 
Formation Name:WILLIAMS FORKCommingled:Yes
Production Method:
Open Hole Completion:No
Formation Treatment
Treatment Date:8/11/2000
Treatment Summary:(A)1000 GALS 7 1/2% HCL; 201,120# 20/40 SAND; 1750 BBLS GEL.;(B)TOP 5680' BOTTOM 6028'/18 HOLES;750 GAL 7 1/2% HCL;451,200# 20/40 SAND; 3803 BBLS GEL (CON'T)
Tubing Size:Tubing Setting Depth:
Tubing Packer Depth:Tubing Multiple Packer:
Open Hole Top:Open Hole Bottom:
No Initial Test Data was found for formation WMFK.
Perforation Data:
Interval Top:6109 ft.# Of Holes:16
Interval Bottom:6383 ft.Hole Size:

Formation WFCM                     Formation Classification:  GW                     Status:  PR - 12/14/1999                Interval Top: 4898 ft.    Interval Bottom: 6383 ft.

 Completed Information for Formation WILLIAMS FORK - CAMEO
1st Production Date:N/AChoke Size: 
Formation Name:WILLIAMS FORK - CAMEOCommingled:No
Production Method:FLOWING
Open Hole Completion:No
Formation Treatment
Treatment Date:8/11/2000
Treatment Summary:
Tubing Size:2.375 in.Tubing Setting Depth:6021 ft.
Tubing Packer Depth:Tubing Multiple Packer:
Open Hole Top:Open Hole Bottom:
Initial Test Data:
Test Date:8/23/2000Test Method:
Hours Tested:24Gas Type:
Gas Disposal:SOLD
Test TypeMeasure
CALC_BBLS_H2O 10
CALC_MCF_GAS 1264
CASING_PRESS 1966
TUBING_PRESS 1913
Perforation Data:
Interval Top:4898 ft.# Of Holes:68
Interval Bottom:6383 ft.Hole Size:
Primary Well Designation:
None      i
            All DesignationsDate
Reported PluggedN 
Out Of Service RepurposedN 
Out Of ServiceN 
Inactive ExceptionN 
Noticed InactiveN 
Defined InactiveN 
Low ProducingN 

BOE/MCFE/GOR Calculations
Production for Previous 12 Months
February 2025 - January 2026i
Total Oil Produced (Barrels)24
Total Gas Produced (MCF)18604
GOR775166
GOR DeterminationMCFE
Average BOE per Day8.854
Average MCFE per Day51.341

 Federal Financial Assurance  i 

 Tribal Well  i No