Skip to Main Content

COGIS

Facility Detail

COGIS - WELL SCOUT CARD

Click image to view related facilities. Related  Click image to view inspection information. InspClick image to view MIT information. MITGIS Map GISOld GIS Map Old GISClick image to view imaged documents for this well/facility. DocClick image to view imaged documents for this well/facility. COAClick image to view wellbore completion diagram. WellboreClick image to search for orders within this facility's section. OrdersClick image to view bradenhead scoutcard data. Bradenhead
 Surface Location
 API# 05-045-07449
Well Classification: GW Status: PR - 11/19/1999
Well Name/No:PUCKETT #GM13-28
(Click Well Name for Production Data)
Click Here for Transporter Gatherer Info
Operator:TEP ROCKY MOUNTAIN LLC - 96850
(Click Operator Name for Company Detail Report)
Federal Or State Lease #:
Facility Status:PRStatus Date11/19/1999
FacilityID:256386LocationID:335352
County:GARFIELD #045Location:NWSW 28 6S96W 6
Field:GRAND VALLEY - #31290Elevation:5447 ft.
Basin:PICEANCE BASIN  
Planned Location:2034FSL  402 FWLLat/Long: 39.493268 / -108.121667Lat/Long Source: Calculated From Footages
As Drilled Location:Footages Not AvailableLat/Long: 39.493394 / -108.121625Lat/Long Source: Field Measured
 Wellbore And Formation Details -- select either a wellbore Or formation to expand.
 

Wellbore #00             Wellbore Classification: GW             Status: PR - 11/19/1999             Measured TD: 6579 ft.

 Wellbore Data for Original WellboreWellbore Classification: GW        PR - 11/19/1999
Wellbore Permit
Permit #:990885 Expiration Date:11/18/2000
Proposed Depth/Form:6650 ft.
Surface Mineral Owner Same:Yes
Mineral Owner:FEESurface Owner:FEE
Unit: Unit Number: 
Formation And Spacing:Code: WFCM , Formation: WILLIAMS FORK - CAMEO , Order: 510-1 , Unit Acreage: 320, Drill Unit: W2

Wellbore Completed
Completion Date:3/24/2000
Spud Date:2/12/2000Spud Date Is:ACTUAL
Measured TD:6579 ft.Measured PB depth:
True Vertical TD:True Vertical PB depth:
Log Types:DUAL INDUCTION SPECTRAL DENSITY DUAL SPACED NEUTRON
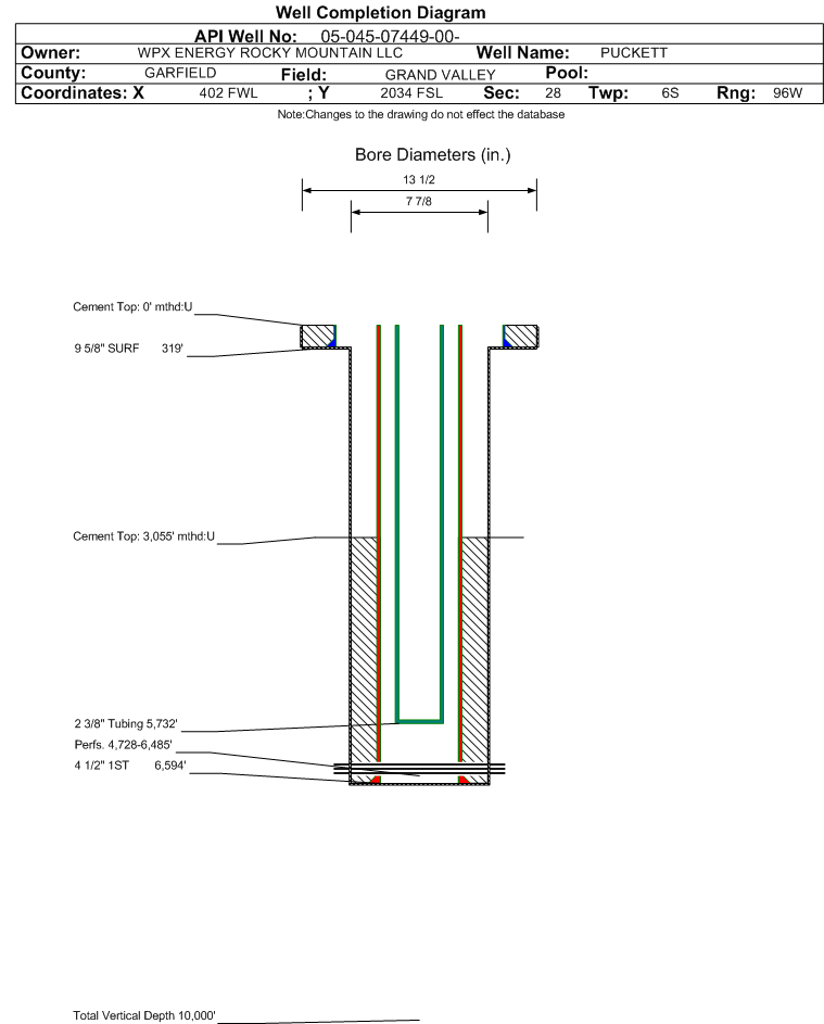
Casing:String Type: SURF, Hole Size: 13.5 in., Size: 9.625 in., Top: , Depth: 319 ft., Weight: 36 , Citings Type: ACTUAL
Cement:Sacks: 200, Top: , Bottom: 319 ft., Determination Method:
Casing:String Type: 1ST, Hole Size: 7.875 in., Size: 4.5 in., Top: , Depth: 6594 ft., Weight: 11.6 , Citings Type: ACTUAL
Cement:Sacks: 775, Top: 3055 ft., Bottom: 6593 ft., Determination Method: CBL
FormationInterval TopLog BottomCoredDSTs
WASATCH G1829 ft.NN
FORT UNION2186 ft.NN
MESAVERDE3519 ft.NN
CAMEO COAL6014 ft.NN
ROLLINS6502 ft.NN

Formation WFCM                     Formation Classification:  GW                     Status:  PR - 11/19/1999                Interval Top: 4728 ft.    Interval Bottom: 6485 ft.

 Completed Information for Formation WILLIAMS FORK - CAMEO
1st Production Date:N/AChoke Size: 
Formation Name:WILLIAMS FORK - CAMEOCommingled:No
Production Method:FLOWING
Open Hole Completion:No
Formation Treatment
Treatment Date:3/24/2000
Treatment Summary:
Tubing Size:2.375 in.Tubing Setting Depth:5732 ft.
Tubing Packer Depth:Tubing Multiple Packer:
Open Hole Top:Open Hole Bottom:
Initial Test Data:
Test Date:4/10/2000Test Method:
Hours Tested:24Gas Type:DRY
Gas Disposal:SOLD
Test TypeMeasure
BBLS_H2O 40
CALC_BBLS_H2O 40
CALC_MCF_GAS 946
CASING_PRESS 987
MCF_GAS 946
TUBING_PRESS 859
Perforation Data:
Interval Top:4728 ft.# Of Holes:66
Interval Bottom:6485 ft.Hole Size:
Primary Well Designation:
None      i
            All DesignationsDate
Reported PluggedN 
Out Of Service RepurposedN 
Out Of ServiceN 
Inactive ExceptionN 
Noticed InactiveN 
Defined InactiveN 
Low ProducingN 

BOE/MCFE/GOR Calculations
Production for Previous 12 Months
February 2025 - January 2026i
Total Oil Produced (Barrels)6
Total Gas Produced (MCF)4633
GOR772166
GOR DeterminationMCFE
Average BOE per Day2.205
Average MCFE per Day12.823

 Federal Financial Assurance  i 

 Tribal Well  i No