Skip to Main Content

COGIS

Facility Detail

COGIS - WELL SCOUT CARD

Click image to view related facilities. Related  Click image to view inspection information. InspClick image to view MIT information. MITClick image to access interactive map at well/facility location. GISClick image to view imaged documents for this well/facility. DocClick image to view imaged documents for this well/facility. COAClick image to view wellbore completion diagram. WellboreClick image to search for orders within this facility's section. OrdersClick image to view bradenhead scoutcard data. Bradenhead
 Surface Location
 API# 05-045-07419
Well Classification: OW Status: PR - 12/31/2005
Well Name/No:UNOCAL #GM 11-34
(Click Well Name for Production Data)
Click Here for Transporter Gatherer Info
Operator:TEP ROCKY MOUNTAIN LLC - 96850
(Click Operator Name for Company Detail Report)
Federal Or State Lease #:
Facility Status:PRStatus Date12/31/2005
FacilityID:257640LocationID:335408
County:GARFIELD #045Location:NWNW 34 6S96W 6
Field:GRAND VALLEY - #31290Elevation:5570 ft.
Basin:PICEANCE BASIN  
Planned Location:307FNL  1150 FWLLat/Long: 39.486908 / -108.100006Lat/Long Source: Calculated From Footages
 Wellbore And Formation Details -- select either a wellbore Or formation to expand.
 

Wellbore #00             Wellbore Classification: OW             Status: PR - 12/31/2005             Measured TD: 6744 ft.

 Wellbore Data for Original WellboreWellbore Classification: OW        PR - 12/31/2005
Wellbore Permit
Permit #:990579 Expiration Date:8/19/2000
Proposed Depth/Form:6825 ft.
Surface Mineral Owner Same:Yes
Mineral Owner:FEESurface Owner:FEE
Unit: Unit Number: 
Formation And Spacing:Code: WMFK , Formation: WILLIAMS FORK , Order: 479-6 , Unit Acreage: 320, Drill Unit: N2

Wellbore Completed
Completion Date:1/2/2000
Spud Date:11/7/1999Spud Date Is:ACTUAL
Measured TD:6744 ft.Measured PB depth:4700 ft.
True Vertical TD:True Vertical PB depth:
Log Types:DUAL INDUCTION SPECIAL DENSITY DUAL SPACED NEU.CBL
Log Types:DUAL IND SPECTRAL DEN DUAL SPACED NEU,CBL
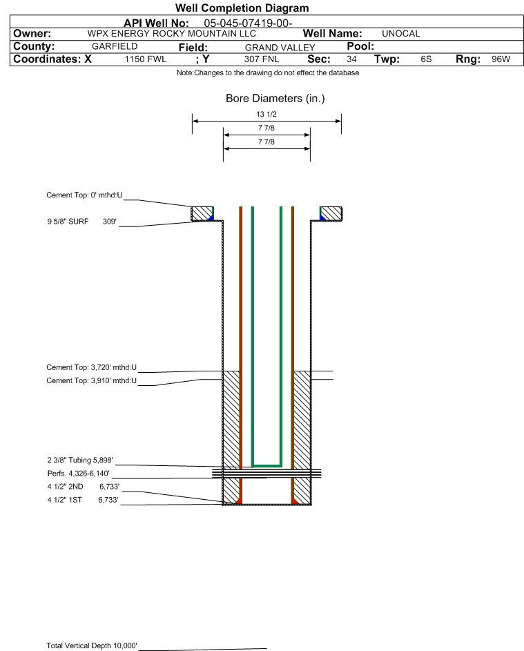
Casing:String Type: SURF, Hole Size: 13.5 in., Size: 9.625 in., Top: , Depth: 309 ft., Weight: 36 , Citings Type: ACTUAL
Cement:Sacks: 190, Top: 0 ft., Bottom: 309 ft., Determination Method:
Casing:String Type: 1ST, Hole Size: 7.875 in., Size: 4.5 in., Top: , Depth: 6733 ft., Weight: 11.6 , Citings Type: ACTUAL
Cement:Sacks: 1250, Top: 3910 ft., Bottom: 6732 ft., Determination Method: CBL
Casing:String Type: 2ND, Hole Size: 7.875 in., Size: 4.5 in., Top: , Depth: 6733 ft., Weight: 11.6 , Citings Type: ACTUAL
Cement:Sacks: 1250, Top: 3720 ft., Bottom: 6732 ft., Determination Method: CBL
FormationInterval TopLog BottomCoredDSTs
WASATCH1950 ft.NN
WASATCH G1950 ft.NN
MESAVERDE3626 ft.NN
CAMEO6278 ft.NN
CAMEO COAL6278 ft.NN
ROLLINS6710 ft.NN

Formation WMFK                     Formation Classification:  OW                     Status:  PR - 12/31/2005                Interval Top: 4326 ft.    Interval Bottom: 6140 ft.

 Completed Information for Formation WILLIAMS FORK
1st Production Date:1/3/2006Choke Size:0.375 in.
Formation Name:WILLIAMS FORKCommingled:No
Production Method:
Open Hole Completion:No
Formation Treatment
Treatment Date:1/12/2000
Treatment Summary:3,326 GALS 7.5% HCL; 1,224,500# 20/40 SAND; 8,914 BBLS SLICKWATER (SUMMARY)
Tubing Size:2.375 in.Tubing Setting Depth:5898 ft.
Tubing Packer Depth:Tubing Multiple Packer:
Open Hole Top:Open Hole Bottom:
Initial Test Data:
Test Date:12/31/2005Test Method:FLOWING
Hours Tested:10Gas Type:DRY
Gas Disposal:SOLD
Test TypeMeasure
BBLS_H2O 0
BBLS_OIL 0
CALC_BBLS_H2O 0
CALC_BBLS_OIL 0
CALC_MCF_GAS 333
CASING_PRESS 485
MCF_GAS 333
TUBING_PRESS 324
Perforation Data:
Interval Top:4326 ft.# Of Holes:76
Interval Bottom:6140 ft.Hole Size:0.34 in.
Primary Well Designation:
None      i
            All DesignationsDate
Reported PluggedN 
Out Of Service RepurposedN 
Out Of ServiceN 
Inactive ExceptionN 
Noticed InactiveN 
Defined InactiveN 
Low ProducingN 

BOE/MCFE/GOR Calculations
Production for Previous 12 Months
November 2024 - October 2025i
Total Oil Produced (Barrels)3
Total Gas Produced (MCF)4453
GOR1484333
GOR DeterminationMCFE
Average BOE per Day2.113
Average MCFE per Day12.251

 Federal Financial Assurance  i 

 Tribal Well  i No