Skip to Main Content

COGIS

Facility Detail

COGIS - WELL SCOUT CARD

Click image to view related facilities. Related  Click image to view inspection information. InspClick image to view MIT information. MITClick image to access interactive map at well/facility location. GISClick image to view imaged documents for this well/facility. DocClick image to view imaged documents for this well/facility. COAClick image to view wellbore completion diagram. WellboreClick image to search for orders within this facility's section. OrdersClick image to view bradenhead scoutcard data. Bradenhead
 Surface Location
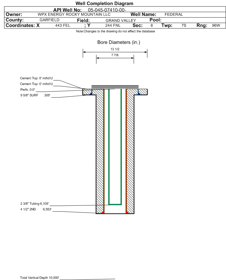
 API# 05-045-07410
Well Classification: GW Status: PR - 8/2/2001
Well Name/No:FEDERAL #GM 41-8
(Click Well Name for Production Data)
Click Here for Transporter Gatherer Info
Operator:TEP ROCKY MOUNTAIN LLC - 96850
(Click Operator Name for Company Detail Report)
Federal Or State Lease #:
Facility Status:PRStatus Date8/2/2001
FacilityID:199991LocationID:334794
County:GARFIELD #045Location:NENE 8 7S96W 6
Field:GRAND VALLEY - #31290Elevation:6055 ft.
Basin:PICEANCE BASIN  
Planned Location:244FNL  443 FELLat/Long: 39.458289 / -108.123947Lat/Long Source: Calculated From Footages
As Drilled Location:Footages Not AvailableLat/Long: 39.458358 / -108.123473Lat/Long Source: Field Measured
 Wellbore And Formation Details -- select either a wellbore Or formation to expand.
 

Wellbore #00             Wellbore Classification: GW             Status: PR - 8/2/2001             Measured TD: 6562 ft.

 Wellbore Data for Original WellboreWellbore Classification: GW        PR - 8/2/2001
Wellbore Permit
Permit #:990518 Expiration Date:7/22/2000
Proposed Depth/Form:
Surface Mineral Owner Same:Not available
Mineral Owner:FEDERALSurface Owner:Not available
Unit: Unit Number: 
Formation And Spacing:Code: WFCM , Formation: WILLIAMS FORK - CAMEO , Order: 510-1 , Unit Acreage: 320, Drill Unit: E2

Wellbore Completed
Completion Date:N/A
Spud Date:8/16/1999Spud Date Is:ACTUAL
Measured TD:6562 ft.Measured PB depth:
True Vertical TD:True Vertical PB depth:
Log Types:DISDDSN
Casing:String Type: SURF, Hole Size: 13.5 in., Size: 9.625 in., Top: , Depth: 305 ft., Weight: 36 , Citings Type: ACTUAL
Cement:Sacks: 190, Top: 0 ft., Bottom: 305 ft., Determination Method: CALC
Casing:String Type: 2ND, Hole Size: 7.875 in., Size: 4.5 in., Top: , Depth: 6553 ft., Weight: 11.6 , Citings Type: ACTUAL
Cement:Sacks: 845, Top: , Bottom: , Determination Method:
FormationInterval TopLog BottomCoredDSTs
WASATCH G1810 ft.NN
MESAVERDE3537 ft.NN
CAMEO COAL5985 ft.NN
ROLLINS6472 ft.NN

Formation CMEO                     Formation Classification:  GW                     Status:  CM - 8/2/2001

 Completed Information for Formation CAMEO
1st Production Date:N/AChoke Size: 
Formation Name:CAMEOCommingled:Yes
Production Method:
Open Hole Completion:
Tubing Size:Tubing Setting Depth:
Tubing Packer Depth:Tubing Multiple Packer:
Open Hole Top:Open Hole Bottom:
No Initial Test Data was found for formation CMEO.
No Perforation Data was found for formation CMEO.

Formation WFCM                     Formation Classification:  GW                     Status:  PR - 8/2/2001

 Completed Information for Formation WILLIAMS FORK - CAMEO
1st Production Date:N/AChoke Size: 
Formation Name:WILLIAMS FORK - CAMEOCommingled:Yes
Production Method:FLOWING
Open Hole Completion:No
Formation Treatment
Treatment Date:10/11/2000
Treatment Summary:
Tubing Size:2.375 in.Tubing Setting Depth:6109 ft.
Tubing Packer Depth:Tubing Multiple Packer:
Open Hole Top:Open Hole Bottom:
Initial Test Data:
Test Date:10/11/2000Test Method:FLOWING
Hours Tested:Gas Type:
Gas Disposal:SOLD
Test TypeMeasure
BBLS_H2O 5
CALC_BBLS_H2O 5
CALC_BBLS_OIL 0
CALC_MCF_GAS 1389
MCF_GAS 1389
TUBING_PRESS 1364
Perforation Data:
Interval Top:# Of Holes:
Interval Bottom:Hole Size:

Formation WMFK                     Formation Classification:  GW                     Status:  CM - 8/2/2001

 Completed Information for Formation WILLIAMS FORK
1st Production Date:N/AChoke Size: 
Formation Name:WILLIAMS FORKCommingled:
Production Method:
Open Hole Completion:
Tubing Size:Tubing Setting Depth:
Tubing Packer Depth:Tubing Multiple Packer:
Open Hole Top:Open Hole Bottom:
No Initial Test Data was found for formation WMFK.
No Perforation Data was found for formation WMFK.
Primary Well Designation:
None      i
            All DesignationsDate
Reported PluggedN 
Out Of Service RepurposedN 
Out Of ServiceN 
Inactive ExceptionN 
Noticed InactiveN 
Defined InactiveN 
Low ProducingN 

BOE/MCFE/GOR Calculations
Production for Previous 12 Months
October 2024 - September 2025i
Total Oil Produced (Barrels)12
Total Gas Produced (MCF)10158
GOR846500
GOR DeterminationMCFE
Average BOE per Day4.831
Average MCFE per Day28.034

 Federal Financial Assurance  i Y

 Tribal Well  i No