Skip to Main Content

COGIS

Facility Detail

COGIS - WELL SCOUT CARD

Click image to view related facilities. Related  Click image to view inspection information. InspClick image to view MIT information. MITGIS Map GISOld GIS Map Old GISClick image to view imaged documents for this well/facility. DocClick image to view imaged documents for this well/facility. COAClick image to view wellbore completion diagram. WellboreClick image to search for orders within this facility's section. OrdersClick image to view bradenhead scoutcard data. Bradenhead
 Surface Location
 API# 05-045-07399
Well Classification: GW Status: PR - 8/2/2001
Well Name/No:UNOCAL #GM 205-28
(Click Well Name for Production Data)
Click Here for Transporter Gatherer Info
Operator:TEP ROCKY MOUNTAIN LLC - 96850
(Click Operator Name for Company Detail Report)
Federal Or State Lease #:
Facility Status:PRStatus Date8/2/2001
FacilityID:89069LocationID:324069
County:GARFIELD #045Location:SWSW 28 6S96W 6
Field:GRAND VALLEY - #31290Elevation:5442 ft.
Basin:PICEANCE BASIN  
Planned Location:210FSL  990 FWLLat/Long: 39.488268 / -108.119477Lat/Long Source: Calculated From Footages
As Drilled Location:Footages Not AvailableLat/Long: 39.488439 / -108.119478Lat/Long Source: Field Measured
 Wellbore And Formation Details -- select either a wellbore Or formation to expand.
 

Wellbore #00             Wellbore Classification: GW             Status: PR - 8/2/2001             Measured TD: 6537 ft.

 Wellbore Data for Original WellboreWellbore Classification: GW        PR - 8/2/2001
Wellbore Permit
Permit #:990435 Expiration Date:6/22/2000
Proposed Depth/Form:
Surface Mineral Owner Same:Not available
Mineral Owner:FEESurface Owner:Not available
Unit: Unit Number: 
Formation And Spacing:Code: WFCM , Formation: WILLIAMS FORK - CAMEO , Order: 479-6 , Unit Acreage: 320, Drill Unit: W2

Wellbore Completed
Completion Date:2/22/2000
Spud Date:12/29/1999Spud Date Is:ACTUAL
Measured TD:6537 ft.Measured PB depth:
True Vertical TD:True Vertical PB depth:
Log Types:DUAL INDUCTON SPECTRAL DENSITY DUAL SPACED NEUTRON
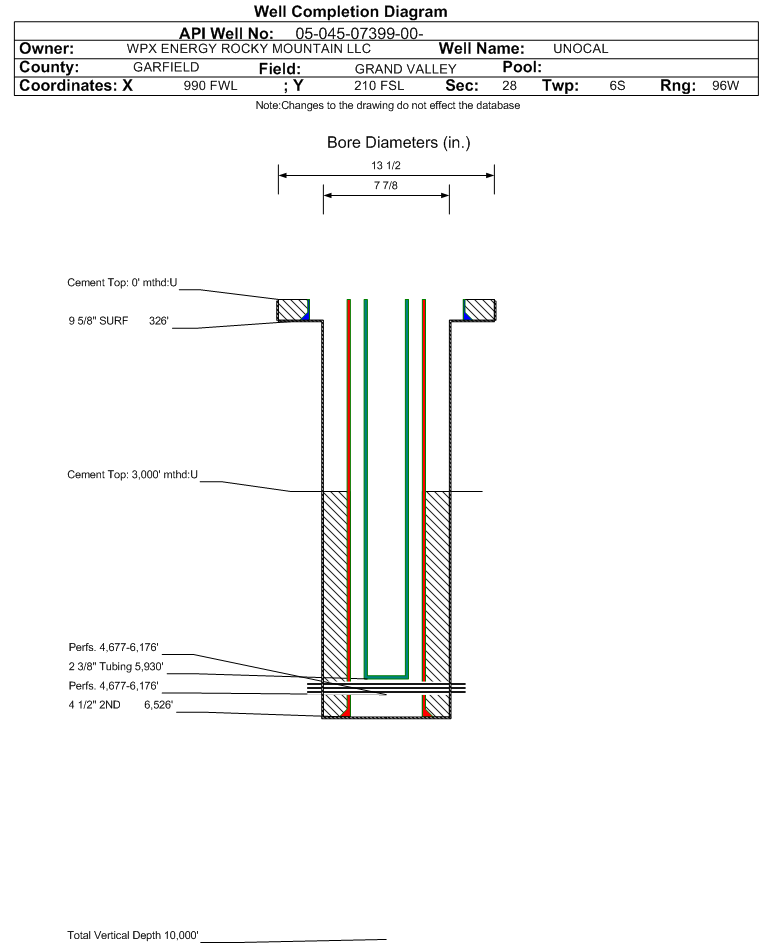
Casing:String Type: SURF, Hole Size: 13.5 in., Size: 9.625 in., Top: , Depth: 326 ft., Weight: 36 , Citings Type: ACTUAL
Cement:Sacks: 200, Top: 0 ft., Bottom: 326 ft., Determination Method:
Casing:String Type: 2ND, Hole Size: 7.875 in., Size: 4.5 in., Top: , Depth: 6526 ft., Weight: 11.6 , Citings Type: ACTUAL
Cement:Sacks: 1160, Top: 3000 ft., Bottom: 6526 ft., Determination Method: CBL
FormationInterval TopLog BottomCoredDSTs
GREELEY SAND1778 ft.NN
FORT UNION2099 ft.NN
MESAVERDE3405 ft.NN
CAMEO5978 ft.NN
ROLLINS6470 ft.NN

Formation WFCM                     Formation Classification:  GW                     Status:  PR - 8/2/2001                  Interval Top: 4677 ft.    Interval Bottom: 6176 ft.

 Completed Information for Formation WILLIAMS FORK - CAMEO
1st Production Date:N/AChoke Size: 
Formation Name:WILLIAMS FORK - CAMEOCommingled:No
Production Method:FLOWING
Open Hole Completion:No
Formation Treatment
Treatment Date:2/22/2000
Treatment Summary:
Tubing Size:2.375 in.Tubing Setting Depth:5930 ft.
Tubing Packer Depth:Tubing Multiple Packer:
Open Hole Top:Open Hole Bottom:
Initial Test Data:
Test Date:2/27/2000Test Method:FLOWING
Hours Tested:24Gas Type:
Gas Disposal:SOLD
Test TypeMeasure
BBLS_H2O 5
BBLS_OIL 0
CALC_BBLS_H2O 5
CALC_BBLS_OIL 0
CALC_MCF_GAS 1210
CASING_PRESS 1406
MCF_GAS 1210
TUBING_PRESS 1335
Perforation Data:
Interval Top:4677 ft.# Of Holes:60
Interval Bottom:6176 ft.Hole Size:

Formation WMFK                     Formation Classification:  GW                     Status:  CM - 8/2/2001                  Interval Top: 4677 ft.    Interval Bottom: 6176 ft.

 Completed Information for Formation WILLIAMS FORK
1st Production Date:N/AChoke Size: 
Formation Name:WILLIAMS FORKCommingled:No
Production Method:FLOWING
Open Hole Completion:No
Formation Treatment
Treatment Date:2/22/2000
Treatment Summary:100 GALS 7 1/2% HCL,27500# 20/40, 1913 BBLS GEL., TOP;5370, BOTTOM 5662' HOLE; 14.,DESRIBE;750 GALS 7 1/2% HCL, 238000# 20/40, 2047 BBLS GEL
Tubing Size:2.375 in.Tubing Setting Depth:5930 ft.
Tubing Packer Depth:Tubing Multiple Packer:
Open Hole Top:Open Hole Bottom:
Initial Test Data:
Test Date:2/27/2000Test Method:
Hours Tested:24Gas Type:
Gas Disposal:SOLD
Test TypeMeasure
BBLS_H2O 5
CALC_BBLS_H2O 5
CALC_MCF_GAS 1210
CASING_PRESS 1405
MCF_GAS 1210
TUBING_PRESS 1335
Perforation Data:
Interval Top:4677 ft.# Of Holes:60
Interval Bottom:6176 ft.Hole Size:
Primary Well Designation:
None      i
            All DesignationsDate
Reported PluggedN 
Out Of Service RepurposedN 
Out Of ServiceN 
Inactive ExceptionN 
Noticed InactiveN 
Defined InactiveN 
Low ProducingN 

BOE/MCFE/GOR Calculations
Production for Previous 12 Months
February 2025 - January 2026i
Total Oil Produced (Barrels)21
Total Gas Produced (MCF)15735
GOR749285
GOR DeterminationMCFE
Average BOE per Day7.492
Average MCFE per Day43.463

 Federal Financial Assurance  i 

 Tribal Well  i No