Skip to Main Content

COGIS

Facility Detail

COGIS - WELL SCOUT CARD

Click image to view related facilities. Related  Click image to view inspection information. InspClick image to view MIT information. MITClick image to access interactive map at well/facility location. GISClick image to view imaged documents for this well/facility. DocClick image to view imaged documents for this well/facility. COAClick image to view wellbore completion diagram. WellboreClick image to search for orders within this facility's section. OrdersClick image to view bradenhead scoutcard data. Bradenhead
 Surface Location
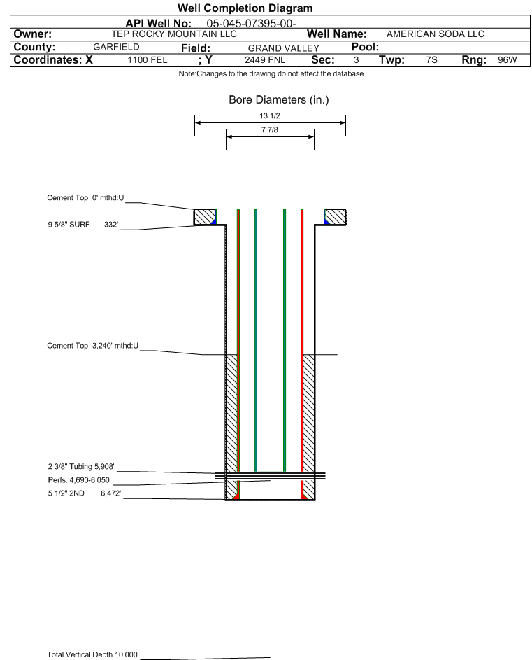
 API# 05-045-07395
Well Classification: GW Status: PR - 2/3/2000
Well Name/No:AMERICAN SODA LLC #GM 269-3
(Click Well Name for Production Data)
Click Here for Transporter Gatherer Info
Operator:TEP ROCKY MOUNTAIN LLC - 96850
(Click Operator Name for Company Detail Report)
Federal Or State Lease #:
Facility Status:PRStatus Date2/3/2000
FacilityID:89065LocationID:324067
County:GARFIELD #045Location:SENE 3 7S96W 6
Field:GRAND VALLEY - #31290Elevation:5521 ft.
Basin:PICEANCE BASIN  
Planned Location:2449FNL  1100 FELLat/Long: 39.466549 / -108.089946Lat/Long Source: Calculated From Footages
As Drilled Location:Footages Not AvailableLat/Long: 39.466587 / -108.089142Lat/Long Source: Field Measured
 Wellbore And Formation Details -- select either a wellbore Or formation to expand.
 

Wellbore #00             Wellbore Classification: GW             Status: PR - 2/3/2000             Measured TD: 6482 ft.

 Wellbore Data for Original WellboreWellbore Classification: GW        PR - 2/3/2000
Wellbore Permit
Permit #:990389 Expiration Date:6/8/2000
Proposed Depth/Form:
Surface Mineral Owner Same:Not available
Mineral Owner:FEESurface Owner:Not available
Unit: Unit Number: 
Formation And Spacing:Code: WFCM , Formation: WILLIAMS FORK - CAMEO , Order: 510-3 , Unit Acreage: 320, Drill Unit: N2

Wellbore Completed
Completion Date:12/21/1999
Spud Date:10/22/1999Spud Date Is:ACTUAL
Measured TD:6482 ft.Measured PB depth:
True Vertical TD:True Vertical PB depth:
Log Types:DUAL INDUCTION SPECTRAL DENSITY DUAL SPACED NEUTRON
Casing:String Type: SURF, Hole Size: 13.5 in., Size: 9.625 in., Top: , Depth: 332 ft., Weight: 32 , Citings Type: ACTUAL
Cement:Sacks: 190, Top: 0 ft., Bottom: 332 ft., Determination Method:
Casing:String Type: 2ND, Hole Size: 7.875 in., Size: 5.5 in., Top: , Depth: 6472 ft., Weight: 17 , Citings Type: ACTUAL
Cement:Sacks: 1115, Top: 3240 ft., Bottom: 6471 ft., Determination Method: CBL
FormationInterval TopLog BottomCoredDSTs
WASATCH G1699 ft.NN
FORT UNION2010 ft.NN
MESAVERDE3419 ft.NN
CAMEO COAL5868 ft.NN
ROLLINS6371 ft.NN

Formation WMFK                     Formation Classification:  GW                     Status:  CM - 2/3/2000                  Interval Top: 4690 ft.    Interval Bottom: 6050 ft.

 Completed Information for Formation WILLIAMS FORK
1st Production Date:N/AChoke Size:0.219 in.
Formation Name:WILLIAMS FORKCommingled:No
Production Method:FLOWING
Open Hole Completion:No
Formation Treatment
Treatment Date:12/21/1999
Treatment Summary:
Tubing Size:2.375 in.Tubing Setting Depth:5908 ft.
Tubing Packer Depth:Tubing Multiple Packer:
Open Hole Top:Open Hole Bottom:
Initial Test Data:
Test Date:12/24/1999Test Method:
Hours Tested:24Gas Type:
Gas Disposal:
Test TypeMeasure
CALC_BBLS_H2O 20
CALC_MCF_GAS 1340
CASING_PRESS 1446
TUBING_PRESS 1414
Perforation Data:
Interval Top:4690 ft.# Of Holes:72
Interval Bottom:6050 ft.Hole Size:

Formation WFCM                     Formation Classification:  GW                     Status:  PR - 2/3/2000

 Completed Information for Formation WILLIAMS FORK - CAMEO
1st Production Date:12/21/1999Choke Size: 
Formation Name:WILLIAMS FORK - CAMEOCommingled:
Production Method:
Open Hole Completion:
Tubing Size:Tubing Setting Depth:
Tubing Packer Depth:Tubing Multiple Packer:
Open Hole Top:Open Hole Bottom:
No Initial Test Data was found for formation WFCM.
No Perforation Data was found for formation WFCM.
Primary Well Designation:
None      i
            All DesignationsDate
Reported PluggedN 
Out Of Service RepurposedN 
Out Of ServiceN 
Inactive ExceptionN 
Noticed InactiveN 
Defined InactiveN 
Low ProducingN 

BOE/MCFE/GOR Calculations
Production for Previous 12 Months
October 2024 - September 2025i
Total Oil Produced (Barrels)12
Total Gas Produced (MCF)9357
GOR779750
GOR DeterminationMCFE
Average BOE per Day4.453
Average MCFE per Day25.838

 Federal Financial Assurance  i 

 Tribal Well  i No