Skip to Main Content

COGIS

Facility Detail

COGIS - WELL SCOUT CARD

Click image to view related facilities. Related  Click image to view inspection information. InspClick image to view MIT information. MITGIS Map GISClick image to view imaged documents for this well/facility. DocClick image to view imaged documents for this well/facility. COAClick image to view wellbore completion diagram. WellboreClick image to search for orders within this facility's section. OrdersClick image to view bradenhead scoutcard data. Bradenhead
 Surface Location
 API# 05-045-07371
Well Classification: GW Status: PR - 1/25/2000
Well Name/No:UNOCAL #GM 33-1
(Click Well Name for Production Data)
Click Here for Transporter Gatherer Info
Operator:TEP ROCKY MOUNTAIN LLC - 96850
(Click Operator Name for Company Detail Report)
Federal Or State Lease #:
Facility Status:PRStatus Date1/25/2000
FacilityID:89043LocationID:324063
County:GARFIELD #045Location:NWSE 1 7S96W 6
Field:GRAND VALLEY - #31290Elevation:5408 ft.
Basin:PICEANCE BASIN  
Planned Location:2280FSL  1858 FELLat/Long: 39.465909 / -108.055515Lat/Long Source: Calculated From Footages
As Drilled Location:Footages Not AvailableLat/Long: 39.465973 / -108.055919Lat/Long Source: Field Measured
 Wellbore And Formation Details -- select either a wellbore Or formation to expand.
 

Wellbore #00             Wellbore Classification: GW             Status: PR - 1/25/2000             Measured TD: 6673 ft.

 Wellbore Data for Original WellboreWellbore Classification: GW        PR - 1/25/2000
Wellbore Permit
Permit #:990274 Expiration Date:5/4/2000
Proposed Depth/Form:
Surface Mineral Owner Same:Not available
Mineral Owner:FEESurface Owner:Not available
Unit: Unit Number: 
Formation And Spacing:Code: WFCM , Formation: WILLIAMS FORK - CAMEO , Order: 510-3 , Unit Acreage: 320, Drill Unit: S2

Wellbore Completed
Completion Date:11/24/1999
Spud Date:10/6/1999Spud Date Is:ACTUAL
Measured TD:6673 ft.Measured PB depth:
True Vertical TD:True Vertical PB depth:
Log Types:DUAL INDUCTION SPECTRAL DENSITY DUAL SPACED NEUTRON
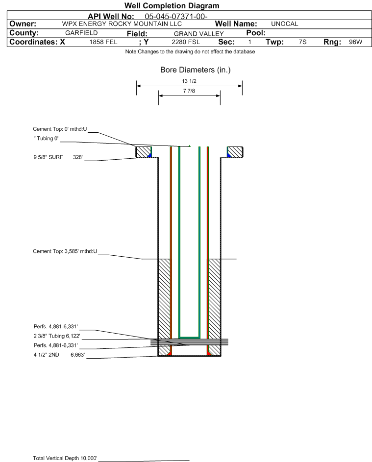
Casing:String Type: SURF, Hole Size: 13.5 in., Size: 9.625 in., Top: , Depth: 328 ft., Weight: 36 , Citings Type: ACTUAL
Cement:Sacks: 200, Top: 0 ft., Bottom: 328 ft., Determination Method: CALC
Casing:String Type: 2ND, Hole Size: 7.875 in., Size: 4.5 in., Top: , Depth: 6663 ft., Weight: 11.6 , Citings Type: ACTUAL
Cement:Sacks: 1170, Top: 3585 ft., Bottom: 6663 ft., Determination Method: CBL
FormationInterval TopLog BottomCoredDSTs
WASATCH G1694 ft.NN
FORT UNION1980 ft.NN
MESAVERDE3559 ft.NN
CAMEO COAL6063 ft.NN
ROLLINS6556 ft.NN

Formation WFCM                     Formation Classification:  GW                     Status:  PR - 1/25/2000                 Interval Top: 4881 ft.    Interval Bottom: 6331 ft.

 Completed Information for Formation WILLIAMS FORK - CAMEO
1st Production Date:11/24/1999Choke Size: 
Formation Name:WILLIAMS FORK - CAMEOCommingled:Yes
Production Method:
Open Hole Completion:No
Formation Treatment
Treatment Date:11/24/1999
Treatment Summary:
Tubing Size:2.375 in.Tubing Setting Depth:6122 ft.
Tubing Packer Depth:Tubing Multiple Packer:
Open Hole Top:Open Hole Bottom:
Initial Test Data:
Test Date:11/28/1999Test Method:FLOWING
Hours Tested:24Gas Type:
Gas Disposal:
Test TypeMeasure
BBLS_H2O 0
BBLS_OIL 0
CALC_BBLS_H2O 0
CALC_BBLS_OIL 0
CALC_MCF_GAS 1184
CASING_PRESS 1505
MCF_GAS 1184
TUBING_PRESS 1407
Perforation Data:
Interval Top:4881 ft.# Of Holes:64
Interval Bottom:6331 ft.Hole Size:

Formation WMFK                     Formation Classification:  GW                     Status:  CM - 1/25/2000                 Interval Top: 4881 ft.    Interval Bottom: 6331 ft.

 Completed Information for Formation WILLIAMS FORK
1st Production Date:N/AChoke Size: 
Formation Name:WILLIAMS FORKCommingled:Yes
Production Method:
Open Hole Completion:No
Formation Treatment
Treatment Date:11/24/1999
Treatment Summary:500 GALS 7 1/2% HCL, 81000 #20/40, 702 BBLS GEL
Tubing Size:Tubing Setting Depth:
Tubing Packer Depth:Tubing Multiple Packer:
Open Hole Top:Open Hole Bottom:
No Initial Test Data was found for formation WMFK.
Perforation Data:
Interval Top:4881 ft.# Of Holes:12
Interval Bottom:6331 ft.Hole Size:
Primary Well Designation:
None      i
            All DesignationsDate
Reported PluggedN 
Out Of Service RepurposedN 
Out Of ServiceN 
Inactive ExceptionN 
Noticed InactiveN 
Defined InactiveN 
Low ProducingN 

BOE/MCFE/GOR Calculations
Production for Previous 12 Months
December 2024 - November 2025i
Total Oil Produced (Barrels)8
Total Gas Produced (MCF)5574
GOR696750
GOR DeterminationMCFE
Average BOE per Day2.658
Average MCFE per Day15.404

 Federal Financial Assurance  i 

 Tribal Well  i No