Skip to Main Content

COGIS

Facility Detail

COGIS - WELL SCOUT CARD

Click image to view related facilities. Related  Click image to view inspection information. InspClick image to view MIT information. MITClick image to access interactive map at well/facility location. GISClick image to view imaged documents for this well/facility. DocClick image to view imaged documents for this well/facility. COAClick image to view wellbore completion diagram. WellboreClick image to search for orders within this facility's section. OrdersClick image to view bradenhead scoutcard data. Bradenhead
 Surface Location
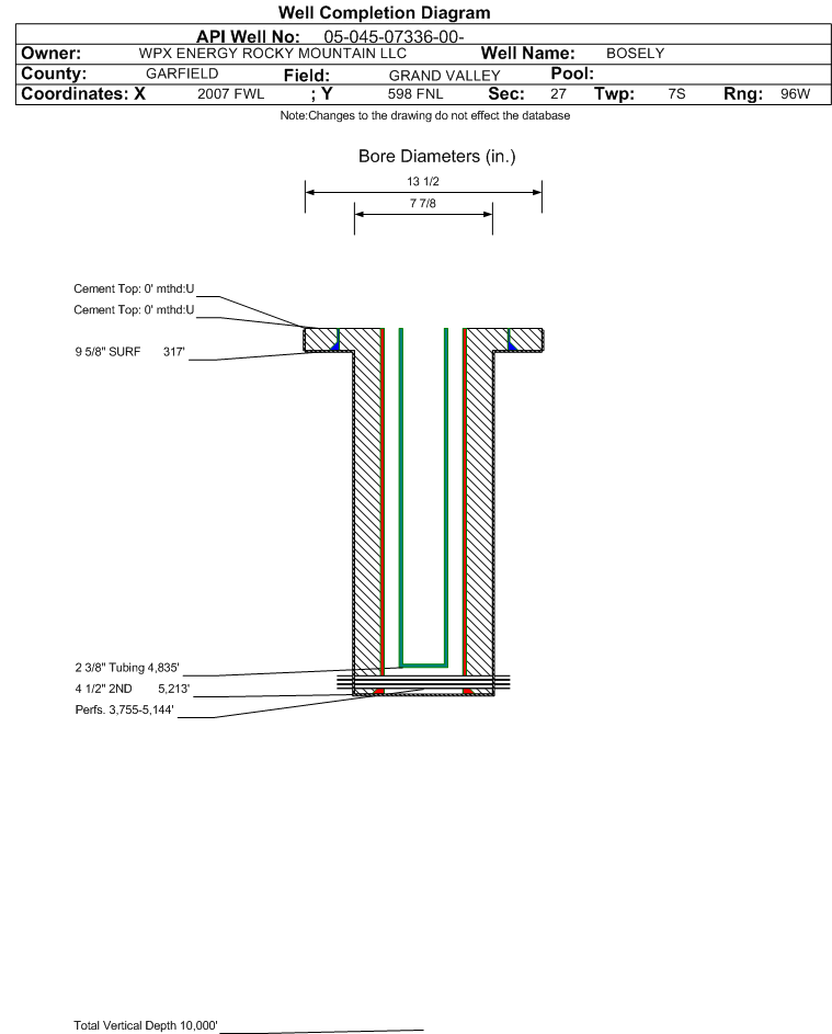
 API# 05-045-07336
Well Classification: GW Status: PR - 10/27/1999
Well Name/No:BOSELY #SG 21-27
(Click Well Name for Production Data)
Click Here for Transporter Gatherer Info
Operator:TEP ROCKY MOUNTAIN LLC - 96850
(Click Operator Name for Company Detail Report)
Federal Or State Lease #:
Facility Status:PRStatus Date10/27/1999
FacilityID:211576LocationID:334573
County:GARFIELD #045Location:NENW 27 7S96W 6
Field:GRAND VALLEY - #31290Elevation:5267 ft.
Basin:PICEANCE BASIN  
Planned Location:598FNL  2007 FWLLat/Long: 39.414089 / -108.098475Lat/Long Source: Calculated From Footages
As Drilled Location:Footages Not AvailableLat/Long: 39.414198 / -108.098554Lat/Long Source: Field Measured
 Wellbore And Formation Details -- select either a wellbore Or formation to expand.
 

Wellbore #00             Wellbore Classification: GW             Status: PR - 10/27/1999             Measured TD: 5224 ft.

 Wellbore Data for Original WellboreWellbore Classification: GW        PR - 10/27/1999
Wellbore Permit
Permit #:990803 Expiration Date:10/26/2000
Proposed Depth/Form:5350 ft.
Surface Mineral Owner Same:No
Mineral Owner:FEESurface Owner:FEE
Unit: Unit Number: 
Formation And Spacing:Code: WFCM , Formation: WILLIAMS FORK - CAMEO , Order: 510-1 , Unit Acreage: 40, Drill Unit: NENW
Casing:String Type: 1ST, Hole Size: 7.875 in., Size: 4.5 in., Top: , Depth: 5350 ft., Weight: 11.6 , Citings Type: PLANNED
Cement:Sacks: 200, Top: , Bottom:

Wellbore Completed
Completion Date:3/6/2000
Spud Date:1/16/2000Spud Date Is:ACTUAL
Measured TD:5224 ft.Measured PB depth:
True Vertical TD:True Vertical PB depth:
Log Types:DUAL INDUCTION SPECTRAL DENSITY DUAL SPACED NEUTRON
Casing:String Type: SURF, Hole Size: 13.5 in., Size: 9.625 in., Top: , Depth: 317 ft., Weight: 36 , Citings Type: ACTUAL
Cement:Sacks: 200, Top: 0 ft., Bottom: 317 ft., Determination Method:
Casing:String Type: 2ND, Hole Size: 7.875 in., Size: 4.5 in., Top: , Depth: 5213 ft., Weight: 11.6 , Citings Type: ACTUAL
Cement:Sacks: 775, Top: , Bottom: , Determination Method:
FormationInterval TopLog BottomCoredDSTs
WASATCH G805 ft.NN
FORT UNION1215 ft.NN
MESAVERDE2370 ft.NN
CAMEO COAL4748 ft.NN
ROLLINS5176 ft.NN

Formation WFCM                     Formation Classification:  GW                     Status:  PR - 10/27/1999                Interval Top: 3755 ft.    Interval Bottom: 5144 ft.

 Completed Information for Formation WILLIAMS FORK - CAMEO
1st Production Date:3/6/2000Choke Size: 
Formation Name:WILLIAMS FORK - CAMEOCommingled:No
Production Method:FLOWING
Open Hole Completion:No
Formation Treatment
Treatment Date:3/6/2000
Treatment Summary:
Tubing Size:2.375 in.Tubing Setting Depth:4835 ft.
Tubing Packer Depth:Tubing Multiple Packer:
Open Hole Top:Open Hole Bottom:
Initial Test Data:
Test Date:3/13/2000Test Method:FLOWING
Hours Tested:24Gas Type:
Gas Disposal:SOLD
Test TypeMeasure
BBLS_H2O 5
CALC_BBLS_H2O 5
CALC_MCF_GAS 759
CASING_PRESS 1048
MCF_GAS 759
TUBING_PRESS 937
Perforation Data:
Interval Top:3755 ft.# Of Holes:68
Interval Bottom:5144 ft.Hole Size:
Primary Well Designation:
None      i
            All DesignationsDate
Reported PluggedN 
Out Of Service RepurposedN 
Out Of ServiceN 
Inactive ExceptionN 
Noticed InactiveN 
Defined InactiveN 
Low ProducingN 

BOE/MCFE/GOR Calculations
Production for Previous 12 Months
October 2024 - September 2025i
Total Oil Produced (Barrels)12
Total Gas Produced (MCF)7184
GOR598666
GOR DeterminationMCFE
Average BOE per Day3.424
Average MCFE per Day19.874

 Federal Financial Assurance  i 

 Tribal Well  i No