Skip to Main Content

COGIS

Facility Detail

COGIS - WELL SCOUT CARD

Click image to view related facilities. Related  Click image to view inspection information. InspClick image to view MIT information. MITClick image to access interactive map at well/facility location. GISClick image to view imaged documents for this well/facility. DocClick image to view imaged documents for this well/facility. COAClick image to view wellbore completion diagram. WellboreClick image to search for orders within this facility's section. OrdersClick image to view bradenhead scoutcard data. Bradenhead
 Surface Location
 API# 05-045-07313
Well Classification: GW Status: PR - 12/17/1999
Well Name/No:AMERICAN SODA #GM 268-3
(Click Well Name for Production Data)
Click Here for Transporter Gatherer Info
Operator:TEP ROCKY MOUNTAIN LLC - 96850
(Click Operator Name for Company Detail Report)
Federal Or State Lease #:COC46603
Facility Status:PRStatus Date12/17/1999
FacilityID:211553LocationID:334802
County:GARFIELD #045Location:SWNE 3 7S96W 6
Field:GRAND VALLEY - #31290Elevation:5833 ft.
Basin:PICEANCE BASIN  
Planned Location:2295FNL  1963 FELLat/Long: 39.466959 / -108.092946Lat/Long Source: Calculated From Footages
As Drilled Location:Footages Not AvailableLat/Long: 39.466995 / -108.092194Lat/Long Source: Field Measured
 Wellbore And Formation Details -- select either a wellbore Or formation to expand.
 

Wellbore #00             Wellbore Classification: GW             Status: PR - 12/17/1999             Measured TD: 6615 ft.

 Wellbore Data for Original WellboreWellbore Classification: GW        PR - 12/17/1999
Wellbore Permit
Permit #:990978 Expiration Date:12/16/2000
Proposed Depth/Form:6800 ft.
Surface Mineral Owner Same:No
Mineral Owner:FEESurface Owner:FEE
Unit: Unit Number: 
Formation And Spacing:Code: WMFK , Formation: WILLIAMS FORK , Order: , Unit Acreage: 320, Drill Unit: N2

Wellbore Completed
Completion Date:8/2/2000
Spud Date:6/6/2000Spud Date Is:ACTUAL
Measured TD:6615 ft.Measured PB depth:
True Vertical TD:True Vertical PB depth:
Log Types:DUAL IND SPEC DENS DUAL SPACED NEUTRON
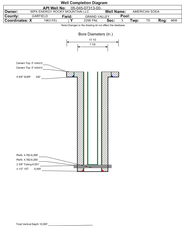
Casing:String Type: SURF, Hole Size: 13.5 in., Size: 9.625 in., Top: , Depth: 330 ft., Weight: 36 , Citings Type: ACTUAL
Cement:Sacks: 200, Top: 0 ft., Bottom: 330 ft., Determination Method:
Casing:String Type: 1ST, Hole Size: 7.875 in., Size: 4.5 in., Top: , Depth: 6495 ft., Weight: 11.6 , Citings Type: ACTUAL
Cement:Sacks: 870, Top: , Bottom: 6495 ft., Determination Method:
FormationInterval TopLog BottomCoredDSTs
WASATCH G1808 ft.NN
FORT UNION2121 ft.NN
MESAVERDE3529 ft.NN
CAMEO COAL5981 ft.NN
ROLLINS6482 ft.NN

Formation WFCM                     Formation Classification:  GW                     Status:  PR - 12/17/1999                Interval Top: 4782 ft.    Interval Bottom: 6266 ft.

 Completed Information for Formation WILLIAMS FORK - CAMEO
1st Production Date:N/AChoke Size: 
Formation Name:WILLIAMS FORK - CAMEOCommingled:No
Production Method:FLOWING
Open Hole Completion:No
Formation Treatment
Treatment Date:8/2/2000
Treatment Summary:
Tubing Size:2.375 in.Tubing Setting Depth:6091 ft.
Tubing Packer Depth:Tubing Multiple Packer:
Open Hole Top:Open Hole Bottom:
Initial Test Data:
Test Date:8/9/2000Test Method:FLOWING
Hours Tested:24Gas Type:
Gas Disposal:SOLD
Test TypeMeasure
BBLS_H2O 5
BBLS_OIL 0
CALC_BBLS_H2O 5
CALC_BBLS_OIL 0
CALC_MCF_GAS 1128
CASING_PRESS 1605
MCF_GAS 1128
TUBING_PRESS 1525
Perforation Data:
Interval Top:4782 ft.# Of Holes:70
Interval Bottom:6266 ft.Hole Size:

Formation WMFK                     Formation Classification:  GW                     Status:  CM - 12/17/1999                Interval Top: 4782 ft.    Interval Bottom: 6266 ft.

 Completed Information for Formation WILLIAMS FORK
1st Production Date:N/AChoke Size: 
Formation Name:WILLIAMS FORKCommingled:
Production Method:
Open Hole Completion:
Tubing Size:Tubing Setting Depth:
Tubing Packer Depth:Tubing Multiple Packer:
Open Hole Top:Open Hole Bottom:
No Initial Test Data was found for formation WMFK.
Perforation Data:
Interval Top:4782 ft.# Of Holes:70
Interval Bottom:6266 ft.Hole Size:
Primary Well Designation:
None      i
            All DesignationsDate
Reported PluggedN 
Out Of Service RepurposedN 
Out Of ServiceN 
Inactive ExceptionN 
Noticed InactiveN 
Defined InactiveN 
Low ProducingN 

BOE/MCFE/GOR Calculations
Production for Previous 12 Months
October 2024 - September 2025i
Total Oil Produced (Barrels)22
Total Gas Produced (MCF)17111
GOR777772
GOR DeterminationMCFE
Average BOE per Day8.146
Average MCFE per Day47.243

 Federal Financial Assurance  i 

 Tribal Well  i No