Skip to Main Content

COGIS

Facility Detail

COGIS - WELL SCOUT CARD

Click image to view related facilities. Related  Click image to view inspection information. InspClick image to view MIT information. MITClick image to access interactive map at well/facility location. GISClick image to view imaged documents for this well/facility. DocClick image to view imaged documents for this well/facility. COAClick image to view wellbore completion diagram. WellboreClick image to search for orders within this facility's section. OrdersClick image to view bradenhead scoutcard data. Bradenhead
 Surface Location
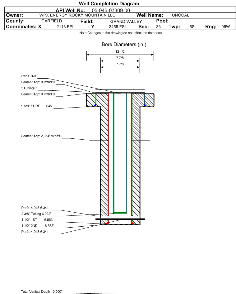
 API# 05-045-07309
Well Classification: GW Status: PR - 12/21/1998
Well Name/No:UNOCAL #GM 222-33
(Click Well Name for Production Data)
Click Here for Transporter Gatherer Info
Operator:TEP ROCKY MOUNTAIN LLC - 96850
(Click Operator Name for Company Detail Report)
Federal Or State Lease #:13492
Facility Status:PRStatus Date12/21/1998
FacilityID:211549LocationID:335214
County:GARFIELD #045Location:NWSE 33 6S96W 6
Field:GRAND VALLEY - #31290Elevation:5470 ft.
Basin:PICEANCE BASIN  
Planned Location:2455FSL  2113 FELLat/Long: 39.479878 / -108.111456Lat/Long Source: Calculated From Footages
As Drilled Location:Footages Not AvailableLat/Long: 39.480009 / -108.111385Lat/Long Source: Field Measured
 Wellbore And Formation Details -- select either a wellbore Or formation to expand.
 

Wellbore #00             Wellbore Classification: GW             Status: PR - 12/21/1998             Measured TD: 6563 ft.

 Wellbore Data for Original WellboreWellbore Classification: GW        PR - 12/21/1998
Wellbore Permit
Permit #:980568 Expiration Date:6/14/1999
Proposed Depth/Form:
Surface Mineral Owner Same:Not available
Mineral Owner:FEESurface Owner:Not available
Unit: Unit Number: 
Formation And Spacing:Code: WFCM , Formation: WILLIAMS FORK - CAMEO , Order: 479-6 , Unit Acreage: 160, Drill Unit: SE4

Wellbore Completed
Completion Date:10/15/1998
Spud Date:7/2/1998Spud Date Is:ACTUAL
Measured TD:6563 ft.Measured PB depth:
True Vertical TD:True Vertical PB depth:
Log Types:DUAL INDUCTION SPECTRAL DENSITY DUAL SPACED NEUTRON CBL
Casing:String Type: SURF, Hole Size: 13.5 in., Size: 9.625 in., Top: , Depth: 645 ft., Weight: 32 , Citings Type: ACTUAL
Cement:Sacks: 325, Top: 0 ft., Bottom: 645 ft., Determination Method: CALC
Casing:String Type: 1ST, Hole Size: 7.875 in., Size: 4.5 in., Top: 0 ft., Depth: 6553 ft., Weight: , Citings Type: HISTORICAL
Cement:Sacks: 1035, Top: 0 ft., Bottom: , Determination Method:
Casing:String Type: 2ND, Hole Size: 7.875 in., Size: 4.5 in., Top: , Depth: 6552 ft., Weight: 11.6 , Citings Type: ACTUAL
Cement:Sacks: 1035, Top: 2354 ft., Bottom: 6552 ft., Determination Method: CBL
FormationInterval TopLog BottomCoredDSTs
WASATCH G1734 ft.NN
FORT UNION2054 ft.NN
MESAVERDE3359 ft.NN
CAMEO COAL5887 ft.NN
ROLLINS6388 ft.NN

Formation WFCM                     Formation Classification:  GW                     Status:  PR - 12/21/1998                Interval Top: 4948 ft.    Interval Bottom: 6341 ft.

 Completed Information for Formation WILLIAMS FORK - CAMEO
1st Production Date:10/15/1998Choke Size: 
Formation Name:WILLIAMS FORK - CAMEOCommingled:No
Production Method:FLOWING
Open Hole Completion:No
Formation Treatment
Treatment Date:10/15/1998
Treatment Summary:
Tubing Size:2.375 in.Tubing Setting Depth:6022 ft.
Tubing Packer Depth:Tubing Multiple Packer:
Open Hole Top:Open Hole Bottom:
Initial Test Data:
Test Date:9/6/1999Test Method:FLOWING
Hours Tested:24Gas Type:
Gas Disposal:SOLD
Test TypeMeasure
BBLS_H2O 25
CALC_BBLS_H2O 25
CALC_MCF_GAS 1133
CASING_PRESS 1049
MCF_GAS 1133
TUBING_PRESS 807
Perforation Data:
Interval Top:4948 ft.# Of Holes:50
Interval Bottom:6341 ft.Hole Size:

Formation WMFK                     Formation Classification:  GW                     Status:  CM - 12/21/1998                Interval Top: 4948 ft.    Interval Bottom: 6341 ft.

 Completed Information for Formation WILLIAMS FORK
1st Production Date:N/AChoke Size:0.250 in.
Formation Name:WILLIAMS FORKCommingled:No
Production Method:FLOWING
Open Hole Completion:No
Formation Treatment
Treatment Date:10/15/1998
Treatment Summary:1ST SALES 07/24/1999
Tubing Size:Tubing Setting Depth:
Tubing Packer Depth:Tubing Multiple Packer:
Open Hole Top:Open Hole Bottom:
Initial Test Data:
Test Date:8/1/1999Test Method:
Hours Tested:24Gas Type:
Gas Disposal:SOLD
Test TypeMeasure
CALC_BBLS_H2O 40
CALC_MCF_GAS 969
CASING_PRESS 850
Perforation Data:
Interval Top:4948 ft.# Of Holes:30
Interval Bottom:6341 ft.Hole Size:

Formation WMRCM                   Formation Classification:  GW                   Status:  CM - 12/21/1998

 Completed Information for Formation WILLIAMS FK-ROLLINS-CAMEO
1st Production Date:N/AChoke Size: 
Formation Name:WILLIAMS FK-ROLLINS-CAMEOCommingled:No
Production Method:
Open Hole Completion:No
Formation Treatment
Treatment Date:10/15/1998
Treatment Summary:750 GALS 7-1/2% HCL, 381000# 20/40, 2582 BBLS GEL
Tubing Size:Tubing Setting Depth:
Tubing Packer Depth:Tubing Multiple Packer:
Open Hole Top:Open Hole Bottom:
No Initial Test Data was found for formation WMRCM.
Perforation Data:
Interval Top:# Of Holes:
Interval Bottom:Hole Size:
Primary Well Designation:
None      i
            All DesignationsDate
Reported PluggedN 
Out Of Service RepurposedN 
Out Of ServiceN 
Inactive ExceptionN 
Noticed InactiveN 
Defined InactiveN 
Low ProducingN 

BOE/MCFE/GOR Calculations
Production for Previous 12 Months
November 2024 - October 2025i
Total Oil Produced (Barrels)16
Total Gas Produced (MCF)13447
GOR840437
GOR DeterminationMCFE
Average BOE per Day6.397
Average MCFE per Day37.101

 Federal Financial Assurance  i 

 Tribal Well  i No