Skip to Main Content

COGIS

Facility Detail

COGIS - WELL SCOUT CARD

Click image to view related facilities. Related  Click image to view inspection information. InspClick image to view MIT information. MITClick image to access interactive map at well/facility location. GISClick image to view imaged documents for this well/facility. DocClick image to view imaged documents for this well/facility. COAClick image to view wellbore completion diagram. WellboreClick image to search for orders within this facility's section. OrdersClick image to view bradenhead scoutcard data. Bradenhead
 Surface Location
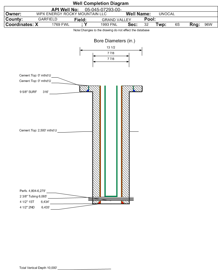
 API# 05-045-07293
Well Classification: GW Status: PR - 1/4/2000
Well Name/No:UNOCAL #GM 22-32
(Click Well Name for Production Data)
Click Here for Transporter Gatherer Info
Operator:TEP ROCKY MOUNTAIN LLC - 96850
(Click Operator Name for Company Detail Report)
Federal Or State Lease #:
Facility Status:PRStatus Date1/4/2000
FacilityID:211533LocationID:324030
County:GARFIELD #045Location:SENW 32 6S96W 6
Field:GRAND VALLEY - #31290Elevation:5697 ft.
Basin:PICEANCE BASIN  
Planned Location:1993FNL  1769 FWLLat/Long: 39.482148 / -108.135457Lat/Long Source: Calculated From Footages
As Drilled Location:Footages Not AvailableLat/Long: 39.482255 / -108.135450Lat/Long Source: Field Measured
 Wellbore And Formation Details -- select either a wellbore Or formation to expand.
 

Wellbore #00             Wellbore Classification: GW             Status: PR - 1/4/2000             Measured TD: 6434 ft.

 Wellbore Data for Original WellboreWellbore Classification: GW        PR - 1/4/2000
Wellbore Permit
Permit #:000081 Expiration Date:2/7/2001
Proposed Depth/Form:6650 ft.
Surface Mineral Owner Same:Yes
Mineral Owner:FEESurface Owner:FEE
Unit: Unit Number: 
Formation And Spacing:Code: WFCM , Formation: WILLIAMS FORK - CAMEO , Order: 510-3 , Unit Acreage: 320, Drill Unit: W2

Wellbore Completed
Completion Date:4/28/2000
Spud Date:3/20/2000Spud Date Is:ACTUAL
Measured TD:6434 ft.Measured PB depth:
True Vertical TD:True Vertical PB depth:
Log Types:INDUCTION, DEN-NEU
Log Types:
Casing:String Type: SURF, Hole Size: 13.5 in., Size: 9.625 in., Top: 0 ft., Depth: 316 ft., Weight: 36 , Citings Type: ACTUAL
Cement:Sacks: 200, Top: 0 ft., Bottom: 316 ft., Determination Method: CALC
Casing:String Type: 1ST, Hole Size: 7.875 in., Size: 4.5 in., Top: 0 ft., Depth: 6434 ft., Weight: 11.6 , Citings Type: ACTUAL
Cement:Sacks: 1200, Top: , Bottom: 6434 ft., Determination Method: CBL
Casing:String Type: 2ND, Hole Size: 7.875 in., Size: 4.5 in., Top: , Depth: 6435 ft., Weight: 11.6 , Citings Type: ACTUAL
Cement:Sacks: 1200, Top: 2500 ft., Bottom: 6435 ft., Determination Method: CBL
FormationInterval TopLog BottomCoredDSTs
WASATCH G1942 ft.NN
MESAVERDE3517 ft.NN
WILLIAMS FORK3517 ft.NN
CAMEO5982 ft.NN
CAMEO COAL5982 ft.NN

Formation WFCM                     Formation Classification:  GW                     Status:  PR - 1/4/2000                  Interval Top: 4804 ft.    Interval Bottom: 6279 ft.

 Completed Information for Formation WILLIAMS FORK - CAMEO
1st Production Date:N/AChoke Size: 
Formation Name:WILLIAMS FORK - CAMEOCommingled:No
Production Method:FLOWING
Open Hole Completion:No
Formation Treatment
Treatment Date:4/28/2000
Treatment Summary:
Tubing Size:2.375 in.Tubing Setting Depth:6065 ft.
Tubing Packer Depth:Tubing Multiple Packer:
Open Hole Top:Open Hole Bottom:
Initial Test Data:
Test Date:5/8/2000Test Method:FLOWING
Hours Tested:24Gas Type:
Gas Disposal:SOLD
Test TypeMeasure
BBLS_H2O 180
CALC_BBLS_H2O 180
CALC_MCF_GAS 640
CASING_PRESS 1025
MCF_GAS 640
TUBING_PRESS 794
Perforation Data:
Interval Top:4804 ft.# Of Holes:64
Interval Bottom:6279 ft.Hole Size:
Primary Well Designation:
Low Producing      i
            All DesignationsDate
Reported PluggedN 
Out Of Service RepurposedN 
Out Of ServiceN 
Inactive ExceptionN 
Noticed InactiveN 
Defined InactiveN 
Low ProducingYProduction Period
11/2024 - 10/2025

BOE/MCFE/GOR Calculations
Production for Previous 12 Months
November 2024 - October 2025i
Total Oil Produced (Barrels)0
Total Gas Produced (MCF)751
GOR
GOR DeterminationMCFE
Average BOE per Day0.353
Average MCFE per Day2.058

 Federal Financial Assurance  i 

 Tribal Well  i No