Skip to Main Content

COGIS

Facility Detail

COGIS - WELL SCOUT CARD

Click image to view related facilities. Related  Click image to view inspection information. InspClick image to view MIT information. MITClick image to access interactive map at well/facility location. GISClick image to view imaged documents for this well/facility. DocClick image to view imaged documents for this well/facility. COAClick image to view wellbore completion diagram. WellboreClick image to search for orders within this facility's section. OrdersClick image to view bradenhead scoutcard data. Bradenhead
 Surface Location
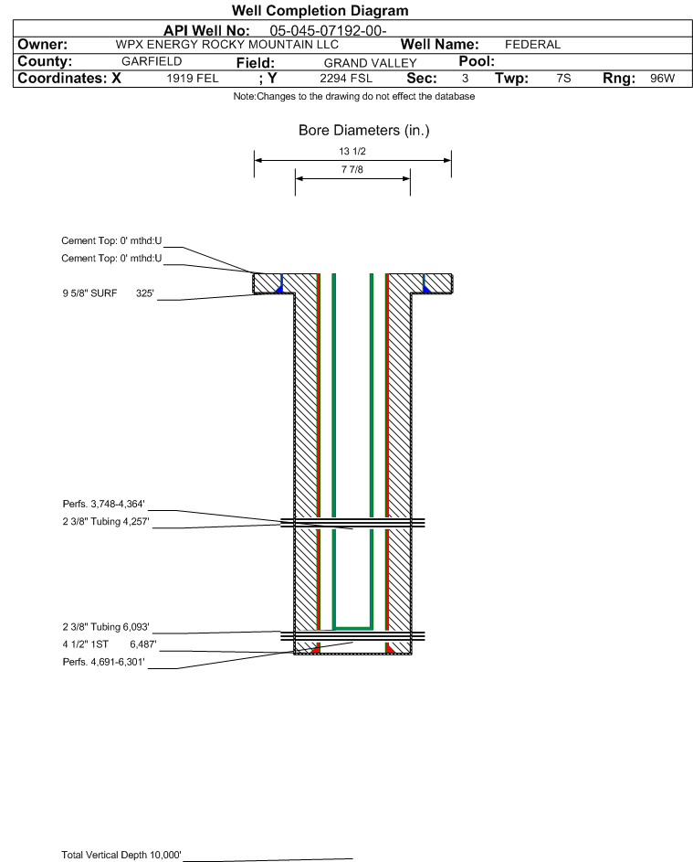
 API# 05-045-07192
Well Classification: GW Status: PR - 6/1/2023
Well Name/No:FEDERAL #GM 33-3
(Click Well Name for Production Data)
Click Here for Transporter Gatherer Info
Operator:TEP ROCKY MOUNTAIN LLC - 96850
(Click Operator Name for Company Detail Report)
Federal Or State Lease #:13405
Facility Status:PRStatus Date6/1/2023
FacilityID:211432LocationID:311588
County:GARFIELD #045Location:NWSE 3 7S96W 6
Field:GRAND VALLEY - #31290Elevation:5560 ft.
Basin:PICEANCE BASIN  
Planned Location:2294FSL  1919 FELLat/Long: 39.465029 / -108.093036Lat/Long Source: Calculated From Footages
As Drilled Location:Footages Not AvailableLat/Long: 39.465103 / -108.092418Lat/Long Source: Field Measured
 Wellbore And Formation Details -- select either a wellbore Or formation to expand.
 

Wellbore #00             Wellbore Classification: GW             Status: PR - 6/1/2023             Measured TD: 6492 ft.    Vertical TD: 0 ft.

 Wellbore Data for Original WellboreWellbore Classification: GW        PR - 6/1/2023
Wellbore Permit
Permit #:970442 Expiration Date:6/17/1998
Proposed Depth/Form:
Surface Mineral Owner Same:Not available
Mineral Owner:FEDERALSurface Owner:Not available
Unit: Unit Number:COC24603
Formation And Spacing:Code: WFCM , Formation: WILLIAMS FORK - CAMEO , Order: 510 , Unit Acreage: 320, Drill Unit: S2

Wellbore Completed
Completion Date:N/A
Measured TD:6492 ft.Measured PB depth:0 ft.
True Vertical TD:0 ft.True Vertical PB depth:
Casing:String Type: SURF, Hole Size: 13.5 in., Size: 9.625 in., Top: 0 ft., Depth: 325 ft., Weight: , Citings Type: HISTORICAL
Cement:Sacks: 200, Top: 0 ft., Bottom: , Determination Method:
Casing:String Type: 1ST, Hole Size: 7.875 in., Size: 4.5 in., Top: 0 ft., Depth: 6487 ft., Weight: , Citings Type: HISTORICAL
Cement:Sacks: 0, Top: 0 ft., Bottom: , Determination Method:
FormationInterval TopLog BottomCoredDSTs
FORT UNION2046 ft.
MESAVERDE3442 ft.
CAMEO COAL5881 ft.
ROLLINS6380 ft.

Formation WFCM                     Formation Classification:  GW                     Status:  PR - 6/1/2023                  Interval Top: 4691 ft.    Interval Bottom: 6301 ft.

 Completed Information for Formation WILLIAMS FORK - CAMEO
1st Production Date:N/AChoke Size:0.219 in.
Formation Name:WILLIAMS FORK - CAMEOCommingled:No
Production Method:
Open Hole Completion:No
Formation Treatment
Treatment Date:11/16/1997
Treatment Summary:3750 GALS 7 1/2% HCL, 1646000# 20/40, 7741 BBLS GEL (SUMMARY)
Tubing Size:2.375 in.Tubing Setting Depth:6093 ft.
Tubing Packer Depth:Tubing Multiple Packer:
Open Hole Top:Open Hole Bottom:
Initial Test Data:
Test Date:11/16/1997Test Method:
Hours Tested:24Gas Type:
Gas Disposal:SOLD
Test TypeMeasure
CALC_BBLS_H2O 0
CALC_BBLS_OIL 0
CALC_MCF_GAS 1684
CASING_PRESS 1690
TUBING_PRESS 1575
Perforation Data:
Interval Top:4691 ft.# Of Holes:76
Interval Bottom:6301 ft.Hole Size:

Formation WMFK                     Formation Classification:  GW                     Status:  CM - 8/1/2005                  Interval Top: 3748 ft.    Interval Bottom: 4364 ft.

 Completed Information for Formation WILLIAMS FORK
1st Production Date:N/AChoke Size:0.188 in.
Formation Name:WILLIAMS FORKCommingled:No
Production Method:
Open Hole Completion:No
Formation Treatment
Treatment Date:8/1/2005
Treatment Summary:1250 GALS 10% ACETIC ACID, 334600# 20/40, 4198 BBLS SLICK WATER, 135 TONS CO2 (SUMMARY)
Tubing Size:2.375 in.Tubing Setting Depth:4257 ft.
Tubing Packer Depth:Tubing Multiple Packer:
Open Hole Top:Open Hole Bottom:
Initial Test Data:
Test Date:8/1/2005Test Method:
Hours Tested:24Gas Type:
Gas Disposal:SOLD
Test TypeMeasure
CALC_BBLS_H2O 0
CALC_BBLS_OIL 0
CALC_MCF_GAS 581
CASING_PRESS 948
TUBING_PRESS 885
Perforation Data:
Interval Top:3748 ft.# Of Holes:36
Interval Bottom:4364 ft.Hole Size:0.34 in.
Primary Well Designation:
None      i
            All DesignationsDate
Reported PluggedN 
Out Of Service RepurposedN 
Out Of ServiceN 
Inactive ExceptionN 
Noticed InactiveN 
Defined InactiveN 
Low ProducingN 

BOE/MCFE/GOR Calculations
Production for Previous 12 Months
October 2024 - September 2025i
Total Oil Produced (Barrels)17
Total Gas Produced (MCF)13289
GOR781705
GOR DeterminationMCFE
Average BOE per Day6.325
Average MCFE per Day36.694

 Federal Financial Assurance  i Y

 Tribal Well  i No